Auction House / South Yorkshire

  • For Sale By Unconditional Online Auction
  • Guide Price* : £40,000
  • Bidding Opens 08/12/2025 13:00

162 Common Road, Newton-Le-Willows, Merseyside, WA12 9JA

Transform this terrace into your next investment success.

Open House Viewings (no need to book)
Monday 24 November 2025 at 12:00
Friday 28 November 2025 at 12:00
Saturday 6 December 2025 at 12:00

Description

FOR SALE BY ONLINE AUCTION – Fantastic refurbishment opportunity!
Located in a popular residential area close to local shops, schools and transport links, this two-bedroom mid-terrace offers superb potential for investors, developers, or anyone seeking a project property to add value.

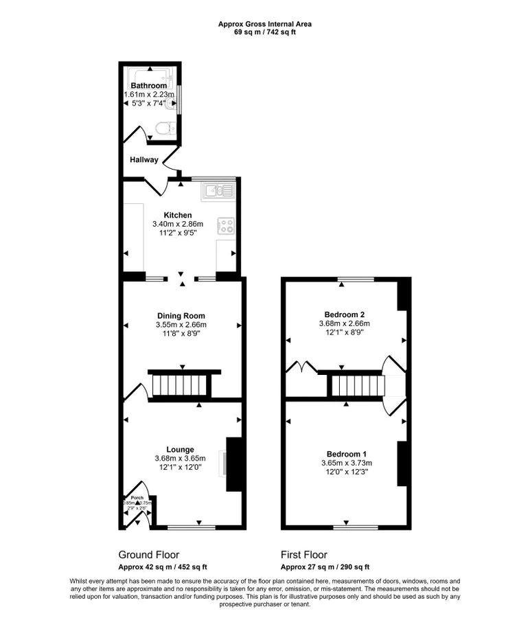
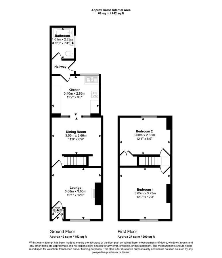
The accommodation is arranged over two floors and extends to approximately 742 sq ft (69 sq m). The ground floor includes an entrance porch, a good-sized front lounge, separate dining room, and a large kitchen with access to a rear hallway and ground-floor bathroom. To the first floor are two generous double bedrooms.

The property requires full modernisation throughout, offering a blank canvas for redesign and improvement. Externally, there is a walled rear yard, while the front of the house provides a small garden area and on-street parking.

Accommodation
Entrance Porch
Lounge
Dining Room
Kitchen
Rear Hallway
Ground Floor Bathroom
Two Double Bedrooms (First Floor)

Exterior
Enclosed rear yard
On-street parking
Mid-terrace with front garden space

This is an excellent opportunity to acquire a property with strong rental and resale potential once refurbished. Ideal for investors, builders or anyone looking for a value-add project in a well-established location.

Open to cash buyers and investors – viewings highly recommended.

Tenure: Freehold

Important Notice to Prospective Buyers

We draw your attention to the Special Conditions of Sale within the Legal Pack, referring to other charges in addition to the purchase price which may become payable. Such costs may include Search Fees, reimbursement of Sellers costs and Legal Fees, and Transfer Fees amongst others.

Administration Charge

£3,600 inc vat payable upon the fall of the virtual gavel

Loading the bidding panel...

Make An Enquiry

Submit an enquiry for this lot and someone will be in contact shortly.

 
 
 
* Guide | £40,000
  • 2 Bedrooms
  • Unconditional (Immediate Exchange)

Call the team on 0114 223 0777 for more information

Disclaimer: The map preview provided above is for general guidance only and may not accurately reflect the exact location or surrounding buildings. Prospective buyers and interested parties are strongly advised to independently verify the precise location and surroundings before bidding.

Note

  1. MONEY LAUNDERING REGULATIONS: Intending purchasers will be asked to produce identification documentation at a later stage and we would ask for your co-operation in order that there will be no delay in agreeing the sale.
  2. General : While we endeavour to make our sales particulars fair, accurate and reliable, they are only a general guide to the property and, accordingly, if there is any point which is of particular importance to you, please contact the office and we will be pleased to check the position for you, especially if you are contemplating travelling some distance to view the property.
  3. Measurements: These approximate room sizes are only intended as general guidance. You must verify the dimensions carefully before ordering carpets or any built-in furniture.
  4. Services: Please note we have not tested the services or any of the equipment or appliances in this property, accordingly we strongly advise prospective buyers to commission their own survey or service reports before finalising their offer to purchase.
  5. THESE PARTICULARS ARE ISSUED IN GOOD FAITH BUT DO NOT CONSTITUTE REPRESENTATIONS OF FACT OR FORM PART OF ANY OFFER OR CONTRACT. THE MATTERS REFERRED TO IN THESE PARTICULARS SHOULD BE INDEPENDENTLY VERIFIED BY PROSPECTIVE BUYERS OR TENANTS. NEITHER AUCTION HOUSE NOR ANY OF ITS EMPLOYEES OR AGENTS HAS ANY AUTHORITY TO MAKE OR GIVE ANY REPRESENTATION OR WARRANTY WHATEVER IN RELATION TO THIS PROPERTY.