Auction House / North East

  • For Sale By Unconditional Online Auction
  • Guide Price* : £1,000,000
  • Auction Ended 09/12/2025
  • Lot 36

Whitwell South Farm Bowburn, Durham, County Durham, DH6 5NQ

WHITEWELL SOUTH FARM.
TO VIEW THE PROPERTY PLEASE CONTACT YOUR MOVE DURHAM ON 0191 625 1062.
PRE AUCTION OFFERS WELCOMED.
MORTGAGE BUYERS / EXTENDED COMPLETIONS WELCOMED - CONTACT THE TEAM.

Description

Whitwell South Farm is a rare opportunity to purchase a development of four properties in a private, rural setting yet enjoying easy access into Durham city centre as well as transport links further afield. On offer are two bungalows, a spacious third barn conversion as well as the central detached farm house, each enjoying their own grounds with ample parking available.

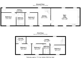
THE FARMHOUSE
Located centrally, the original farmhouse is a unique detached residence with ample parking and surrounding gardens with external patio including hot tub. Entering through the side elevation into the breakfast kitchen, this well presented kitchen features a contemporary range of wall and base storage units with a central island offering breakfast bar seating. A central snug reception room has stairs which rise to the first floor and leads into a stunning, open living/dining area with two sets of patio doors opening to the surrounding gardens.

To the first floor, Three bedrooms are on offer with the principal suite enjoying an ensuite bathroom as well as balcony which enjoys a pleasant rural outlook. Completing the accommodation, the family bathroom is completing in a traditional style.

Externally, gated parking is on offer with access to a garden space as well as private lawns opening to open countryside.

THE OLD BARN
This stunning, 4/5 bedroom barn conversion offers spacious and flexible living accommodations over two floors with private gardens and parking on offer. A open planning, living kitchen creates a modern hub to the home with space for modern family living. Two flexible rooms are also located on the ground floor which could easily be used as additional reception or bedrooms subject to the requirements of the owner. A central jack/Jill bathroom is presented with four piece fitments. To the first floor are three further bedrooms, two of which having ensuite bathrooms.

Externally, gated access provides off street parking with a spacious rear garden enjoying pleasant views.

THE BYRE
You're welcomed into a stylish, newly renovated kitchen with modern fittings and ample storage, which flows easily into a spacious and bright living room, perfect for entertaining or relaxing while taking in the scenic farmland views.

The property features three well-proportioned bedrooms. The master bedroom includes a modern en-suite and built-in storage, while the additional two bedrooms are generously sized, with space for double beds and further storage. A contemporary family bathroom completes the interior layout.

Externally, the bungalow benefits from parking and a well-maintained shared front garden, ideal for outdoor dining or enjoying sunny afternoons.

THE OLD STABLES
Upon entering the property through the front door, you are welcomed into a generously sized open-plan kitchen and living area. The kitchen is well-equipped with ample cupboard space and work surfaces. The adjoining living room provides a warm and inviting space with plenty of room for a full suite of furniture. Ideal for both relaxing and entertaining guests. Large windows allow for natural light and offer beautiful views over the surrounding farmland.

A hallway leads you through the rest of the home. The second bedroom is a comfortable double with space for additional storage. Further down the corridor, you'll find a spacious bathroom featuring both a bathtub and a separate shower, with the added benefit of dual access to the Master bedroom. The Master bedroom is located at the end of the hallway, offering privacy, generous proportions, and wardrobe space.

Outside, the front of the property enjoys access to a garden, while the rear features a large, low-maintenance private garden with decking, perfect for enjoying the countryside.

AGENT NOTES:
All properties are on an individual LPG Tank

Tenure: Freehold

EPC Rating: E-B

Important Notice to Prospective Buyers

We draw your attention to the Special Conditions of Sale within the Legal Pack, referring to other charges in addition to the purchase price which may become payable. Such costs may include Search Fees, reimbursement of Sellers costs and Legal Fees, and Transfer Fees amongst others.

Administration Charge

1.2% inc vat payable upon the fall of the virtual gavel

Loading the bidding panel...

* Guide | £1,000,000
  • 13 Bedrooms
  • Unconditional (Immediate Exchange)

Call the team on 0191 908 9691 for more information

Disclaimer: The map preview provided above is for general guidance only and may not accurately reflect the exact location or surrounding buildings. Prospective buyers and interested parties are strongly advised to independently verify the precise location and surroundings before bidding.

Note

  1. MONEY LAUNDERING REGULATIONS: Intending purchasers will be asked to produce identification documentation at a later stage and we would ask for your co-operation in order that there will be no delay in agreeing the sale.
  2. General : While we endeavour to make our sales particulars fair, accurate and reliable, they are only a general guide to the property and, accordingly, if there is any point which is of particular importance to you, please contact the office and we will be pleased to check the position for you, especially if you are contemplating travelling some distance to view the property.
  3. Measurements: These approximate room sizes are only intended as general guidance. You must verify the dimensions carefully before ordering carpets or any built-in furniture.
  4. Services: Please note we have not tested the services or any of the equipment or appliances in this property, accordingly we strongly advise prospective buyers to commission their own survey or service reports before finalising their offer to purchase.
  5. THESE PARTICULARS ARE ISSUED IN GOOD FAITH BUT DO NOT CONSTITUTE REPRESENTATIONS OF FACT OR FORM PART OF ANY OFFER OR CONTRACT. THE MATTERS REFERRED TO IN THESE PARTICULARS SHOULD BE INDEPENDENTLY VERIFIED BY PROSPECTIVE BUYERS OR TENANTS. NEITHER AUCTION HOUSE NOR ANY OF ITS EMPLOYEES OR AGENTS HAS ANY AUTHORITY TO MAKE OR GIVE ANY REPRESENTATION OR WARRANTY WHATEVER IN RELATION TO THIS PROPERTY.