Auction House / Cheshire, Staffordshire & Shropshire

  • For Sale By Unconditional Online Auction
  • Guide Price* : £23,000
  • Bidding Opens 01/12/2025 13:00
  • Lot 9

16 Rowley Street, Stafford, Staffordshire, ST16 2RH

2 BED LARGE TERRACE FOR SALE BY AUCTION 20TH 21ST OCTOBER

Description

2 BED LARGE TERRACE FOR SALE BY AUCTION 20TH 21ST OCTOBER

FOR SALE VIA ONLINE AUCTION ON MONDAY 20th October AT 1PM UNTIL TUESDAY TUESDAY 21st October 1PM.

OPEN HOUSE EVENT 3rd October 10.00AM to 10.30AM
OPEN HOUSE EVENT 10th October 10.00AM to 10.30AM
OPEN HOUSE EVENT 11th October 10.00AM to 10.30AM
OPEN HOUSE EVENT 17th October 5.00PM to 5.30PM

IF YOU ARE ATTENDING AN OPEN HOUSE YOU WILL NEED TO CONFIRM AND CAN BE ALLOCATED A VIEWING SLOT IF APPLICANTS DO NOT CONFIRM THE OPEN HOUSE WILL NOT BE ATTENDED BOOK YOUR VIEWING BY EMAIL, PHONE OR THE AUCTION HOUSE WEBSITE

Auction House welcomes this Two Bedroom Mid Terrace Property to Auction Currently being sold vacant.

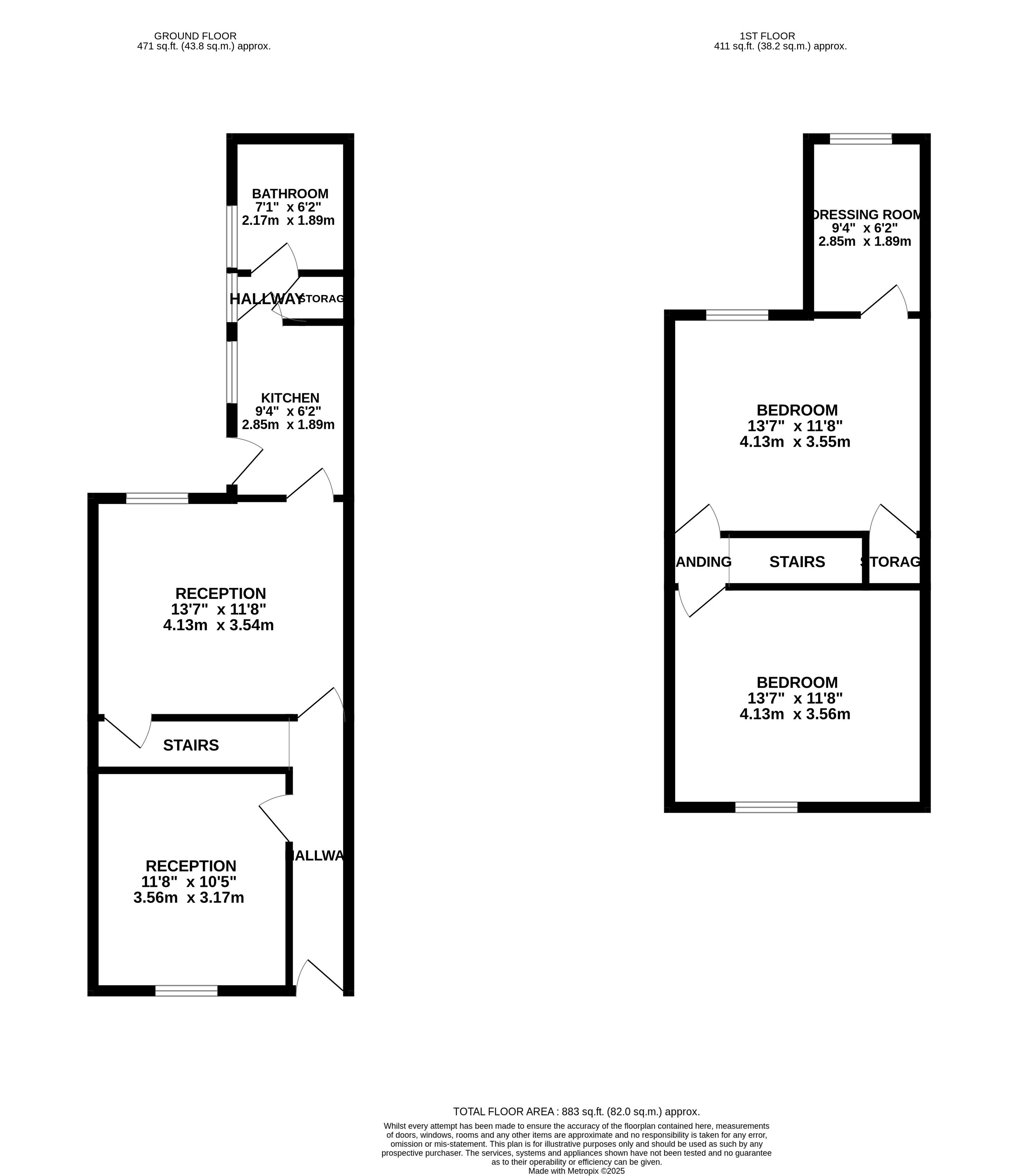
In brief, to the ground floor the property has Entrance Hall, Two receptions with kitchen, access to the rear GARDEN and Ground floor bathroom. To the first floor can be found currently Two good sized bedrooms and additional study/dressing room off the main bedroom.
The property has on street parking and rear garden.

This property is located in Stafford Town Centre close to local schools, shops and major road networks such as A34 and M6.

PLEASE NOTE No appliances have been tested by Auction House. Any measurements are approximate. We recommend any would be bidders conduct their own due diligence in good time prior to the auction taking place.

IMPORTANT INFORMATION Buying at auction is a contractual commitment, you are legally obliged to buy the lot on the terms of the sale memorandum at the price you bid. If you are the successful bidder, you are required to pay the deposit and auction fees immediately. As agent for the seller, we treat any failure to satisfy your obligations as your repudiation of the contract and the seller may then have a claim against you for breach of contract. You must not bid unless you wish to be bound by the common conditions of auction.

Any purchasers choosing to buy without viewing in person are doing so at their own risk and acknowledge that the auctioneer will not be held responsible for any issues that may arise due to them being unintentionally missed from the video or sales particulars.

Tenure: Freehold

EPC Rating: C

Important Notice to Prospective Buyers

We draw your attention to the Special Conditions of Sale within the Legal Pack, referring to other charges in addition to the purchase price which may become payable. Such costs may include Search Fees, reimbursement of Sellers costs and Legal Fees, and Transfer Fees amongst others.

Buyers Premium

Administration Charge is a non-refundable £1,800 inc VAT payable on the fall of the virtual gavel.

Administration Charge

Administration Charge is a non-refundable £1,800 inc VAT payable on the fall of the virtual gavel.

Disbursements

Please see the legal pack for any disbursements listed that may become payable by the purchaser on completion.

Loading the bidding panel...

Make An Enquiry

Submit an enquiry for this lot and someone will be in contact shortly.

 
 
 
* Guide | £23,000
  • 2 Bedrooms
  • Unconditional (Immediate Exchange)

Call the team on 0345 646 2350 for more information

Disclaimer: The map preview provided above is for general guidance only and may not accurately reflect the exact location or surrounding buildings. Prospective buyers and interested parties are strongly advised to independently verify the precise location and surroundings before bidding.

Note

  1. MONEY LAUNDERING REGULATIONS: Intending purchasers will be asked to produce identification documentation at a later stage and we would ask for your co-operation in order that there will be no delay in agreeing the sale.
  2. General : While we endeavour to make our sales particulars fair, accurate and reliable, they are only a general guide to the property and, accordingly, if there is any point which is of particular importance to you, please contact the office and we will be pleased to check the position for you, especially if you are contemplating travelling some distance to view the property.
  3. Measurements: These approximate room sizes are only intended as general guidance. You must verify the dimensions carefully before ordering carpets or any built-in furniture.
  4. Services: Please note we have not tested the services or any of the equipment or appliances in this property, accordingly we strongly advise prospective buyers to commission their own survey or service reports before finalising their offer to purchase.
  5. THESE PARTICULARS ARE ISSUED IN GOOD FAITH BUT DO NOT CONSTITUTE REPRESENTATIONS OF FACT OR FORM PART OF ANY OFFER OR CONTRACT. THE MATTERS REFERRED TO IN THESE PARTICULARS SHOULD BE INDEPENDENTLY VERIFIED BY PROSPECTIVE BUYERS OR TENANTS. NEITHER AUCTION HOUSE NOR ANY OF ITS EMPLOYEES OR AGENTS HAS ANY AUTHORITY TO MAKE OR GIVE ANY REPRESENTATION OR WARRANTY WHATEVER IN RELATION TO THIS PROPERTY.