Auction House / North East

  • For Sale By Unconditional Online Auction
  • Guide Price* : £40,000
  • Auction Ended 24/11/2025
  • Lot 58

13 Thames Street Chopwell, Newcastle upon Tyne, Tyne and Wear, NE17 7DB

Auction Commencing on Monday 24th November at 1pm and ending 24 hours later on Tuesday 25th November at 1pm with Auction House North East

Please register to bid via our website - auctionhouse.co.uk/northeast

Description

Auction Commencing on Monday 24th November at 1pm and ending 24 hours later on Tuesday 25th November at 1pm with Auction House North East

Please register to bid via our website - auctionhouse.co.uk/northeast

Ideal Buy-to-Let or First-Time Buy – Ready to Earn or Move Straight In!

Call Your Move Rowlands Gill today on 01207 544498 to arrange a viewing!

A superb investment or first-time buyer opportunity!

Located in the heart of Chopwell, this three-bedroom mid-terraced house offers excellent value and strong rental potential. Recently updated with neutral décor throughout, the property is ready for immediate occupation or further cosmetic enhancement to add value.

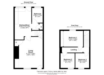
The accommodation includes a spacious lounge, a modern kitchen/diner, ground-floor bathroom, and three well-proportioned bedrooms to the first floor. Externally, there is a low-maintenance rear garden with gated access. Positioned within walking distance of shops, amenities, schools, and transport links, this property will appeal to landlords, owner-occupiers, and those seeking a reliable buy-to-let in a popular rental area.

Key Features:
Three-bedroom mid-terraced home
Modern kitchen/diner and spacious living room
Neutral décor throughout
Ground-floor bathroom
Low-maintenance rear garden with gated access
Strong rental demand in the area – ideal buy-to-let
Vacant & offered with no onward chain
Council Tax Band: A

Whether you’re looking for your first home, a refurbishment project, or a solid addition to your rental portfolio, 13 Thames Street presents a compelling opportunity not to be missed.

Tenure: Freehold

EPC Rating: D

Important Notice to Prospective Buyers

We draw your attention to the Special Conditions of Sale within the Legal Pack, referring to other charges in addition to the purchase price which may become payable. Such costs may include Search Fees, reimbursement of Sellers costs and Legal Fees, and Transfer Fees amongst others.

Administration Charge

£3,600 inc vat payable upon the fall of the virtual gavel

Loading the bidding panel...

* Guide | £40,000
  • Terraced House
  • 3 Bedrooms
  • Unconditional (Immediate Exchange)

Call the team on 0191 908 9691 for more information

Disclaimer: The map preview provided above is for general guidance only and may not accurately reflect the exact location or surrounding buildings. Prospective buyers and interested parties are strongly advised to independently verify the precise location and surroundings before bidding.

Note

  1. MONEY LAUNDERING REGULATIONS: Intending purchasers will be asked to produce identification documentation at a later stage and we would ask for your co-operation in order that there will be no delay in agreeing the sale.
  2. General : While we endeavour to make our sales particulars fair, accurate and reliable, they are only a general guide to the property and, accordingly, if there is any point which is of particular importance to you, please contact the office and we will be pleased to check the position for you, especially if you are contemplating travelling some distance to view the property.
  3. Measurements: These approximate room sizes are only intended as general guidance. You must verify the dimensions carefully before ordering carpets or any built-in furniture.
  4. Services: Please note we have not tested the services or any of the equipment or appliances in this property, accordingly we strongly advise prospective buyers to commission their own survey or service reports before finalising their offer to purchase.
  5. THESE PARTICULARS ARE ISSUED IN GOOD FAITH BUT DO NOT CONSTITUTE REPRESENTATIONS OF FACT OR FORM PART OF ANY OFFER OR CONTRACT. THE MATTERS REFERRED TO IN THESE PARTICULARS SHOULD BE INDEPENDENTLY VERIFIED BY PROSPECTIVE BUYERS OR TENANTS. NEITHER AUCTION HOUSE NOR ANY OF ITS EMPLOYEES OR AGENTS HAS ANY AUTHORITY TO MAKE OR GIVE ANY REPRESENTATION OR WARRANTY WHATEVER IN RELATION TO THIS PROPERTY.