Auction House / South Yorkshire

  • For Sale By Unconditional Online Auction
  • Guide Price* : £100,000 - £140,000
  • Bidding Opens 24/11/2025 13:00

7 Blands Cliff, Scarborough, North Yorkshire, YO11 1NR

A substantial coastal property ripe for renovation – five storeys of potential in the heart of Scarborough.

Description

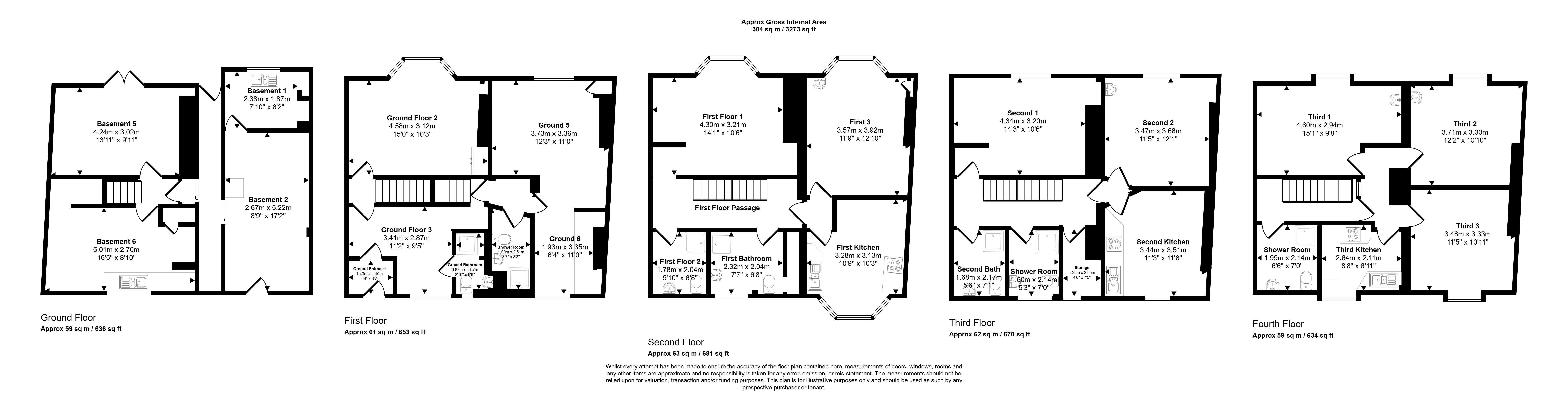
An exceptional opportunity to acquire a substantial five-storey period property situated just moments from Scarborough’s South Bay and seafront amenities. Offering over 3,200 sq ft (304 sq m) of accommodation, this property provides enormous potential for investment, redevelopment, or conversion (subject to consent).

Currently arranged as a series of self-contained rooms and kitchen areas across the basement, ground, and upper floors, the property has been partially stripped and is now ready for renovation. Once refurbished, it could suit a variety of uses including HMO, holiday lets, or conversion into apartments.

Accommodation
Basement & Ground Floors: Multiple rooms with kitchen facilities and storage areas. Potential to create additional living accommodation or communal areas.

Upper Floors: A mix of bedrooms, bathrooms, and kitchens spread across three levels, many with large sash windows providing excellent natural light.

Approx. Total Floor Area: 3,273 sq ft (304 sq m)

Outside
Rear access and potential for courtyard space (subject to reconfiguration).

Location
Superbly located on Blands Cliff, this property is just a short walk from Scarborough’s sandy beaches, the town centre, and local transport links. The area is popular with tourists and long-term residents alike, offering strong rental demand for both permanent and short-term lets.

Tenure
Freehold.

EPC Rating
E

Auctioneer’s Note
The property requires full refurbishment throughout. Interested parties are advised to make their own enquiries regarding planning and permitted use.

Tenure: Freehold

EPC Rating: E

Important Notice to Prospective Buyers

We draw your attention to the Special Conditions of Sale within the Legal Pack, referring to other charges in addition to the purchase price which may become payable. Such costs may include Search Fees, reimbursement of Sellers costs and Legal Fees, and Transfer Fees amongst others.

Administration Charge

£3,600 inc vat payable upon the fall of the virtual gavel

Loading the bidding panel...

Make An Enquiry

Submit an enquiry for this lot and someone will be in contact shortly.

 
 
 
* Guide | £100,000 - £140,000
  • 13 Bedrooms
  • Unconditional (Immediate Exchange)

Call the team on 0114 223 0777 for more information

Disclaimer: The map preview provided above is for general guidance only and may not accurately reflect the exact location or surrounding buildings. Prospective buyers and interested parties are strongly advised to independently verify the precise location and surroundings before bidding.

Note

  1. MONEY LAUNDERING REGULATIONS: Intending purchasers will be asked to produce identification documentation at a later stage and we would ask for your co-operation in order that there will be no delay in agreeing the sale.
  2. General : While we endeavour to make our sales particulars fair, accurate and reliable, they are only a general guide to the property and, accordingly, if there is any point which is of particular importance to you, please contact the office and we will be pleased to check the position for you, especially if you are contemplating travelling some distance to view the property.
  3. Measurements: These approximate room sizes are only intended as general guidance. You must verify the dimensions carefully before ordering carpets or any built-in furniture.
  4. Services: Please note we have not tested the services or any of the equipment or appliances in this property, accordingly we strongly advise prospective buyers to commission their own survey or service reports before finalising their offer to purchase.
  5. THESE PARTICULARS ARE ISSUED IN GOOD FAITH BUT DO NOT CONSTITUTE REPRESENTATIONS OF FACT OR FORM PART OF ANY OFFER OR CONTRACT. THE MATTERS REFERRED TO IN THESE PARTICULARS SHOULD BE INDEPENDENTLY VERIFIED BY PROSPECTIVE BUYERS OR TENANTS. NEITHER AUCTION HOUSE NOR ANY OF ITS EMPLOYEES OR AGENTS HAS ANY AUTHORITY TO MAKE OR GIVE ANY REPRESENTATION OR WARRANTY WHATEVER IN RELATION TO THIS PROPERTY.