Auction House / Manchester

  • For Sale By Unconditional Online Auction
  • Guide Price* : £80,000
  • Bidding Opens 24/11/2025 13:00

42 Hull Road, Blackpool, Lancashire, FY1 4QB

Description

An exciting opportunity to acquire a substantial four-storey mid-terrace property arranged as six self-contained holiday apartments in the heart of Blackpool’s vibrant town centre, just moments from the seafront, Winter Gardens, and the main Promenade attractions.

This property represents a rare chance to acquire a centrally located holiday accommodation block in a prime area.

With refurbishment and modernisation, it offers strong potential, offering flexible investment potential, this property would suit buyers seeking short-term let income, serviced accommodation, or redevelopment subject to consents.

Situated on Hull Road, a well-known mixed-use street lined with guesthouses, boutique B&Bs, and serviced apartments.

200 metres from Blackpool Tower and the Promenade, 3 minutes’ walk to Coral Island, Winter Gardens, and town-centre shopping.

Excellent transport links via Blackpool North railway station and nearby tram network.

This is one of Blackpool’s busiest tourist areas, making it ideal for holiday accommodation or short-term let investment.

The property was reportedly converted to holiday flats around 1988. Buyers are advised to satisfy themselves as to the current planning status and compliance with Blackpool Council’s Holiday Accommodation Area policy.

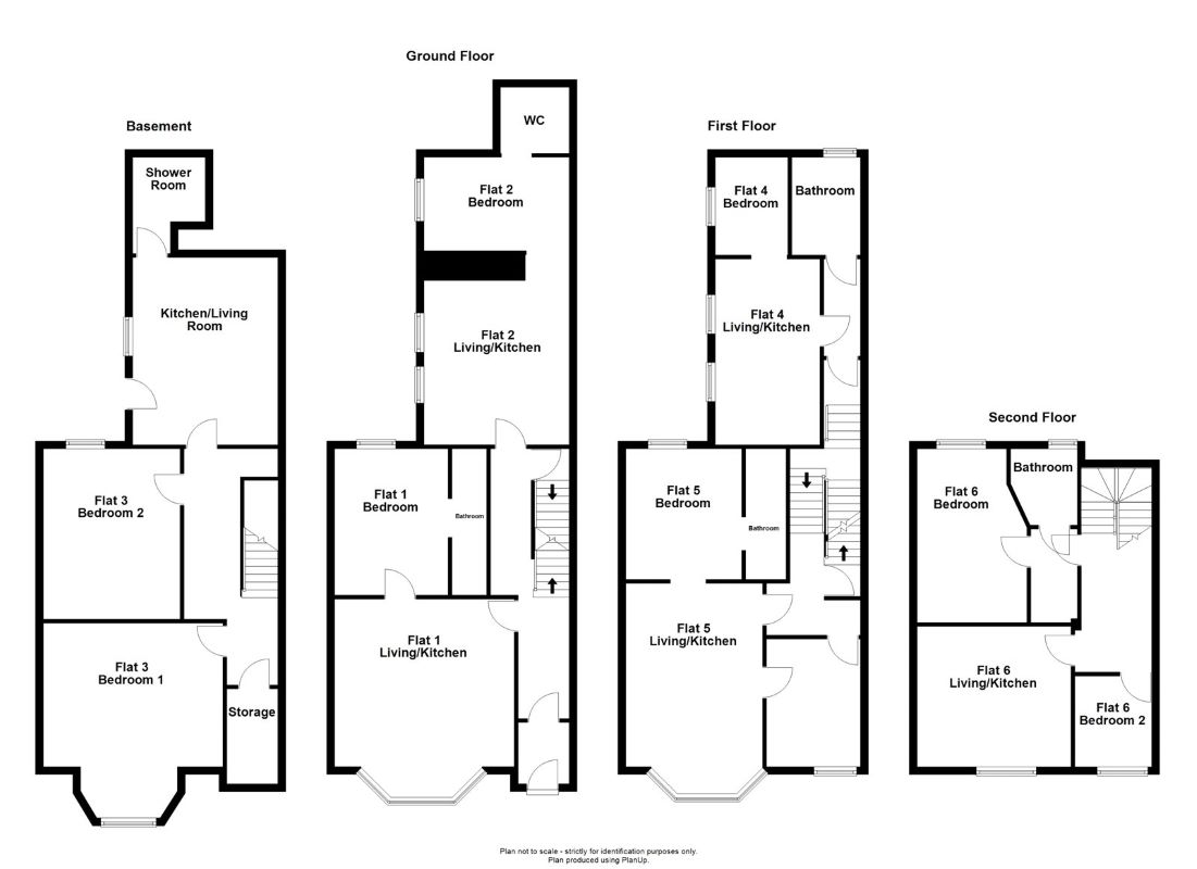
Accommodation

Basement
Flat 3 Kitchen/Living room
Flat 3 Bedroom 1
Flat 3 Bedroom 2
Flat 3 Shower Room
Storage

Ground Floor
Flat 1 Living/Kitchen
Flat 1 Bedroom
Bathroom
Flat 2 Living/Kitchen
Flat 2 Bedroom
WC

First Floor
Flat 4 Living/Kitchen
Flat 4 Bedroom
Bathroom
Flat 5 Living/Kitchen
Flat 5 Bedroom

Second Floor
Flat 6 Living/Kitchen
Flat 6 Bedroom 1
Flat 6 Bedroom 2
Bathroom

Tenure

Freehold

Council Tax Band

A

Important Notice to Prospective Buyers

We draw your attention to the Special Conditions of Sale within the Legal Pack, referring to other charges in addition to the purchase price which may become payable. Such costs may include Search Fees, reimbursement of Sellers costs and Legal Fees, and Transfer Fees amongst others.

Administration Charge

In addition to the deposit Administration Charge: 1.2% inc VAT of the purchase price subject to a minimum of £1,500 inc VAT.

Loading the bidding panel...

Make An Enquiry

Submit an enquiry for this lot and someone will be in contact shortly.

 
 
 
* Guide | £80,000
  • 8 Bedrooms
  • Tenure: Freehold
  • Unconditional (Immediate Exchange)

Call the team on 0161 925 3254 for more information

Related Documents

Disclaimer: The map preview provided above is for general guidance only and may not accurately reflect the exact location or surrounding buildings. Prospective buyers and interested parties are strongly advised to independently verify the precise location and surroundings before bidding.

Note

  1. MONEY LAUNDERING REGULATIONS: Intending purchasers will be asked to produce identification documentation at a later stage and we would ask for your co-operation in order that there will be no delay in agreeing the sale.
  2. General : While we endeavour to make our sales particulars fair, accurate and reliable, they are only a general guide to the property and, accordingly, if there is any point which is of particular importance to you, please contact the office and we will be pleased to check the position for you, especially if you are contemplating travelling some distance to view the property.
  3. Measurements: These approximate room sizes are only intended as general guidance. You must verify the dimensions carefully before ordering carpets or any built-in furniture.
  4. Services: Please note we have not tested the services or any of the equipment or appliances in this property, accordingly we strongly advise prospective buyers to commission their own survey or service reports before finalising their offer to purchase.
  5. THESE PARTICULARS ARE ISSUED IN GOOD FAITH BUT DO NOT CONSTITUTE REPRESENTATIONS OF FACT OR FORM PART OF ANY OFFER OR CONTRACT. THE MATTERS REFERRED TO IN THESE PARTICULARS SHOULD BE INDEPENDENTLY VERIFIED BY PROSPECTIVE BUYERS OR TENANTS. NEITHER AUCTION HOUSE NOR ANY OF ITS EMPLOYEES OR AGENTS HAS ANY AUTHORITY TO MAKE OR GIVE ANY REPRESENTATION OR WARRANTY WHATEVER IN RELATION TO THIS PROPERTY.