Auction House / Hull & East Yorkshire

  • For Sale By Unconditional Online Auction
  • Guide Price* : £145,000
  • Auction Ended 28/10/2025
  • Lot 12

12 Station Avenue, Bridlington, East Yorkshire, YO16 4LZ

A six bedroom detached house requiring refurbishment throughout.

Viewing Details

Strictly by appointment with the Auctioneers on 0845 400 9900.

Location

Situated on Station Avenue in Bridlington, the property is located in close proximity of a range of local amenities including supermarkets, eateries and transport links.

Description

This six-bedroom detached house having previously been a residential home, is in need of modernisation and refurbishment throughout. The property offers potential to investors and property renovators alike to create a large family home or convert into flats (subject to necessary planning consents). The accommodation comprises two reception rooms, kitchen, utility rooms, three WCs, two bathrooms and six bedrooms. The property benefits from double glazing and gas central heating.

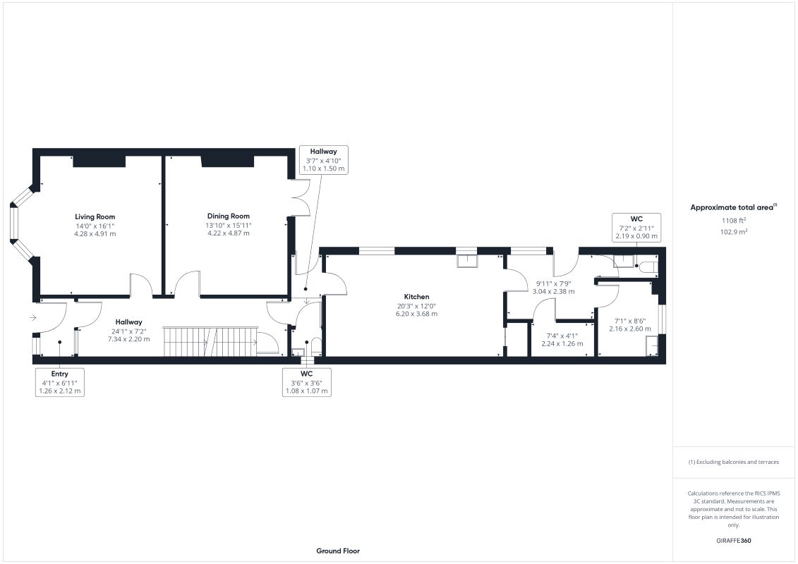
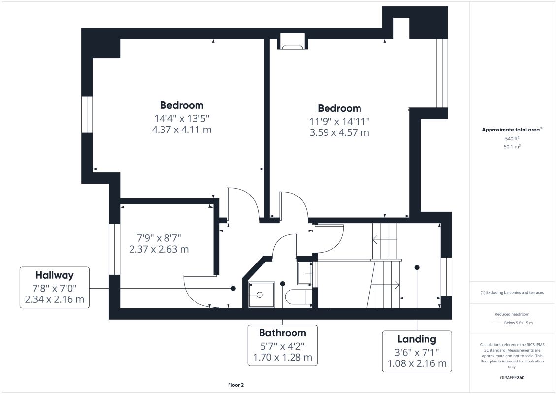
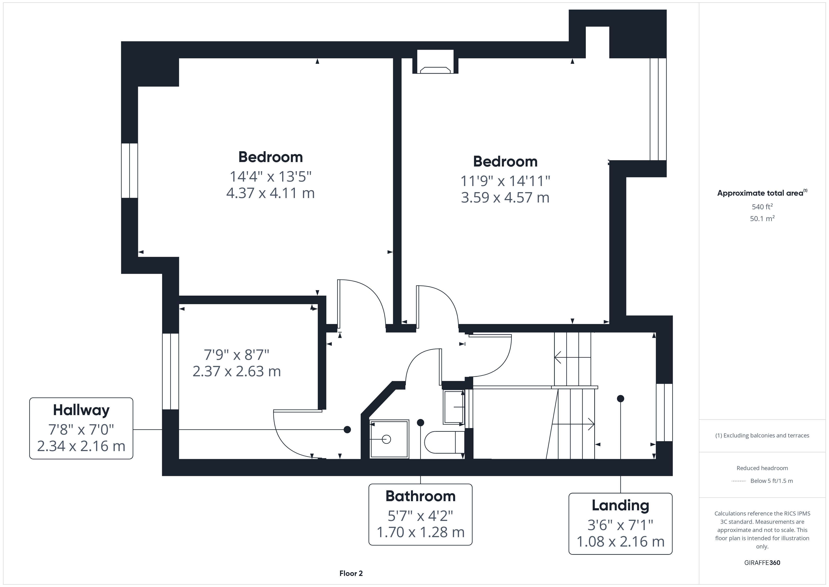
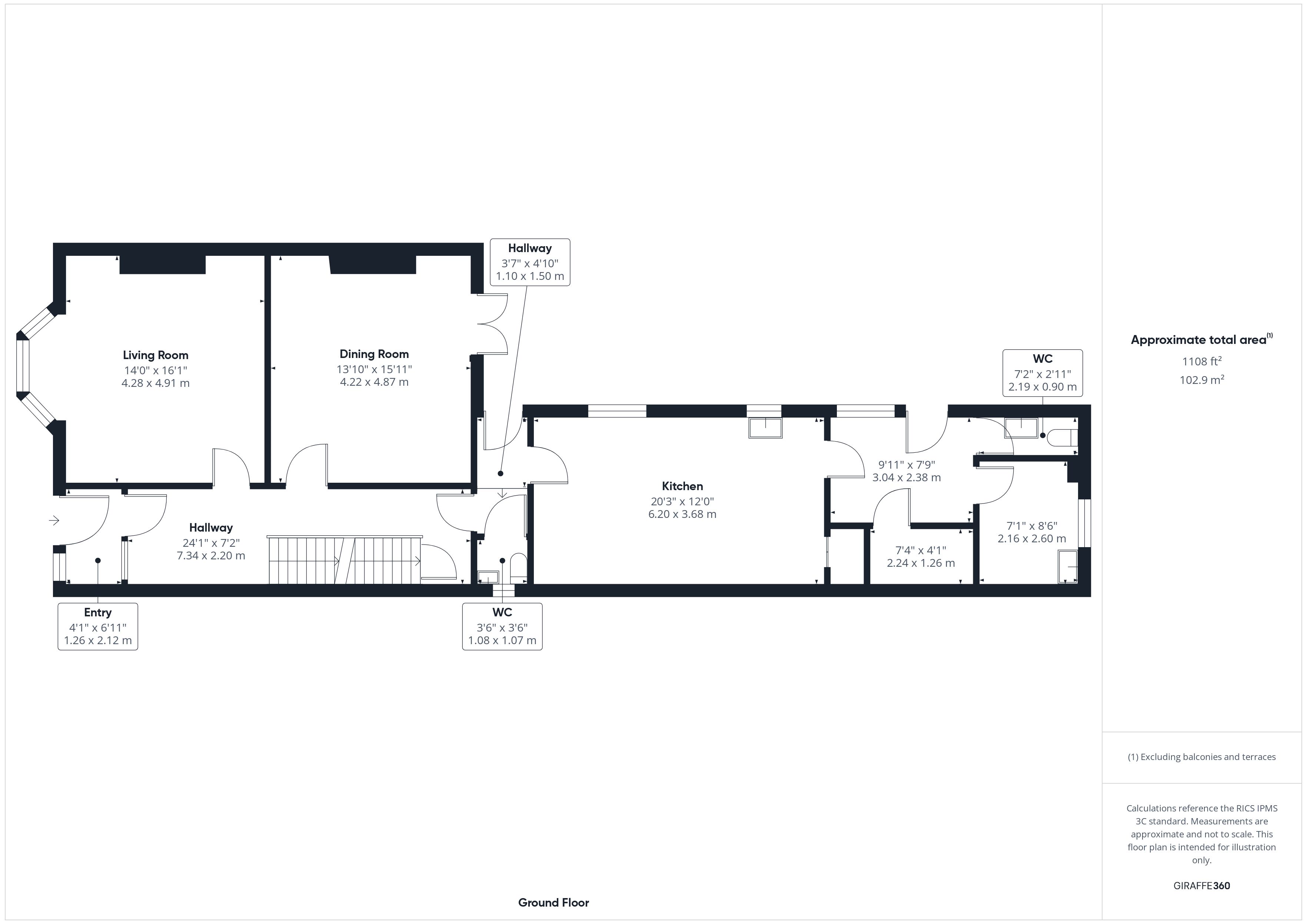
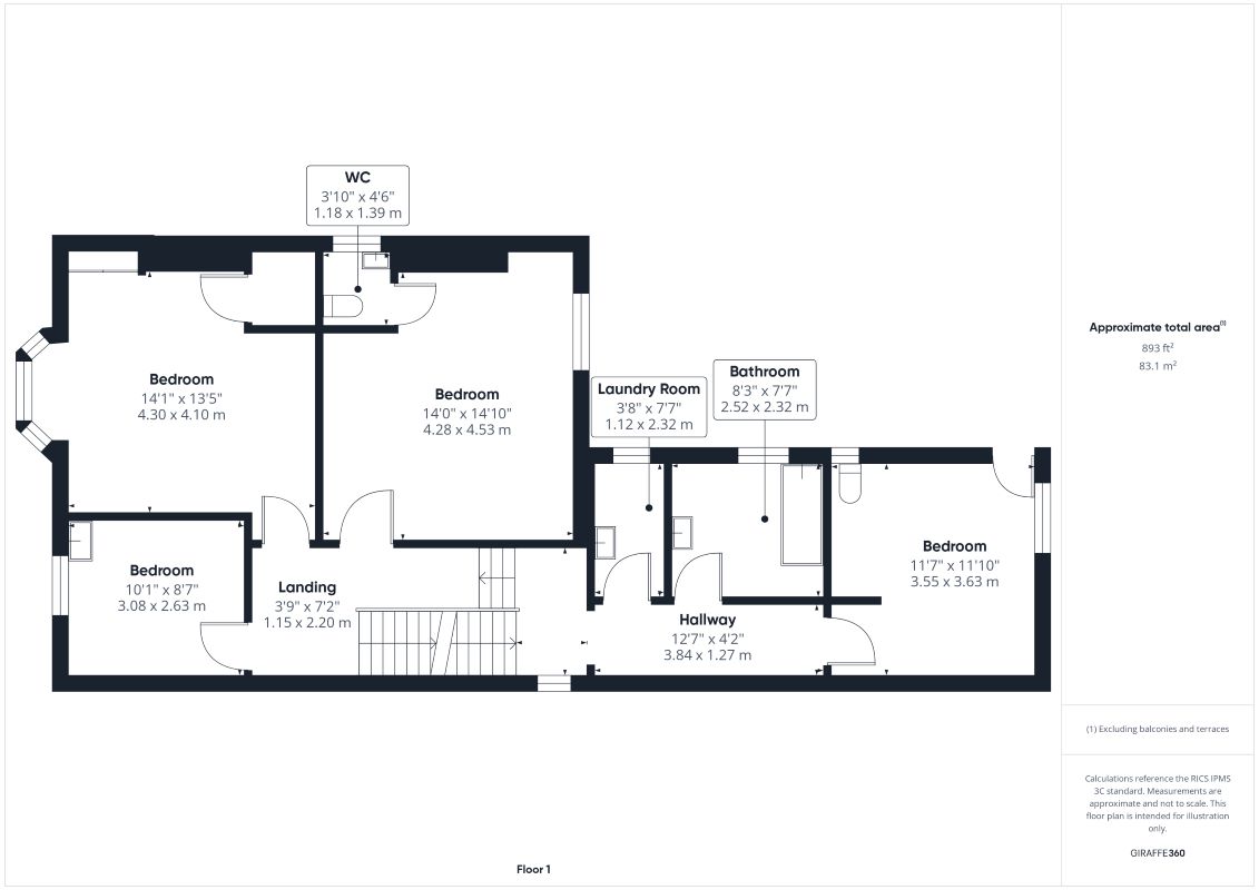
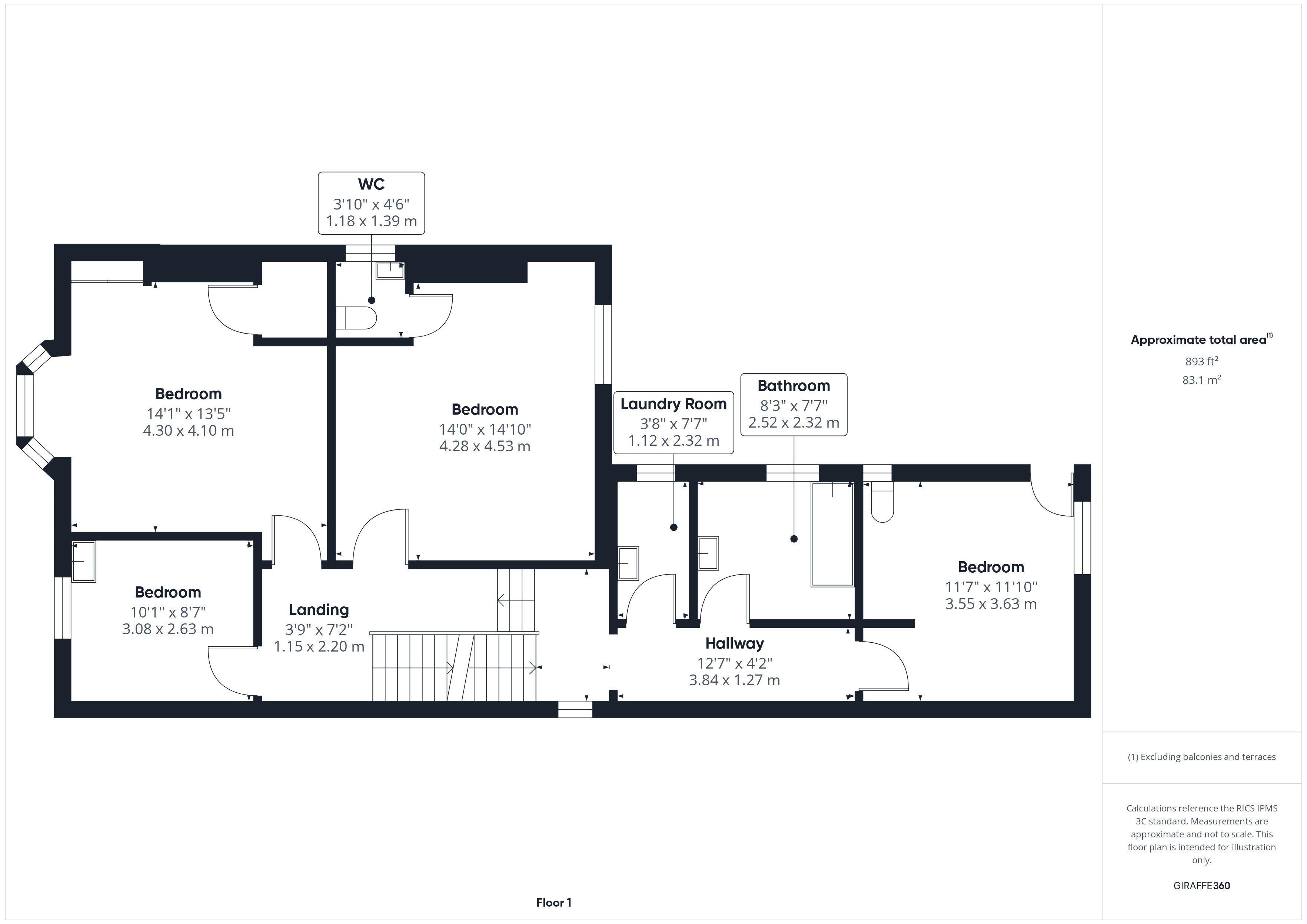
Accommodation

Ground Floor: Entrance Hall, Living Room, Downstairs WCs, Kitchen, Utility Rooms.

First Floor: Landing leading to four bedrooms (one with ensuite), Laundry Room, Bathroom.

Second Floor: Landing leading to two further bedrooms and shower room.

Exterior

Large rear garden laid mainly to lawn with area of decking.

Tenure

Freehold.

Note

Method of Sale

The property will be offered for sale by online auction with bidding commencing at 1pm on Monday 3rd November 2025 and closing on Tuesday 4th November 2025 at 1 pm. For further legal information relating to this lot and to register to bid, please go to auctionhouse.co.uk/hullandeastyorkshire.

Note

Conditions of Sale

The property will be sold subject to conditions of sale, copies of which will be available for inspection at the auctioneer’s offices, with the solicitors and on-line at auctionhouse.co.uk/hullandeastyorkshire prior to the date of the auction.

Note

Guide Price

Guides are provided as an indication of each sellers minimum expectation. They are not necessarily figures which a property will sell for and may change at any time prior to the auction. Each property will be offered subject to a Reserve (a figure below which the Auctioneer cannot sell the property during the auction) which we expect will be set within the Guide Range or no more than 10% above a single figure Guide.

Council Tax Band

E

Lot Type

Residential for Improvement

Important Notice to Prospective Buyers

We draw your attention to the Special Conditions of Sale within the Legal Pack, referring to other charges in addition to the purchase price which may become payable. Such costs may include Search Fees, reimbursement of Sellers costs and Legal Fees, and Transfer Fees amongst others.

Buyers Premium

The purchaser will be required to pay a buyer’s premium of £1500 (£1,250 + VAT) in addition to the purchase price of the property.

Administration Charge

The purchaser will be required to pay an administration charge of £1,200 (£1,000 plus VAT) in addition to the purchase price of the property.

Disbursements

Please see the legal pack for any disbursements listed that may become payable by the purchaser on completion.

Loading the bidding panel...

* Guide | £145,000
  • 6 Bedrooms
  • Tenure: Freehold.
  • Unconditional (Immediate Exchange)

Call the team on 0845 400 9900 for more information

Disclaimer: The map preview provided above is for general guidance only and may not accurately reflect the exact location or surrounding buildings. Prospective buyers and interested parties are strongly advised to independently verify the precise location and surroundings before bidding.

Note

  1. MONEY LAUNDERING REGULATIONS: Intending purchasers will be asked to produce identification documentation at a later stage and we would ask for your co-operation in order that there will be no delay in agreeing the sale.
  2. General : While we endeavour to make our sales particulars fair, accurate and reliable, they are only a general guide to the property and, accordingly, if there is any point which is of particular importance to you, please contact the office and we will be pleased to check the position for you, especially if you are contemplating travelling some distance to view the property.
  3. Measurements: These approximate room sizes are only intended as general guidance. You must verify the dimensions carefully before ordering carpets or any built-in furniture.
  4. Services: Please note we have not tested the services or any of the equipment or appliances in this property, accordingly we strongly advise prospective buyers to commission their own survey or service reports before finalising their offer to purchase.
  5. THESE PARTICULARS ARE ISSUED IN GOOD FAITH BUT DO NOT CONSTITUTE REPRESENTATIONS OF FACT OR FORM PART OF ANY OFFER OR CONTRACT. THE MATTERS REFERRED TO IN THESE PARTICULARS SHOULD BE INDEPENDENTLY VERIFIED BY PROSPECTIVE BUYERS OR TENANTS. NEITHER AUCTION HOUSE NOR ANY OF ITS EMPLOYEES OR AGENTS HAS ANY AUTHORITY TO MAKE OR GIVE ANY REPRESENTATION OR WARRANTY WHATEVER IN RELATION TO THIS PROPERTY.