Auction House / Hull & East Yorkshire

  • For Sale By Unconditional Online Auction
  • Guide Price* : £750,000
  • Auction Ended 27/10/2025
  • Lot 48

The Sandy Lane Hotel Residential Care Home, 33 Sands Lane, Bridlington, East Yorkshire, YO15 2JG

**ATTENTION PROPERTY DEVELOPERS & INVESTORS** This fantastic Development opportunity comprises a former Residential Care Home offering Sea views, and a potential plot for a new Dwelling.

Viewing Details

Strictly by appointment by the auctioneers on 0845 400 9900.

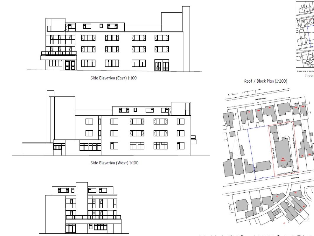
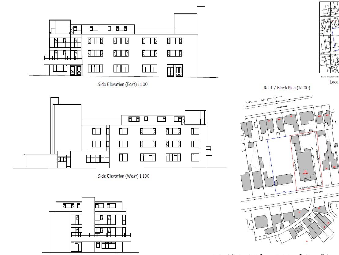
Location

Sands Lane is a prime coastal location in Bridlington, just a stone's throw from Bridlington's North Beach and within comfortable walking distance of the Town centre amenities.

Description

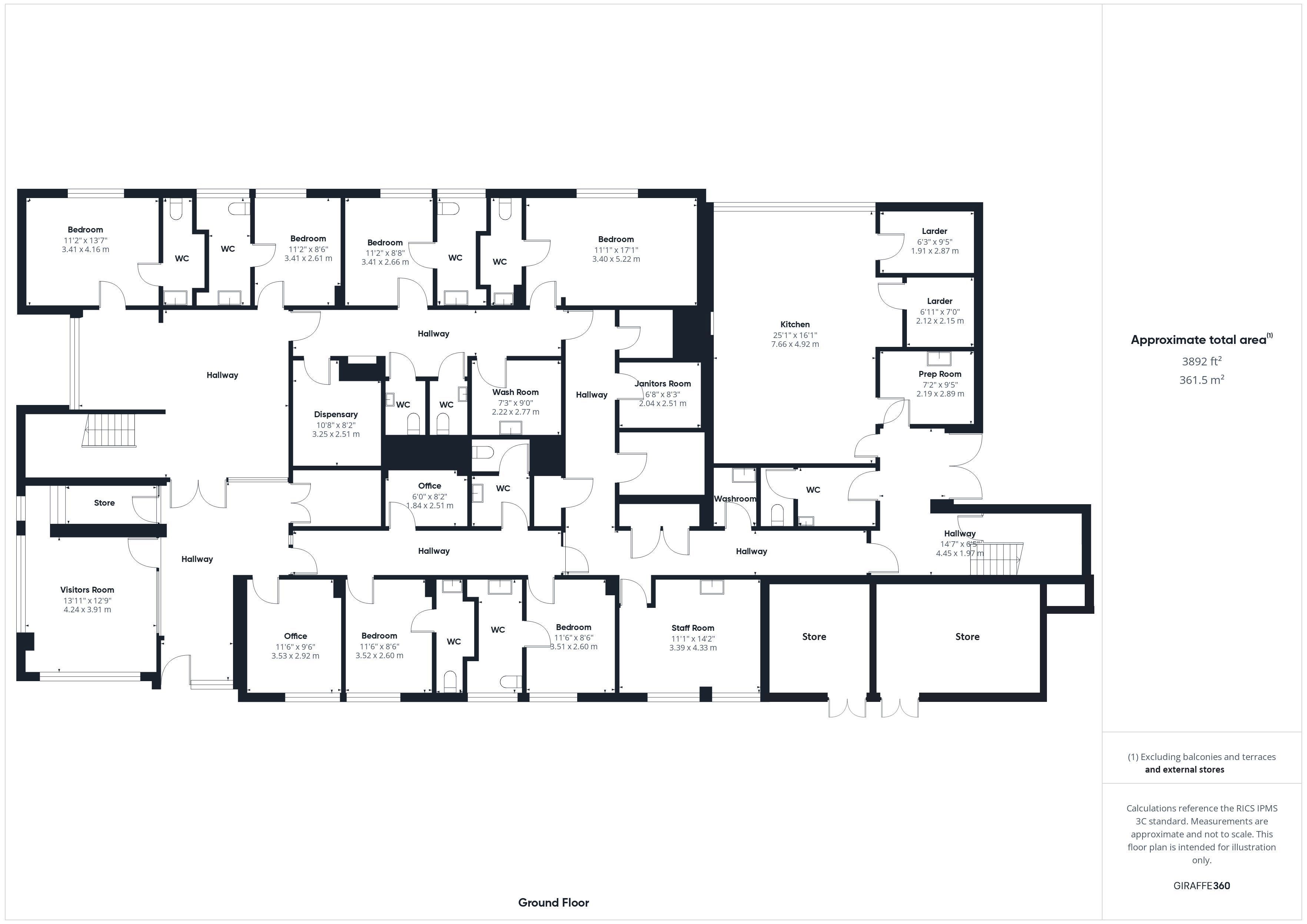
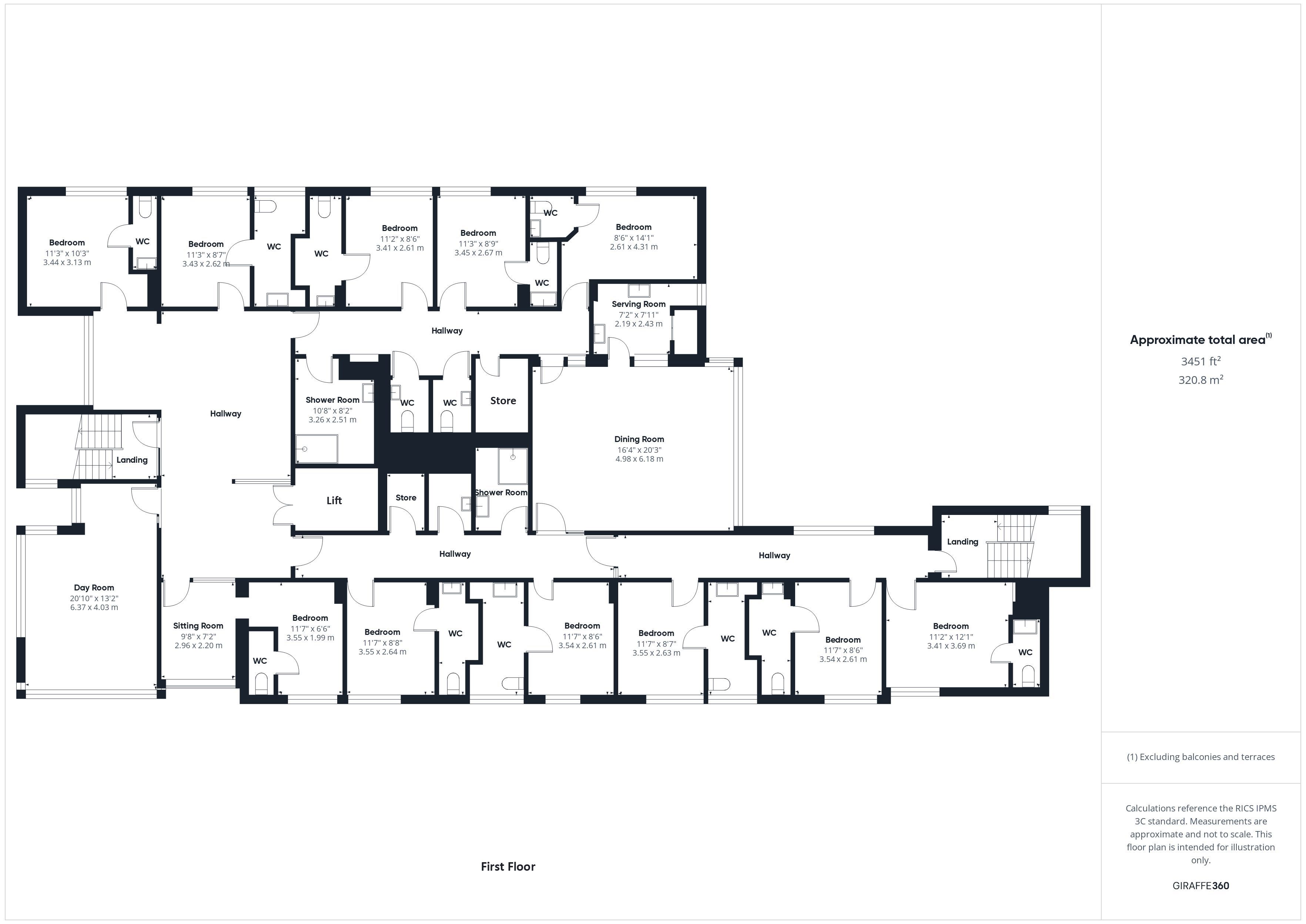
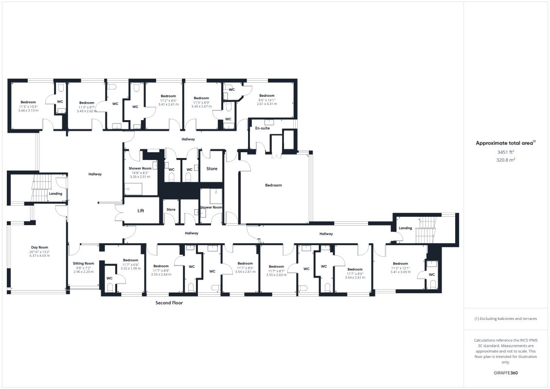
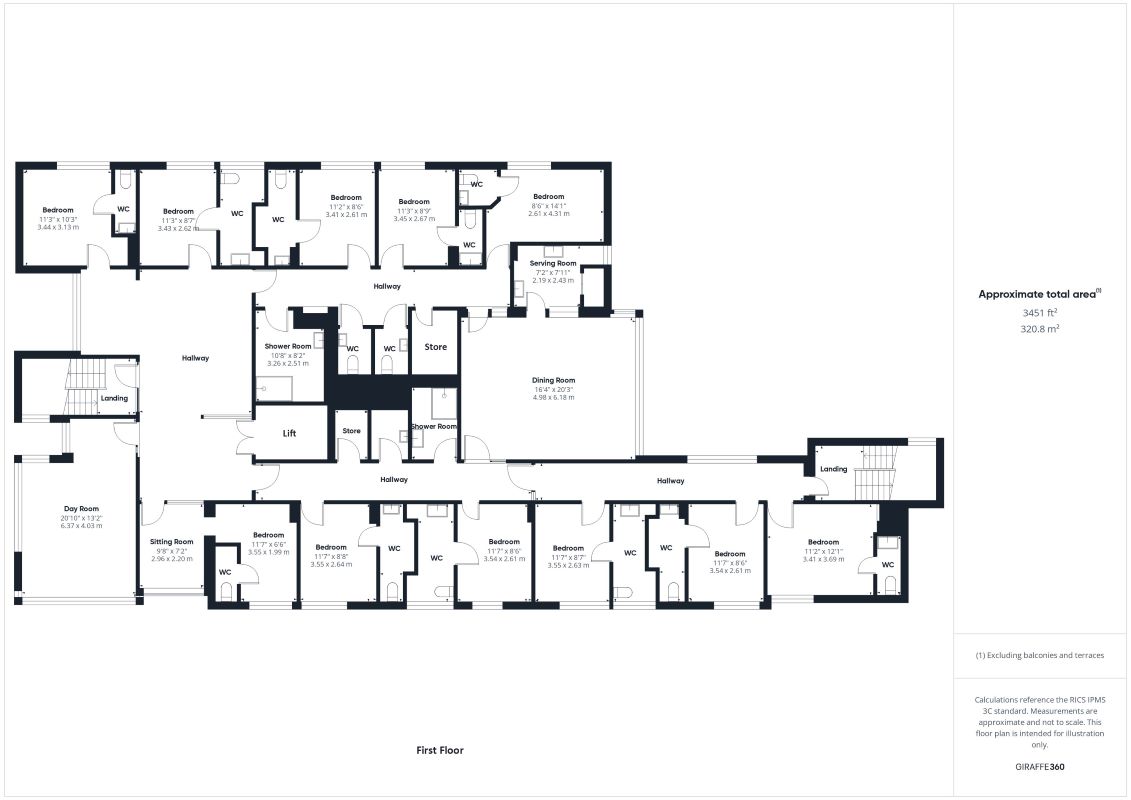
This substantial purpose-built former Retirement Home stands in one of Bridlington's most sought-after locations, enjoying sea views from many windows. Built in the 1960s, the four-storey building provides over 12,000 sq ft of accommodation, including six large communal lounges, two spacious dining rooms, a commercial kitchen, 29 single bedrooms with en-suite WC's, two large top-floor self-contained apartments, several offices, storage rooms and sluices, numerous communal bathrooms and WCs.

The property occupies a site of over half an acre and includes ample off-street parking and three double garages. A large area of land that was previously the garden of the adjacent bungalow, is also included in the sale, which enhances the appeal of the property and presents additional opportunities for further redevelopment. The existing building also offers an opportunity to investors and developers to transform the property into luxury apartments; reinstatement as a care home; or transformation into a boutique hotel, (subject to necessary planning consent). Before deciding to sell, the vendors had plans drawn up for the alteration and extension of the upper floor accommodation to create two, two-bedroom Penthouse apartments.

Accommodation

See floor plans for layout and location.

Tenure

Freehold with vacant possession upon completion.

Note

Solicitors Details:
Andrew Jackson Solicitors, Foss Islands House, York, North Yorkshire, YO31 7UJ FTAO Kirsty Barsby 01904 563 134

Note

The property will be offered for sale by online auction with bidding commencing at 12 noon on Monday 27th October 2025 and closing on Tuesday 28th October 2025 at 1.00pm. For further legal information relating to this lot please log on to auctionhouse.co.uk/hullandeastyorkshire.

Note

The property will be sold subject to conditions of sale, copies of which will be available for inspection at the auctioneer’s offices, with the solicitors and online at auctionhouse.co.uk/hullandeastyorkshire prior to the date of the auction.

Council Tax Band

H

Important Notice to Prospective Buyers

We draw your attention to the Special Conditions of Sale within the Legal Pack, referring to other charges in addition to the purchase price which may become payable. Such costs may include Search Fees, reimbursement of Sellers costs and Legal Fees, and Transfer Fees amongst others.

Buyers Premium

The purchaser will be required to pay a buyer’s premium of £1,200 (£1,000 + VAT) in addition to the purchase price of the property.

Administration Charge

The purchaser will be required to pay an administration charge of 0.3% subject to a minimum of £1,200 (£1,000 plus VAT) in addition to the purchase price of the property.

Disbursements

Please see the legal pack for any disbursements listed that may become payable by the purchaser on completion.

Loading the bidding panel...

* Guide | £750,000
  • Tenure: Freehold with vacant possession upon completion.
  • Unconditional (Immediate Exchange)

Call the team on 0845 400 9900 for more information

Disclaimer: The map preview provided above is for general guidance only and may not accurately reflect the exact location or surrounding buildings. Prospective buyers and interested parties are strongly advised to independently verify the precise location and surroundings before bidding.

Note

  1. MONEY LAUNDERING REGULATIONS: Intending purchasers will be asked to produce identification documentation at a later stage and we would ask for your co-operation in order that there will be no delay in agreeing the sale.
  2. General : While we endeavour to make our sales particulars fair, accurate and reliable, they are only a general guide to the property and, accordingly, if there is any point which is of particular importance to you, please contact the office and we will be pleased to check the position for you, especially if you are contemplating travelling some distance to view the property.
  3. Measurements: These approximate room sizes are only intended as general guidance. You must verify the dimensions carefully before ordering carpets or any built-in furniture.
  4. Services: Please note we have not tested the services or any of the equipment or appliances in this property, accordingly we strongly advise prospective buyers to commission their own survey or service reports before finalising their offer to purchase.
  5. THESE PARTICULARS ARE ISSUED IN GOOD FAITH BUT DO NOT CONSTITUTE REPRESENTATIONS OF FACT OR FORM PART OF ANY OFFER OR CONTRACT. THE MATTERS REFERRED TO IN THESE PARTICULARS SHOULD BE INDEPENDENTLY VERIFIED BY PROSPECTIVE BUYERS OR TENANTS. NEITHER AUCTION HOUSE NOR ANY OF ITS EMPLOYEES OR AGENTS HAS ANY AUTHORITY TO MAKE OR GIVE ANY REPRESENTATION OR WARRANTY WHATEVER IN RELATION TO THIS PROPERTY.