Auction House / Cheshire, Staffordshire & Shropshire

  • For Sale By Unconditional Online Auction
  • Guide Price* : £880,000
  • Auction Ended 06/01/2026
  • Lot 90

119-121 Banks Road West Kirby, Wirral, Merseyside, CH48 0RB

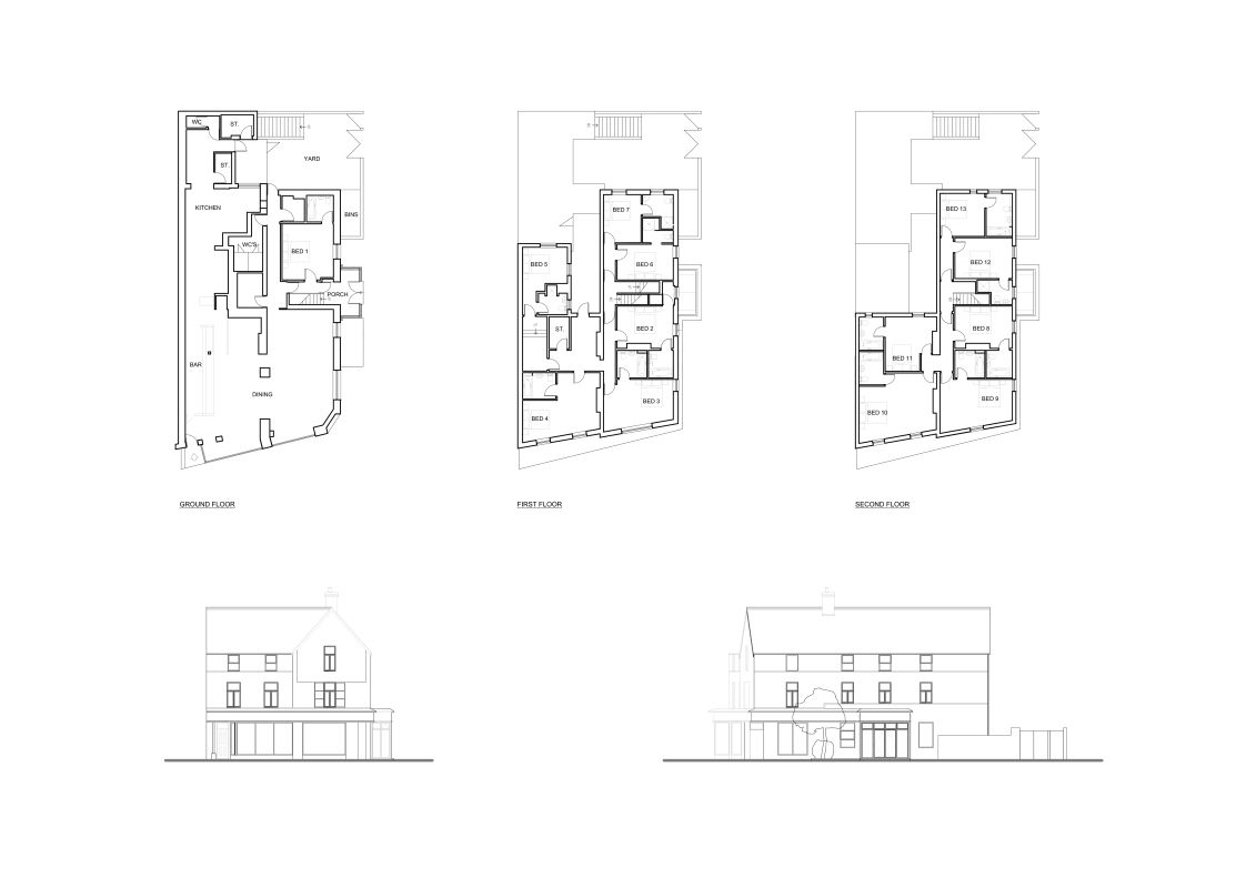
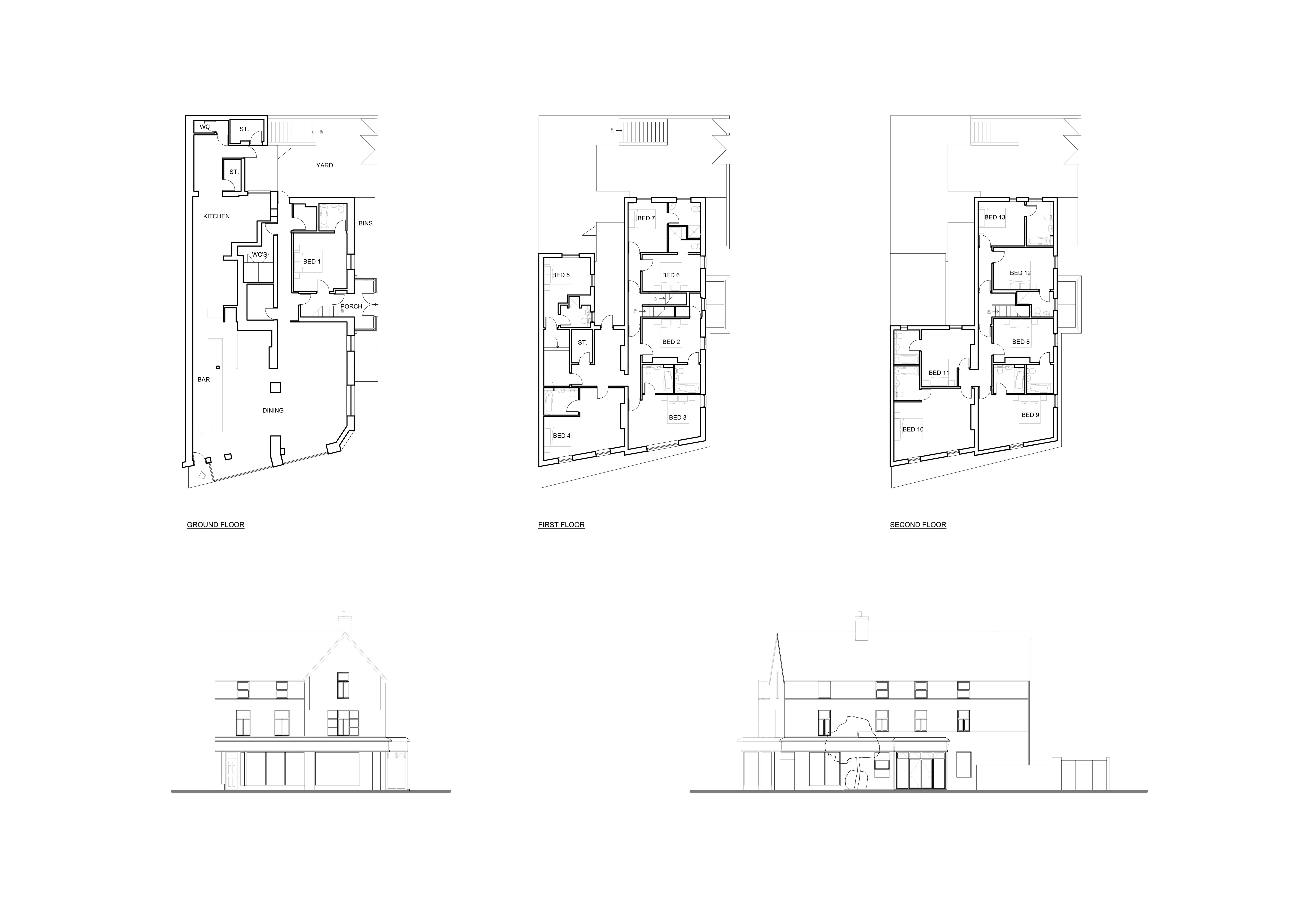
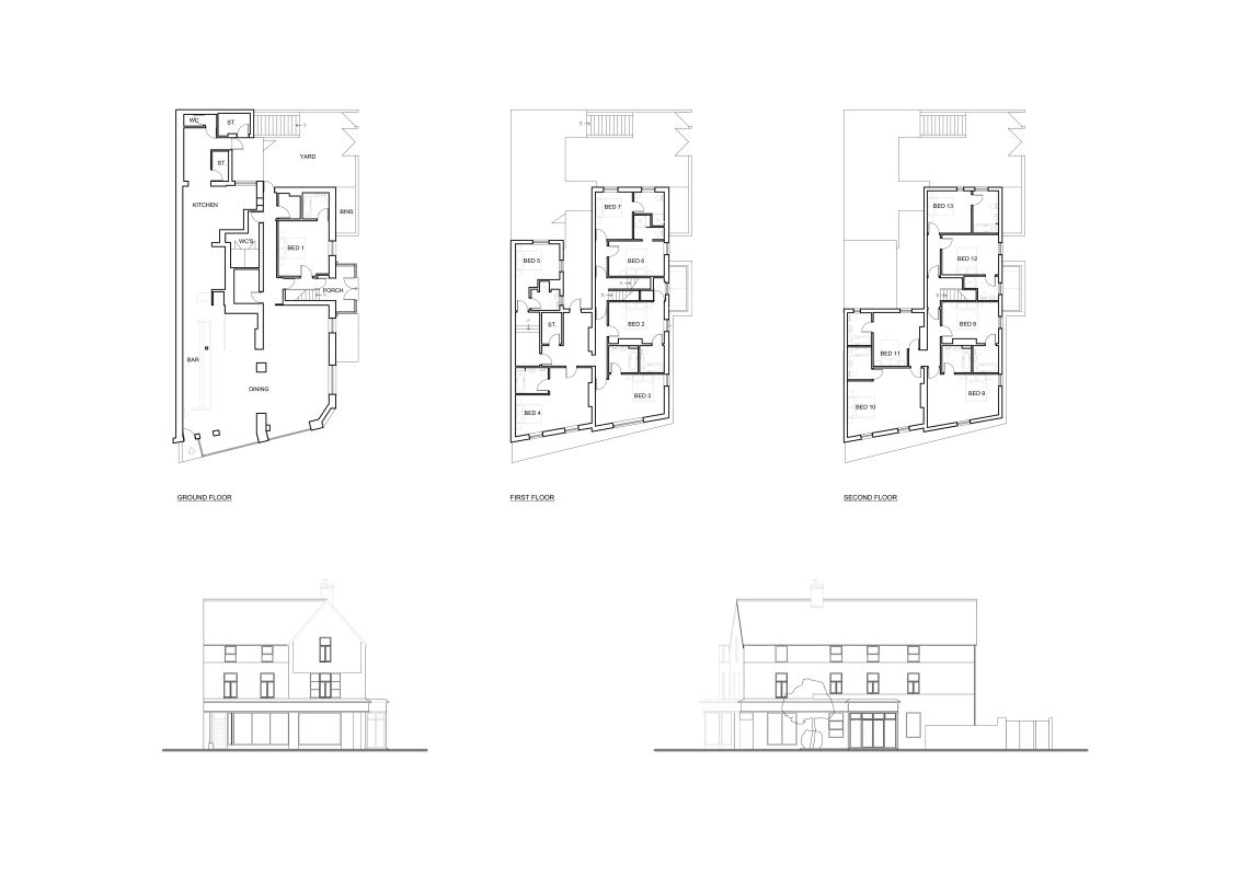
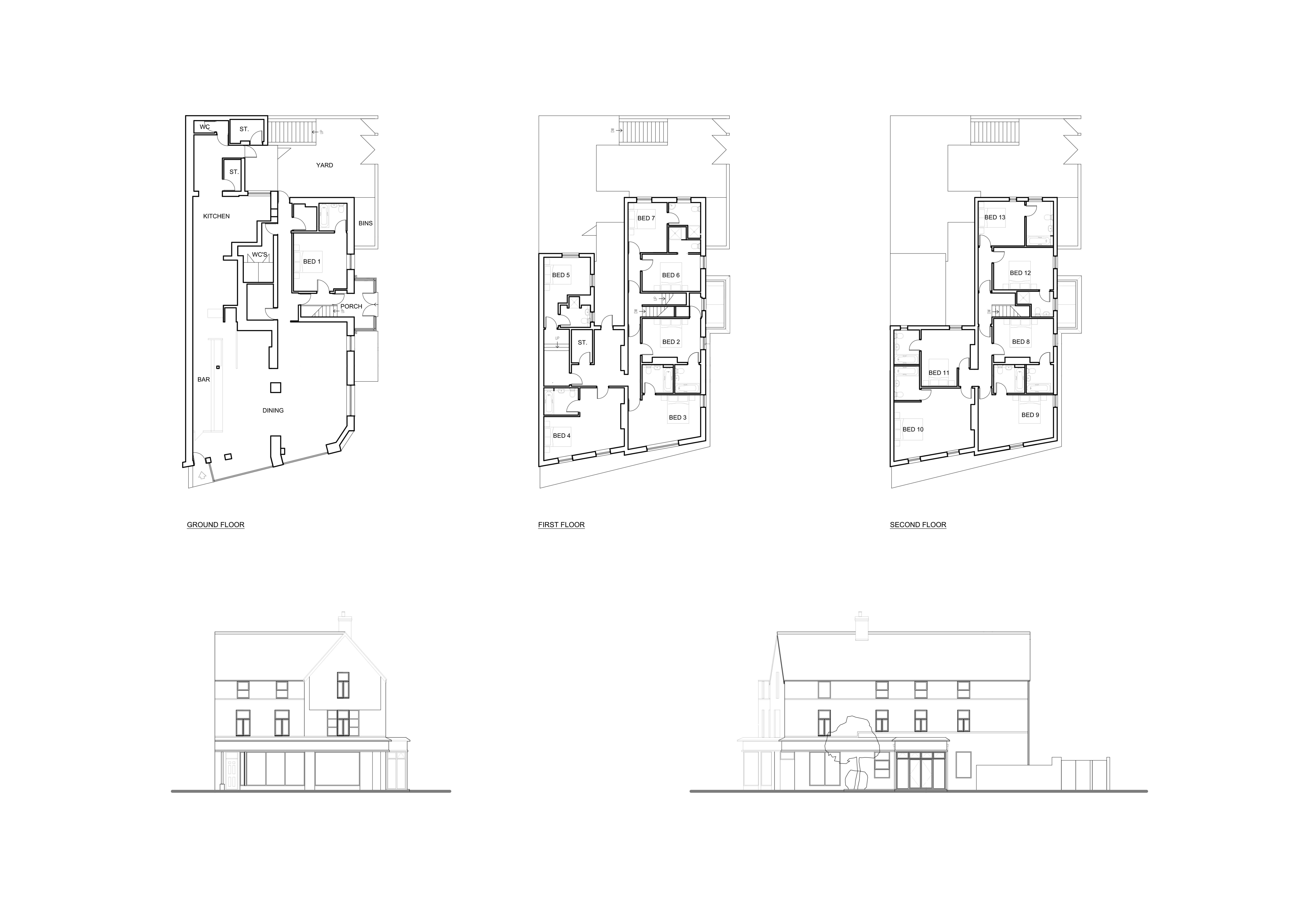
CURRENT BLOCK OF FLATS AND RESTURANT WITH CONVERSION OPPORTUNITY TO HOTEL FOR SALE BY AUCTION 12TH - 13TH JANUARY

Description

CURRENT BLOCK OF FLATS AND RESTURANT WITH CONVERSION OPPORTUNITY TO HOTEL FOR SALE BY AUCTION 12TH - 13TH JANUARY

FOR SALE VIA ONLINE AUCTION ON MONDAY 12TH JANUARY AT 1PM UNTIL TUESDAY 13TH JANUARY 1PM

VIEWING BY APPOINTMENT ONLY

FANTASTIC INVESTMENT & DEVELOPMENT OPPORTUNITY – FULL PLANNING APPROVED FOR HOTEL CONVERSION

Auction House is pleased to present an exceptional opportunity to acquire a prime property in the heart of West Kirby — one of the Wirral’s most desirable and vibrant coastal locations.
Property Overview:
Currently operating as a well-established restaurant with self-contained apartments, this property is being sold with vacant possession and full planning approval for conversion into a boutique-style hotel.

Approved Development Plans Include:
• 13 spacious guest bedrooms
• A stylish bar area
• A fully equipped dining kitchen

Location Highlights:
• Situated on popular Banks Road, West Kirby
• In close proximity to beaches, shops, cafés, and West Kirby Marine Lake
• Strong local and tourist footfall all year round
• High demand area for both leisure and business accommodation

This is a rare chance to invest in a property with enormous potential in a thriving seaside town. Whether you're an experienced hotel operator, property investor, or developer, this opportunity combines location, demand, and approved plans to offer impressive return potential.
Planning Application Reference Number: APP/24/00576

Full planning permission for 13 en-suite double bedrooms.
Average Room Rate in the Area: £130 per night*
*Rates may vary depending on season and local events.
*Currently arranged as residential separate apartments.
*Could be residential units/dwellings retained, dependent upon end user requirements.

Tenure: Freehold

Important Notice to Prospective Buyers

We draw your attention to the Special Conditions of Sale within the Legal Pack, referring to other charges in addition to the purchase price which may become payable. Such costs may include Search Fees, reimbursement of Sellers costs and Legal Fees, and Transfer Fees amongst others.

Buyers Premium

Administration Charge is a non-refundable £1,800 inc VAT payable on the fall of the virtual gavel.

Administration Charge

Administration Charge is a non-refundable £1,800 inc VAT payable on the fall of the virtual gavel.

Disbursements

Please see the legal pack for any disbursements listed that may become payable by the purchaser on completion.

Loading the bidding panel...

Make An Enquiry

Submit an enquiry for this lot and someone will be in contact shortly.

 
 
 
* Guide | £880,000
  • 13 Bedrooms
  • Unconditional (Immediate Exchange)

Call the team on 0345 646 2350 for more information

Disclaimer: The map preview provided above is for general guidance only and may not accurately reflect the exact location or surrounding buildings. Prospective buyers and interested parties are strongly advised to independently verify the precise location and surroundings before bidding.

Note

  1. MONEY LAUNDERING REGULATIONS: Intending purchasers will be asked to produce identification documentation at a later stage and we would ask for your co-operation in order that there will be no delay in agreeing the sale.
  2. General : While we endeavour to make our sales particulars fair, accurate and reliable, they are only a general guide to the property and, accordingly, if there is any point which is of particular importance to you, please contact the office and we will be pleased to check the position for you, especially if you are contemplating travelling some distance to view the property.
  3. Measurements: These approximate room sizes are only intended as general guidance. You must verify the dimensions carefully before ordering carpets or any built-in furniture.
  4. Services: Please note we have not tested the services or any of the equipment or appliances in this property, accordingly we strongly advise prospective buyers to commission their own survey or service reports before finalising their offer to purchase.
  5. THESE PARTICULARS ARE ISSUED IN GOOD FAITH BUT DO NOT CONSTITUTE REPRESENTATIONS OF FACT OR FORM PART OF ANY OFFER OR CONTRACT. THE MATTERS REFERRED TO IN THESE PARTICULARS SHOULD BE INDEPENDENTLY VERIFIED BY PROSPECTIVE BUYERS OR TENANTS. NEITHER AUCTION HOUSE NOR ANY OF ITS EMPLOYEES OR AGENTS HAS ANY AUTHORITY TO MAKE OR GIVE ANY REPRESENTATION OR WARRANTY WHATEVER IN RELATION TO THIS PROPERTY.