Auction House / South Yorkshire

  • For Sale By Unconditional Online Auction
  • Guide Price* : £15,000 - £30,000
  • Bidding Opens 20/10/2025 13:00

Apartment 1 Alexandra House, Sheffield, South Yorkshire, S3 8LE

Turnkey City-Centre Investment — Fully Let Studio Generating £6,600 p.a.

Description

A modern self-contained studio apartment located in the heart of Sheffield city centre, fully let and providing an excellent ready-made investment opportunity.

This well-presented studio is situated within the attractive Alexandra House development, a striking period building with a contemporary interior conversion. The apartment offers bright and efficient accommodation ideal for professionals or students, and benefits from close proximity to Sheffield’s universities, hospitals, business district, and transport links.

Key Features
-Immediate Income — let at £550 per calendar month (£6,600 per annum).
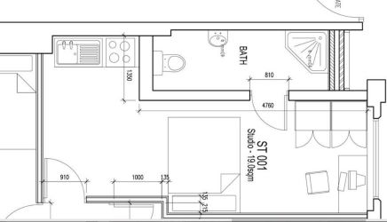
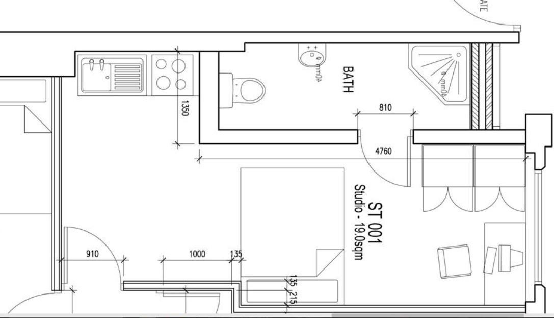
-Modern Studio Layout — approx. 19 sq. m (204 sq. ft.) with practical open-plan living space.
-Contemporary Kitchen — fitted with base and wall units, integrated hob, oven, microwave, sink, and space for dining.
-Private Shower Room — with WC, basin, and enclosed shower cubicle.
-Stylish Living/Sleeping Area — includes desk/workspace, shelving, and storage.
-Secure & Well-Maintained Building — communal entrance, fob access, and central location.
-Attractive Investment — proven rental demand in a sought-after city centre location.

Location
Alexandra House stands in a prime city-centre position, close to Sheffield Hallam University, Sheffield University, West Street nightlife, shopping facilities, and excellent transport connections including bus, tram, and rail links.

Tenure
Long leasehold (details to be confirmed in the legal pack).

Investment Highlights
This property represents an appealing, low-maintenance buy-to-let investment. With an existing assured shorthold tenancy at £550 pcm, investors can benefit from immediate rental income and strong ongoing demand from students and young professionals.

⚡ Auction Note:
Interested parties should inspect the legal pack and arrange any viewings prior to the auction. The property will be sold subject to the tenancy and the terms specified within the legal documentation.

Tenure: Leasehold

EPC Rating: C

Important Notice to Prospective Buyers

We draw your attention to the Special Conditions of Sale within the Legal Pack, referring to other charges in addition to the purchase price which may become payable. Such costs may include Search Fees, reimbursement of Sellers costs and Legal Fees, and Transfer Fees amongst others.

Administration Charge

£3,600 inc vat payable upon the fall of the virtual gavel

Loading the bidding panel...

Make An Enquiry

Submit an enquiry for this lot and someone will be in contact shortly.

 
 
 
* Guide | £15,000 - £30,000
  • 1 Bedroom
  • Unconditional (Immediate Exchange)

Call the team on 0114 223 0777 for more information

Disclaimer: The map preview provided above is for general guidance only and may not accurately reflect the exact location or surrounding buildings. Prospective buyers and interested parties are strongly advised to independently verify the precise location and surroundings before bidding.

Note

  1. MONEY LAUNDERING REGULATIONS: Intending purchasers will be asked to produce identification documentation at a later stage and we would ask for your co-operation in order that there will be no delay in agreeing the sale.
  2. General : While we endeavour to make our sales particulars fair, accurate and reliable, they are only a general guide to the property and, accordingly, if there is any point which is of particular importance to you, please contact the office and we will be pleased to check the position for you, especially if you are contemplating travelling some distance to view the property.
  3. Measurements: These approximate room sizes are only intended as general guidance. You must verify the dimensions carefully before ordering carpets or any built-in furniture.
  4. Services: Please note we have not tested the services or any of the equipment or appliances in this property, accordingly we strongly advise prospective buyers to commission their own survey or service reports before finalising their offer to purchase.
  5. THESE PARTICULARS ARE ISSUED IN GOOD FAITH BUT DO NOT CONSTITUTE REPRESENTATIONS OF FACT OR FORM PART OF ANY OFFER OR CONTRACT. THE MATTERS REFERRED TO IN THESE PARTICULARS SHOULD BE INDEPENDENTLY VERIFIED BY PROSPECTIVE BUYERS OR TENANTS. NEITHER AUCTION HOUSE NOR ANY OF ITS EMPLOYEES OR AGENTS HAS ANY AUTHORITY TO MAKE OR GIVE ANY REPRESENTATION OR WARRANTY WHATEVER IN RELATION TO THIS PROPERTY.