Auction House / Lincolnshire

  • For Sale By Unconditional Online Auction
  • Guide Price* : £35,000
  • Bidding Opens 27/10/2025 13:00

2 Salcombe Court Clevedon Road, Scunthorpe, South Humberside, DN17 1XE

*ONLINE Unconditional Auction Opening 27 October 2025*
To register for the legal pack and bidding, please visit our website: auctionhouse.co.uk/lincolnshire

Description

Situation:
The property is well positioned on Salcombe Court, Scunthorpe being well positioned for access to a wide range of facilities and amenities including Scunthorpe town centre, a wide range of shopping facilities and the cinema complex. Scunthorpe itself offers convenient access to the M180 road network, and rail station.

Description:
A semi detached house, offered for sale in need of cosmetic improvement throughout but with significant scope to add value. The property would be ideal for both owner occupiers and investors alike, with there being a strong local rental demand, with potential rental income of approximately £800pcm (£9,600 per annum) based on comparable evidence.

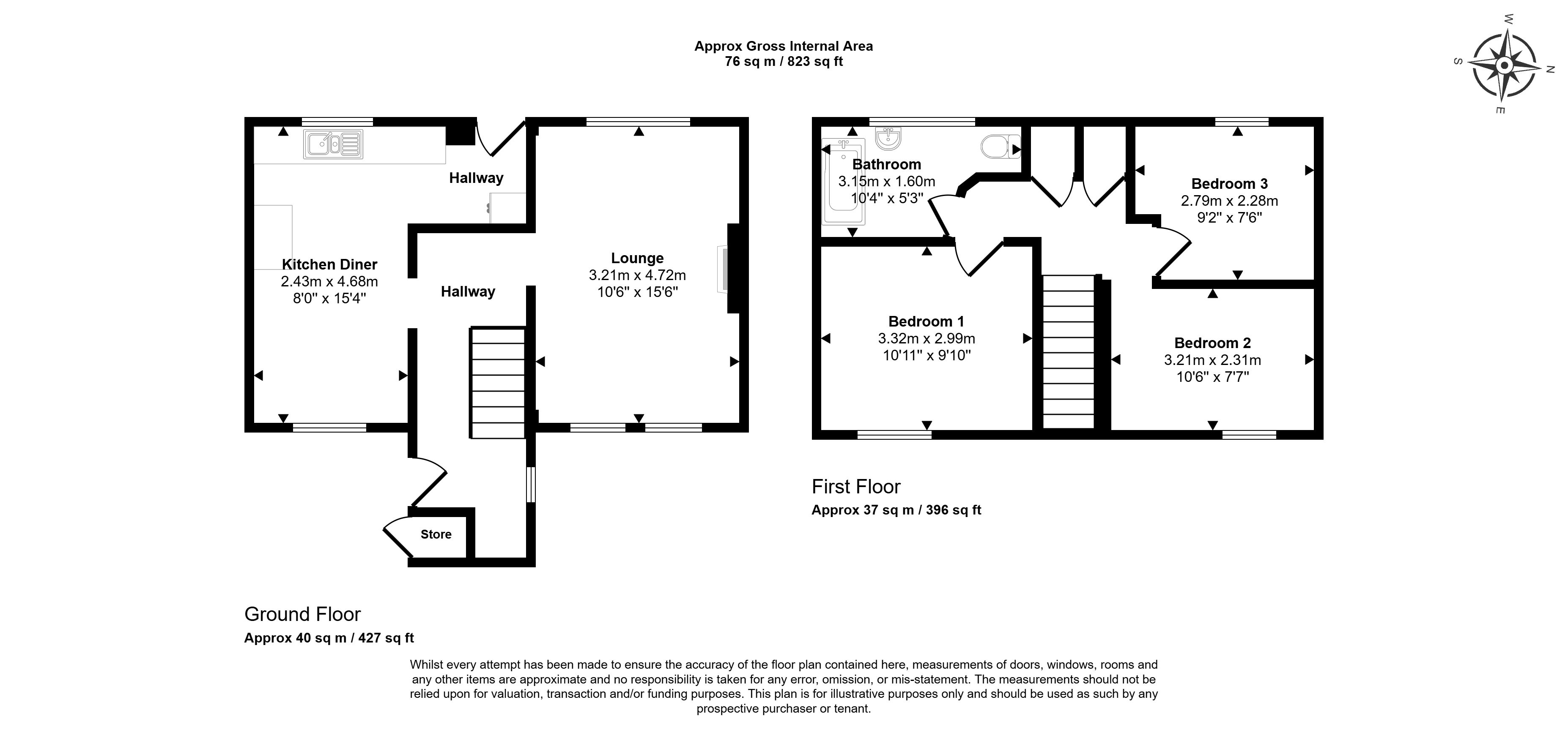
Accommodation
Ground Floor
Store
Entrance Hallway
Lounge/Dining Room
Breakfasting Kitchen

First Floor
Bedroom 1
Bedroom 2
Bedroom 3
Family Bathroom

Outside
Gardens
Material Information
Tenure:
The property is freehold. All prospective bidders should satisfy themselves of terms of the tenure, ground rent and service charge if applicable, by inspecting the legal pack.

Council Tax:
The property falls within North Lincolnshire Council – BAND A

Possession:
Vacant possession will be given upon completion.

Viewing:
Strictly by appointment with Auction House.

Services:
Prospective purchasers are advised to make their own enquiries of the relevant statutory authorities. NB: Services, Apparatus and Equipment have not been tested by Auction House and therefore cannot be verified as being in working order. The buyer is advised to obtain verification from their Solicitor/Surveyor.

These particulars are believed to be correct but their accuracy is not guaranteed and they do not form any part of any contract. Information relating to Rating and Town and Country Planning matters has been obtained by verbal enquiry only. Prospective purchasers are advised to make their own enquiries of the appropriate Authority. Information relating to Phone & Broadband can be found by visiting Ofcom. All measurements, areas and distances are approximate only. Potential purchasers are advised to check them.

EPC Rating

D

Important Notice to Prospective Buyers

We draw your attention to the Special Conditions of Sale within the Legal Pack, referring to other charges in addition to the purchase price which may become payable. Such costs may include Search Fees, reimbursement of Sellers costs and Legal Fees, and Transfer Fees amongst others.

Administration Charge

Non-refundable £3,600 inc VAT payable on the fall of the virtual gavel.

Disbursements

Please see the legal pack for any disbursements listed that may become payable by the purchaser on completion.

Loading the bidding panel...

Make An Enquiry

Submit an enquiry for this lot and someone will be in contact shortly.

 
 
 
* Guide | £35,000
  • 3 Bedrooms
  • Unconditional (Immediate Exchange)

Call the team on 01427 616436 for more information

Disclaimer: The map preview provided above is for general guidance only and may not accurately reflect the exact location or surrounding buildings. Prospective buyers and interested parties are strongly advised to independently verify the precise location and surroundings before bidding.

Note

  1. MONEY LAUNDERING REGULATIONS: Intending purchasers will be asked to produce identification documentation at a later stage and we would ask for your co-operation in order that there will be no delay in agreeing the sale.
  2. General : While we endeavour to make our sales particulars fair, accurate and reliable, they are only a general guide to the property and, accordingly, if there is any point which is of particular importance to you, please contact the office and we will be pleased to check the position for you, especially if you are contemplating travelling some distance to view the property.
  3. Measurements: These approximate room sizes are only intended as general guidance. You must verify the dimensions carefully before ordering carpets or any built-in furniture.
  4. Services: Please note we have not tested the services or any of the equipment or appliances in this property, accordingly we strongly advise prospective buyers to commission their own survey or service reports before finalising their offer to purchase.
  5. THESE PARTICULARS ARE ISSUED IN GOOD FAITH BUT DO NOT CONSTITUTE REPRESENTATIONS OF FACT OR FORM PART OF ANY OFFER OR CONTRACT. THE MATTERS REFERRED TO IN THESE PARTICULARS SHOULD BE INDEPENDENTLY VERIFIED BY PROSPECTIVE BUYERS OR TENANTS. NEITHER AUCTION HOUSE NOR ANY OF ITS EMPLOYEES OR AGENTS HAS ANY AUTHORITY TO MAKE OR GIVE ANY REPRESENTATION OR WARRANTY WHATEVER IN RELATION TO THIS PROPERTY.