Auction House / Leicestershire

  • For Sale By Unconditional Online Auction
  • Guide Price* : £87,000
  • Auction Ended 14/10/2025
  • Lot 52

27 Clarence Street, Loughborough, Leicestershire, LE11 1DX

Description

A good sized terraced house in need of renovation

To be sold via NATIONAL TIMED ONLINE AUCTION
BIDDING OPENS: 13:00 on Monday 13th October 2025
AUCTION ENDS: 13:00 on Tuesday 14th October 2025

Visit auctionhouse.co.uk/leicestershire

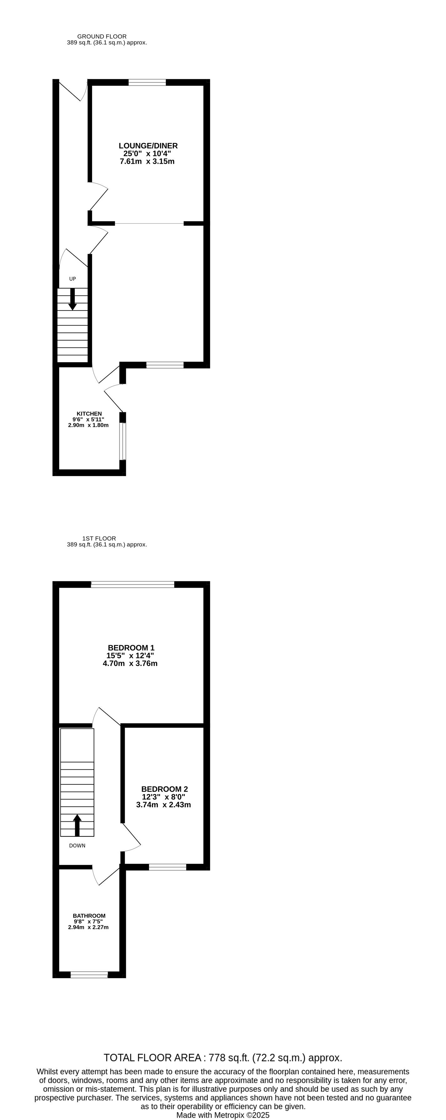
A two bedroomed mid terraced house in need of modernisation. Entrance hall, lounge/diner, kitchen.
Two bedrooms and bathroom. Rear gardens. Freehold with vacant possession

Ground Floor Entrance hall, Lounge 3.15m x 3.80m, Dining Room 3.81m x 3.15m, Kitchen 2.90m x 1.78m
First Floor Landing, Bedroom 1 4.70m x 3.76m, Bedroom 2 3.74m 2.43m, bathroom 2.94m x 2.27m
Outside Enclosed rear gardens
Property Information Tenure: Freehold
Local Authority: Charnwood Bourough Council
Council Tax Band: A
Type of Construction: Traditional
Services: The property is offered to the market with all mains services and gas-fired central heating.
Multiple Options for Broadband/mobile phone signal.
Flood Risk: Medium
The property is being sold with Vacant Possession upon completion. FIXTURES AND FITTINGS - All the items mentioned in these sales details are to be included within the purchase price. SERVICES - None of the services, fitting or appliances (if any) heating installations, plumbing or electrical systems have been tested by the auctioneers.

Tenure: Freehold

EPC Rating: D

Lot Type

Residential for Improvement

EPC Rating

D

Important Notice to Prospective Buyers

We draw your attention to the Special Conditions of Sale within the Legal Pack, referring to other charges in addition to the purchase price which may become payable. Such costs may include Search Fees, reimbursement of Sellers costs and Legal Fees, and Transfer Fees amongst others.

Administration Charge

Administration Charge is a non-refundable £1,200 inc VAT payable on the fall of the virtual gavel.

Loading the bidding panel...

* Guide | £87,000
  • 2 Bedrooms
  • Unconditional (Immediate Exchange)

Call the team on 0116 222 7575 for more information

Disclaimer: The map preview provided above is for general guidance only and may not accurately reflect the exact location or surrounding buildings. Prospective buyers and interested parties are strongly advised to independently verify the precise location and surroundings before bidding.

Note

  1. MONEY LAUNDERING REGULATIONS: Intending purchasers will be asked to produce identification documentation at a later stage and we would ask for your co-operation in order that there will be no delay in agreeing the sale.
  2. General : While we endeavour to make our sales particulars fair, accurate and reliable, they are only a general guide to the property and, accordingly, if there is any point which is of particular importance to you, please contact the office and we will be pleased to check the position for you, especially if you are contemplating travelling some distance to view the property.
  3. Measurements: These approximate room sizes are only intended as general guidance. You must verify the dimensions carefully before ordering carpets or any built-in furniture.
  4. Services: Please note we have not tested the services or any of the equipment or appliances in this property, accordingly we strongly advise prospective buyers to commission their own survey or service reports before finalising their offer to purchase.
  5. THESE PARTICULARS ARE ISSUED IN GOOD FAITH BUT DO NOT CONSTITUTE REPRESENTATIONS OF FACT OR FORM PART OF ANY OFFER OR CONTRACT. THE MATTERS REFERRED TO IN THESE PARTICULARS SHOULD BE INDEPENDENTLY VERIFIED BY PROSPECTIVE BUYERS OR TENANTS. NEITHER AUCTION HOUSE NOR ANY OF ITS EMPLOYEES OR AGENTS HAS ANY AUTHORITY TO MAKE OR GIVE ANY REPRESENTATION OR WARRANTY WHATEVER IN RELATION TO THIS PROPERTY.