Auction House / North East

  • For Sale By Unconditional Online Auction
  • Guide Price* : £1,000,000
  • Auction Ended 16/09/2025
  • Lot 37

Unique Development at Whitwell South Farm Bowburn, Durham, County Durham, DH6 5NQ

Whitwell South Farm – A Unique Development of Four Homes with Exceptional Investment Potential.

MORTGAGE BUYERS / EXTENDED COMPLETIONS WELCOMED - CONTACT THE TEAM.

TO VIEW THE PROPERTY PLEASE CONTACT YOUR MOVE DURHAM ON 0191 625 1062.
PRE AUCTION OFFERS WELCOMED.

Description

Whitwell South Farm presents a rare opportunity to acquire a distinctive development of four separate dwellings in a private rural setting, offering a combined total of 13 bedrooms across the site. This unique offering is ideal for a holiday rental business, multi-generational living, or student accommodation, given its prime location less than 2 miles from Durham City Centre, Durham University, and Trevelyan College. The A1(M) is just 3 minutes away by car, offering convenient travel links throughout the region.

Set in picturesque countryside while remaining easily accessible, this collection includes two well-appointed bungalows, a spacious 4/5-bedroom barn conversion, and a characterful detached farmhouse—each enjoying their own private garden space and ample off-street parking.

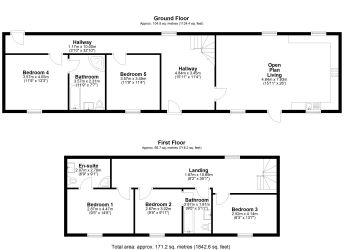
The Farmhouse
Occupying a central position within the development, the original farmhouse is a charming detached residence offering generous living accommodation, extensive gardens, and gated parking. A landscaped patio with hot tub enhances the outdoor space, creating a perfect spot for relaxation or entertaining.

The side entrance leads into a stylish breakfast kitchen, complete with a range of modern units and a central island with breakfast bar seating. A cosy snug leads upstairs and opens into a stunning open-plan living/dining area, with dual patio doors inviting the outside in.

Upstairs, the farmhouse features three bedrooms, including a principal suite with private balcony and en-suite bathroom. A family bathroom, finished in a traditional style, completes the first floor.

Externally, the home enjoys a private lawn that backs onto open countryside, providing a tranquil outlook.

The Old Barn
This substantial 4/5-bedroom barn conversion delivers spacious and flexible accommodation over two floors. A modern, open-plan living kitchen serves as the heart of the home, perfect for contemporary family life.

The ground floor includes two flexible rooms, ideal for use as reception spaces, guest rooms, or additional bedrooms, and a Jack-and-Jill bathroom fitted with a four-piece suite. Upstairs, three well-sized bedrooms include two with en-suite bathrooms.

Gated access leads to off-street parking, and the generous rear garden enjoys peaceful countryside views—ideal for families or holiday guests.

The Byre
A beautifully renovated bungalow offering three well-proportioned bedrooms, The Byre is perfect for downsizers, holiday lets, or student tenants. The sleek, contemporary kitchen provides ample storage and flows into a light-filled living space with scenic views.

The master bedroom includes a modern en-suite and built-in storage, while the remaining bedrooms can easily accommodate double beds. A stylish family bathroom completes the layout.

Outside, the property offers private parking and access to a shared front garden, ideal for outdoor dining and relaxation.

The Old Stables
This inviting single-storey home features a bright open-plan kitchen and living space, ideal for entertaining or everyday living. The kitchen is well-equipped with generous cabinetry and workspace, and large windows bring in plenty of natural light.

There are two spacious bedrooms, including a master bedroom with private access to the main bathroom, which includes both a bath and separate shower. The second bedroom also offers ample space and comfort.

To the front, the property benefits from a garden space, while the private rear garden with decking provides a low-maintenance outdoor retreat with countryside views.

Summary of Key Features:

Four separate homes / 13 bedrooms in total

Ideal for holiday lets, student accommodation, or extended family living

Less than 2 miles to Durham City Centre, Durham University, and Trevelyan College

Just 3 minutes by car to the A1(M) motorway

Ample parking and generous private gardens for each home

Peaceful rural setting with excellent access to amenities and transport

Individual LPG tanks for each property

Tenure: Freehold

EPC Rating: E-B

Important Notice to Prospective Buyers

We draw your attention to the Special Conditions of Sale within the Legal Pack, referring to other charges in addition to the purchase price which may become payable. Such costs may include Search Fees, reimbursement of Sellers costs and Legal Fees, and Transfer Fees amongst others.

Administration Charge

1.2% inc VAT of the purchase price, payable on exchange of contracts.

Loading the bidding panel...

* Guide | £1,000,000
  • 13 Bedrooms
  • Unconditional (Immediate Exchange)

Call the team on 0191 908 9691 for more information

Disclaimer: The map preview provided above is for general guidance only and may not accurately reflect the exact location or surrounding buildings. Prospective buyers and interested parties are strongly advised to independently verify the precise location and surroundings before bidding.

Note

  1. MONEY LAUNDERING REGULATIONS: Intending purchasers will be asked to produce identification documentation at a later stage and we would ask for your co-operation in order that there will be no delay in agreeing the sale.
  2. General : While we endeavour to make our sales particulars fair, accurate and reliable, they are only a general guide to the property and, accordingly, if there is any point which is of particular importance to you, please contact the office and we will be pleased to check the position for you, especially if you are contemplating travelling some distance to view the property.
  3. Measurements: These approximate room sizes are only intended as general guidance. You must verify the dimensions carefully before ordering carpets or any built-in furniture.
  4. Services: Please note we have not tested the services or any of the equipment or appliances in this property, accordingly we strongly advise prospective buyers to commission their own survey or service reports before finalising their offer to purchase.
  5. THESE PARTICULARS ARE ISSUED IN GOOD FAITH BUT DO NOT CONSTITUTE REPRESENTATIONS OF FACT OR FORM PART OF ANY OFFER OR CONTRACT. THE MATTERS REFERRED TO IN THESE PARTICULARS SHOULD BE INDEPENDENTLY VERIFIED BY PROSPECTIVE BUYERS OR TENANTS. NEITHER AUCTION HOUSE NOR ANY OF ITS EMPLOYEES OR AGENTS HAS ANY AUTHORITY TO MAKE OR GIVE ANY REPRESENTATION OR WARRANTY WHATEVER IN RELATION TO THIS PROPERTY.