Auction House / Kent

  • For Sale By Conditional Online Auction
  • Guide Price* : £850,000
  • Auction Ended 01/10/2025
  • Lot 1

Orchard Lea The Street, Canterbury, Kent, CT3 1LN

FOR SALE BY ONLINE AUCTION (MODERN METHOD) ON WEDNESDAY 1ST OCTOBER 2025

TO REGISTER FOR LEGAL PACKS AND BIDDING INSTRUCTIONS PLEASE VISIT OUR WEBSITE

Description

FOR SALE BY ONLINE AUCTION (MODERN METHOD) ON WEDNESDAY 1ST OCTOBER 2025

TO REGISTER FOR LEGAL PACKS AND BIDDING INSTRUCTIONS PLEASE VISIT OUR WEBSITE

Large detached four bedroom property set in the village of Staple.

A well presented family house set within 0.78 acres (STMS), with a large garden to the rear, and within 9 miles of Canterbury City Centre.

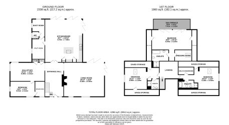
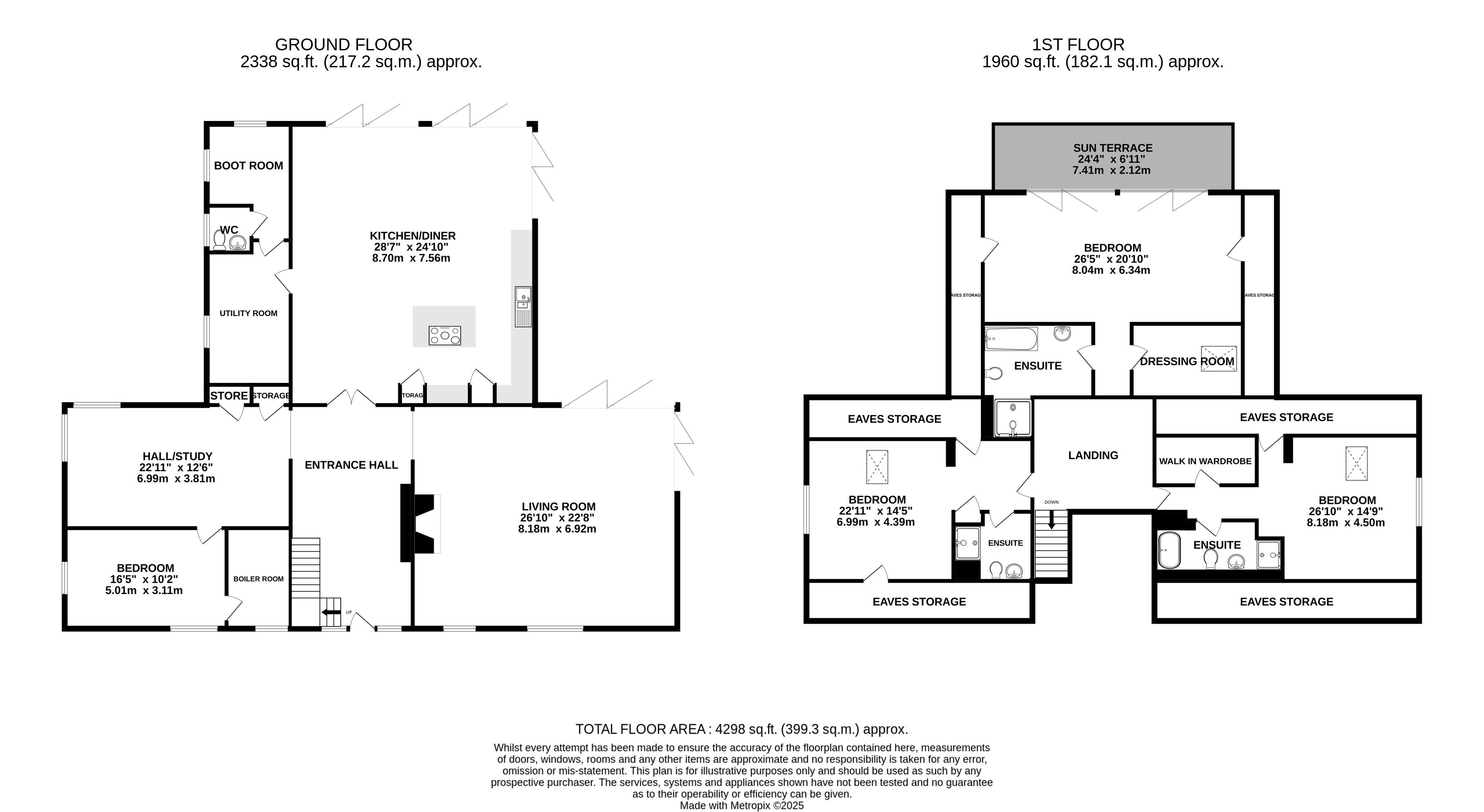
The property comprises a large entrance hall, living room with bi-folding doors to the gardens, open plan kitchen/diner with bi-folding doors to the garden, utility room, wc, boot room, a secondary hall, a study area, and a bedroom. On the second floor, the principal en-suite bedroom and separate dressing room benefits from bi-fold doors onto a sun terrace overlooking the gardens. There are two further bedrooms, both with en-suites.

The property also benefits from a double garage and workshop with storage above, which may be converted to ancillary accommodation (subject to planning).

Staple is a picturesque village in east Kent and contains a village shop, post office and pub. Adisham railway station can be found 2.7 miles away providing a regular service to London. The closest primary school and secondary school are 1.5 and 3.7 miles away respectively.

Auctioneer Comments

This property is for sale by the Modern Method of Auction, meaning the buyer and seller are to Complete within 56 days (the "Reservation Period").

The buyer signs a Reservation Agreement and makes payment of a non-refundable Reservation Fee of 1.5% of the purchase price plus VAT, subject to a minimum of £4,000.00 plus VAT. This is paid to reserve the property to the buyer during the Reservation Period and is paid in addition to the purchase price. This is considered within calculations for Stamp Duty Land Tax.

Ground Floor Entrance hall, living room, open plan kitchen /dining room, utility room, boot room, WC, secondary hall/study and a bedroom
First Floor Three bedrooms, three en-suites and a balcony
Outside Double garage plus workshop, front and rear gardens and ample parking
Council Tax G
Viewings Viewings are being arranged and the next one is Saturday 13th September. Please contact the office to arrange an appointment

Tenure: Freehold

EPC Rating: B

Important Notice to Prospective Buyers

We draw your attention to the Special Conditions of Sale within the Legal Pack, referring to other charges in addition to the purchase price which may become payable. Such costs may include Search Fees, reimbursement of Sellers costs and Legal Fees, and Transfer Fees amongst others.

Administration Charge

n/a

Loading the bidding panel...

* Guide | £850,000
  • Detached House
  • 4 Bedrooms
  • Conditional (Flexible Exchange)

Call the team on 01622 948 750 for more information

Disclaimer: The map preview provided above is for general guidance only and may not accurately reflect the exact location or surrounding buildings. Prospective buyers and interested parties are strongly advised to independently verify the precise location and surroundings before bidding.

Note

  1. MONEY LAUNDERING REGULATIONS: Intending purchasers will be asked to produce identification documentation at a later stage and we would ask for your co-operation in order that there will be no delay in agreeing the sale.
  2. General : While we endeavour to make our sales particulars fair, accurate and reliable, they are only a general guide to the property and, accordingly, if there is any point which is of particular importance to you, please contact the office and we will be pleased to check the position for you, especially if you are contemplating travelling some distance to view the property.
  3. Measurements: These approximate room sizes are only intended as general guidance. You must verify the dimensions carefully before ordering carpets or any built-in furniture.
  4. Services: Please note we have not tested the services or any of the equipment or appliances in this property, accordingly we strongly advise prospective buyers to commission their own survey or service reports before finalising their offer to purchase.
  5. THESE PARTICULARS ARE ISSUED IN GOOD FAITH BUT DO NOT CONSTITUTE REPRESENTATIONS OF FACT OR FORM PART OF ANY OFFER OR CONTRACT. THE MATTERS REFERRED TO IN THESE PARTICULARS SHOULD BE INDEPENDENTLY VERIFIED BY PROSPECTIVE BUYERS OR TENANTS. NEITHER AUCTION HOUSE NOR ANY OF ITS EMPLOYEES OR AGENTS HAS ANY AUTHORITY TO MAKE OR GIVE ANY REPRESENTATION OR WARRANTY WHATEVER IN RELATION TO THIS PROPERTY.