Auction House / Manchester

  • For Sale By Unconditional Online Auction
  • Guide Price* : £70,000
  • Auction Ended 30/09/2025
  • Lot 52

17 Hall Street, Whitworth, Rochdale, Lancashire, OL12 8TL

FOR SALE BY ONLINE AUCTION ON TUESDAY 30TH SEPTEMBER 2025

Description

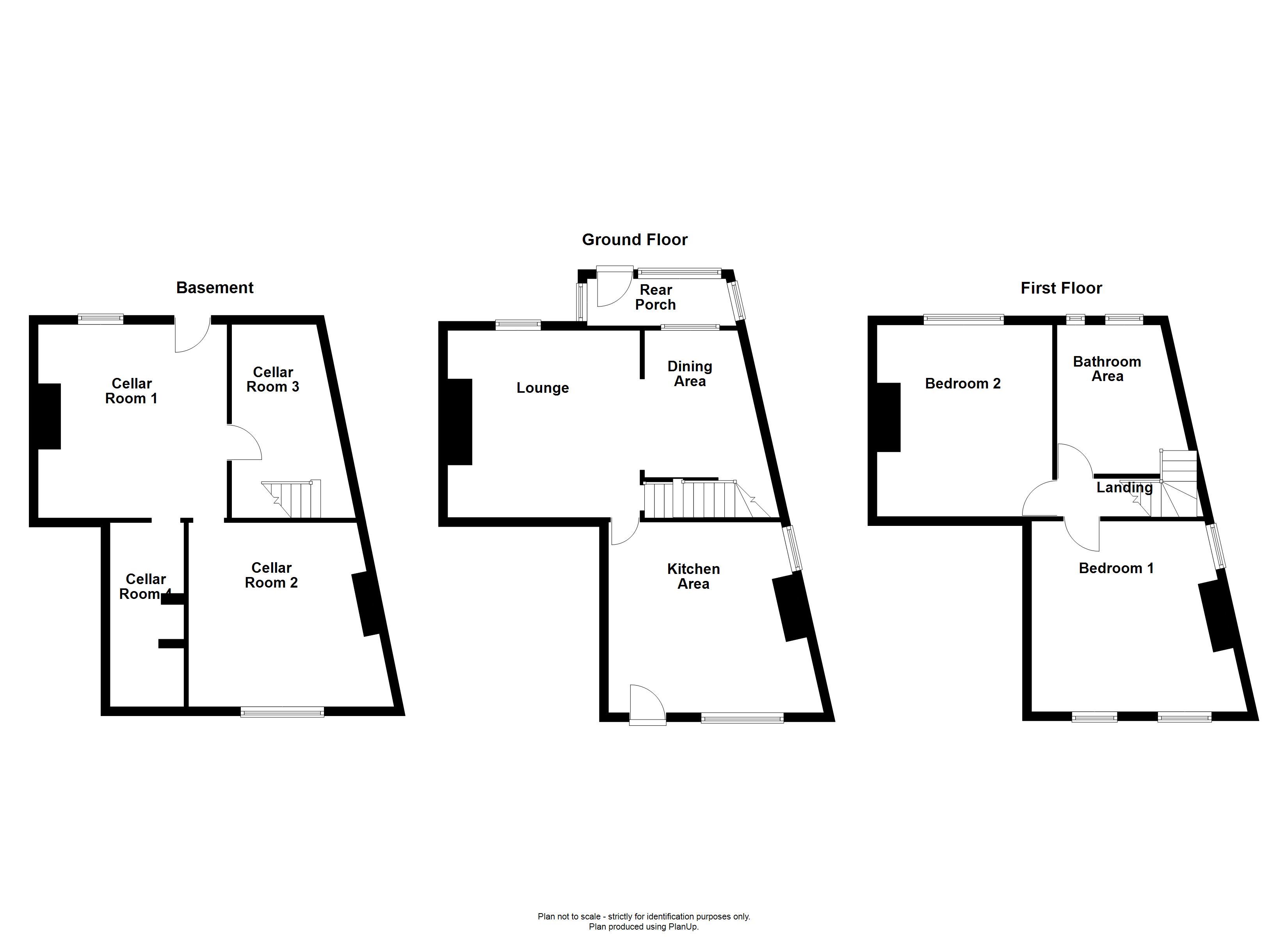
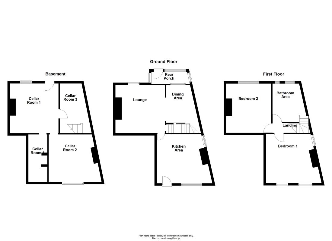
A two-bedroom, end of terrace property in need of rennovation, located in the heart of Whitworth, close to local shops and schools.

Internally, accommodation comprises kitchen area, lounge and dining area split by an archway, and a rear porch to the ground floor.

To the first floor, there are two bedrooms and a bathroom area.

To the lower ground floor there are four cellar rooms which can also be accessed from the rear of the property.

Council Tax Band

A

Lease Start Date

13/06/1870

Lease Duration

999 years (844 years unexpired)

Important Notice to Prospective Buyers

We draw your attention to the Special Conditions of Sale within the Legal Pack, referring to other charges in addition to the purchase price which may become payable. Such costs may include Search Fees, reimbursement of Sellers costs and Legal Fees, and Transfer Fees amongst others.

Buyers Premium

Buyers Premium £1,500 inc VAT.

Administration Charge

Administration Charge: 1.2% inc VAT of the purchase price subject to a minimum of £1,500 inc VAT

Loading the bidding panel...

* Guide | £70,000
  • 2 Bedrooms
  • Unconditional (Immediate Exchange)

Call the team on 0161 925 3254 for more information

Related Documents

Disclaimer: The map preview provided above is for general guidance only and may not accurately reflect the exact location or surrounding buildings. Prospective buyers and interested parties are strongly advised to independently verify the precise location and surroundings before bidding.

Note

  1. MONEY LAUNDERING REGULATIONS: Intending purchasers will be asked to produce identification documentation at a later stage and we would ask for your co-operation in order that there will be no delay in agreeing the sale.
  2. General : While we endeavour to make our sales particulars fair, accurate and reliable, they are only a general guide to the property and, accordingly, if there is any point which is of particular importance to you, please contact the office and we will be pleased to check the position for you, especially if you are contemplating travelling some distance to view the property.
  3. Measurements: These approximate room sizes are only intended as general guidance. You must verify the dimensions carefully before ordering carpets or any built-in furniture.
  4. Services: Please note we have not tested the services or any of the equipment or appliances in this property, accordingly we strongly advise prospective buyers to commission their own survey or service reports before finalising their offer to purchase.
  5. THESE PARTICULARS ARE ISSUED IN GOOD FAITH BUT DO NOT CONSTITUTE REPRESENTATIONS OF FACT OR FORM PART OF ANY OFFER OR CONTRACT. THE MATTERS REFERRED TO IN THESE PARTICULARS SHOULD BE INDEPENDENTLY VERIFIED BY PROSPECTIVE BUYERS OR TENANTS. NEITHER AUCTION HOUSE NOR ANY OF ITS EMPLOYEES OR AGENTS HAS ANY AUTHORITY TO MAKE OR GIVE ANY REPRESENTATION OR WARRANTY WHATEVER IN RELATION TO THIS PROPERTY.