Auction House / West Yorkshire

  • For Sale By Unconditional Online Auction
  • Guide Price* : £20,000
  • Auction Ended 23/09/2025
  • Lot 16

Flat 4, 60 Garden Village, Micklefield, Leeds, West Yorkshire, LS25 4AD

FOR SALE BY ONLINE AUCTION ON TUESDAY 22nd September 2025. BIDDING OPENS MONDAY 21st SEPTEMBER 2025.

Description

This one bedroom first floor apartment is offered for sale via traditional auction. The apartment does require a refurbishment, however this would make a great addition to a rental portfolio.

The property is located on Garden Village. Shopping amenities can be found locally within Micklefield Village and nearby Garforth Town Centre to the west. Public transport links are available at Micklefield Train Station and Garforth (GRF) Train Station along with a network of local bus services serving the surrounding areas.

Leasehold information:
Lease length - 150 years from 1st January 2009
Ground Rent & Service Charge - Requested from the seller & awaiting information.

Please note: a 14 day completion applies to this lot.

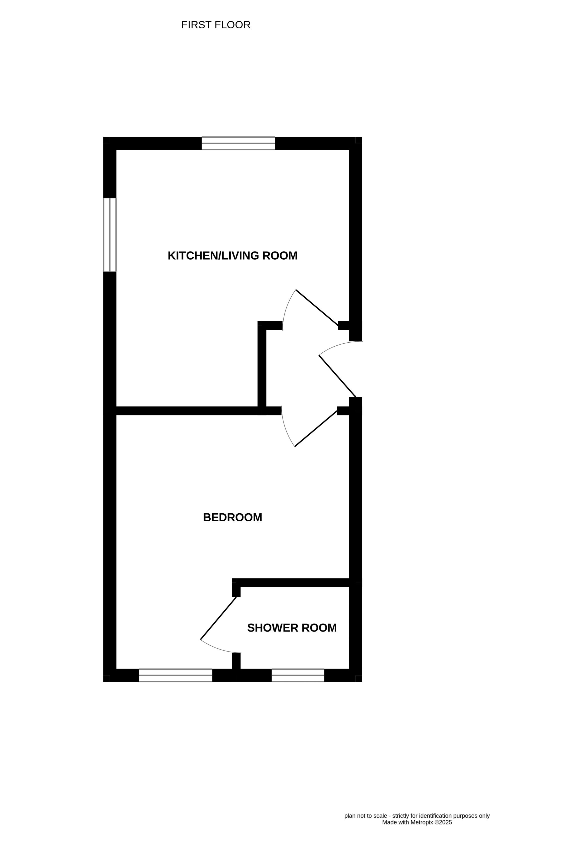
Accommodation

Living room/kitchen, bedroom and shower room to the first floor.

Tenure

Leasehold.

Lot Type

Residential

Important Notice to Prospective Buyers

We draw your attention to the Special Conditions of Sale within the Legal Pack, referring to other charges in addition to the purchase price which may become payable. Such costs may include Search Fees, reimbursement of Sellers costs and Legal Fees, and Transfer Fees amongst others.

Buyers Premium

£1,200 inclu VAT

Administration Charge

Administration Charge is a non-refundable £1,200 inc VAT payable on the fall of the virtual gavel.

Loading the bidding panel...

* Guide | £20,000
  • 1 Bedroom
  • Tenure: Leasehold.
  • Unconditional (Immediate Exchange)

Call the team on 0113 393 3482 for more information

Disclaimer: The map preview provided above is for general guidance only and may not accurately reflect the exact location or surrounding buildings. Prospective buyers and interested parties are strongly advised to independently verify the precise location and surroundings before bidding.

Note

  1. MONEY LAUNDERING REGULATIONS: Intending purchasers will be asked to produce identification documentation at a later stage and we would ask for your co-operation in order that there will be no delay in agreeing the sale.
  2. General : While we endeavour to make our sales particulars fair, accurate and reliable, they are only a general guide to the property and, accordingly, if there is any point which is of particular importance to you, please contact the office and we will be pleased to check the position for you, especially if you are contemplating travelling some distance to view the property.
  3. Measurements: These approximate room sizes are only intended as general guidance. You must verify the dimensions carefully before ordering carpets or any built-in furniture.
  4. Services: Please note we have not tested the services or any of the equipment or appliances in this property, accordingly we strongly advise prospective buyers to commission their own survey or service reports before finalising their offer to purchase.
  5. THESE PARTICULARS ARE ISSUED IN GOOD FAITH BUT DO NOT CONSTITUTE REPRESENTATIONS OF FACT OR FORM PART OF ANY OFFER OR CONTRACT. THE MATTERS REFERRED TO IN THESE PARTICULARS SHOULD BE INDEPENDENTLY VERIFIED BY PROSPECTIVE BUYERS OR TENANTS. NEITHER AUCTION HOUSE NOR ANY OF ITS EMPLOYEES OR AGENTS HAS ANY AUTHORITY TO MAKE OR GIVE ANY REPRESENTATION OR WARRANTY WHATEVER IN RELATION TO THIS PROPERTY.