Auction House / West Yorkshire

  • For Sale By Unconditional Online Auction
  • Guide Price* : £70,000
  • Auction Ended 16/09/2025
  • Lot 28

10-11 Abel Street, Wyke, Bradford, West Yorkshire, BD12 8BH

FOR SALE BY ONLINE AUCTION ON TUESDAY 16th SEPTEMBER 2025. BIDDING OPENS MONDAY 15th SEPTEMBER 2025.

Description

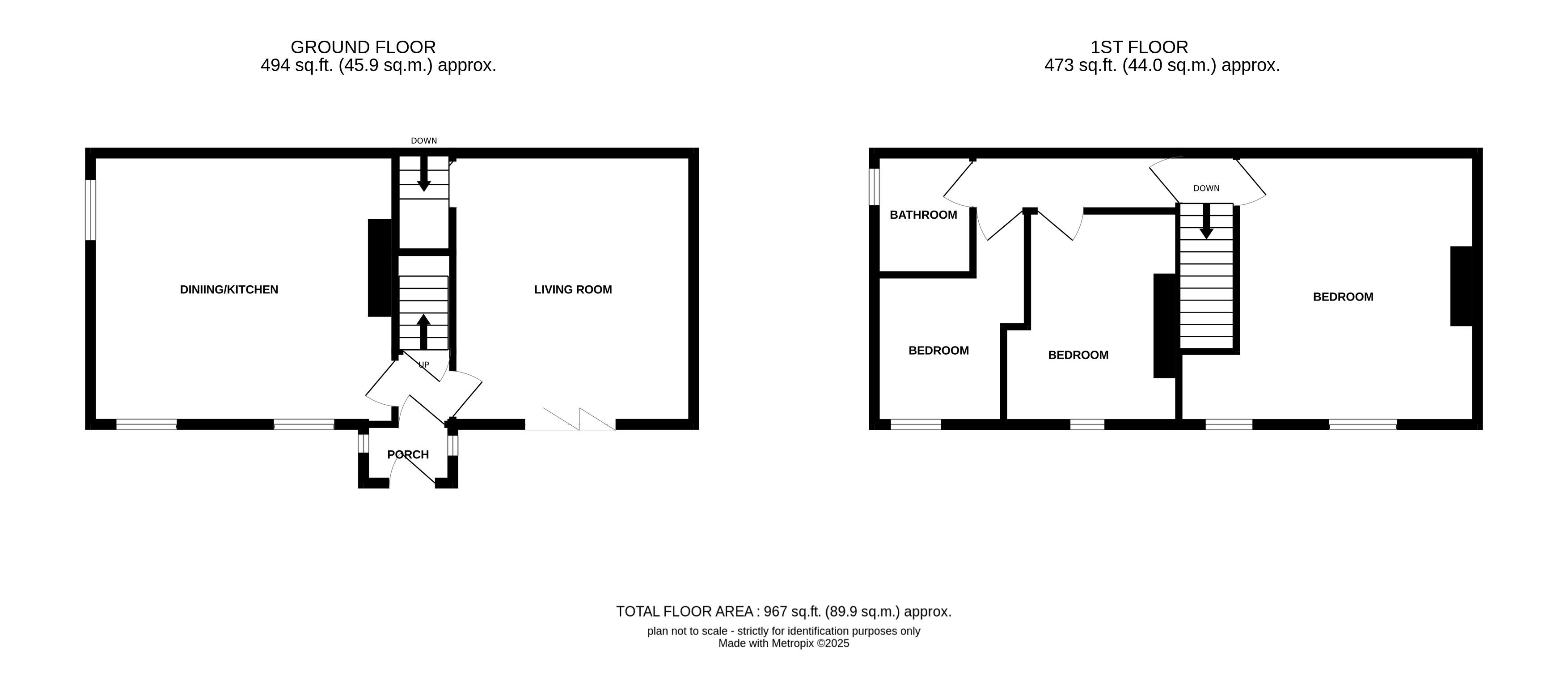
This three bedroom, back to back terraced house requires a scheme of refurbishment, so is ideal for an investor. It was formally two terraces that have been knocked together, and it benefits from a front yard that could be used as parking.

It’s located within Wyke, a suburb of Bradford, 4.5 miles south of the city centre. There are local amenities and schools, but more can be reached within a short drive. There are regular bus routes nearby and the motorway network is a 5-minute drive away.

Internal photographs and a virtual tour are available upon request.

Please note: a 14 day completion applies to this lot.

Accommodation

Not inspected

Tenure

Freehold

Council Tax Band

A

Lot Type

Residential

EPC Rating

D

Important Notice to Prospective Buyers

We draw your attention to the Special Conditions of Sale within the Legal Pack, referring to other charges in addition to the purchase price which may become payable. Such costs may include Search Fees, reimbursement of Sellers costs and Legal Fees, and Transfer Fees amongst others.

Buyers Premium

£1,200 inc VAT

Administration Charge

Administration Charge is a non-refundable £1,200 inc VAT payable on the fall of the virtual gavel.

Loading the bidding panel...

* Guide | £70,000
  • 3 Bedrooms
  • Tenure: Freehold
  • Unconditional (Immediate Exchange)

Call the team on 0113 393 3482 for more information

Disclaimer: The map preview provided above is for general guidance only and may not accurately reflect the exact location or surrounding buildings. Prospective buyers and interested parties are strongly advised to independently verify the precise location and surroundings before bidding.

Note

  1. MONEY LAUNDERING REGULATIONS: Intending purchasers will be asked to produce identification documentation at a later stage and we would ask for your co-operation in order that there will be no delay in agreeing the sale.
  2. General : While we endeavour to make our sales particulars fair, accurate and reliable, they are only a general guide to the property and, accordingly, if there is any point which is of particular importance to you, please contact the office and we will be pleased to check the position for you, especially if you are contemplating travelling some distance to view the property.
  3. Measurements: These approximate room sizes are only intended as general guidance. You must verify the dimensions carefully before ordering carpets or any built-in furniture.
  4. Services: Please note we have not tested the services or any of the equipment or appliances in this property, accordingly we strongly advise prospective buyers to commission their own survey or service reports before finalising their offer to purchase.
  5. THESE PARTICULARS ARE ISSUED IN GOOD FAITH BUT DO NOT CONSTITUTE REPRESENTATIONS OF FACT OR FORM PART OF ANY OFFER OR CONTRACT. THE MATTERS REFERRED TO IN THESE PARTICULARS SHOULD BE INDEPENDENTLY VERIFIED BY PROSPECTIVE BUYERS OR TENANTS. NEITHER AUCTION HOUSE NOR ANY OF ITS EMPLOYEES OR AGENTS HAS ANY AUTHORITY TO MAKE OR GIVE ANY REPRESENTATION OR WARRANTY WHATEVER IN RELATION TO THIS PROPERTY.