Auction House / Hull & East Yorkshire

  • For Sale By Unconditional Online Auction
  • Guide Price* : £345,000
  • Auction Ended 02/09/2025
  • Lot 34

Cross Keys, Moor End, Holme-on-Spalding-Moor, York, North Yorkshire, YO43 4DR

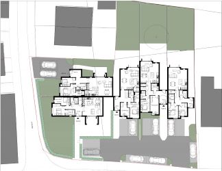
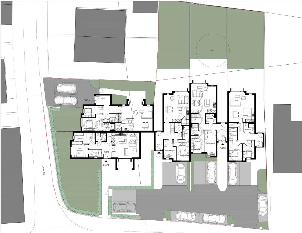
A former pub with full planning permission for demolition and replacement with five new dwellings.

Viewing Details

Strictly by appointment with the auctioneers on 0845 400 9900.

Location

Located in the desirable village of Holme-on-Spalding-Moor, close to Market Weighton and Howden.The village has good amenities including a post office, a village hall, a number of shops, school and pubs, making it a popular choice for families.

Description

This excellent redevelopment opportunity comprises a former public house on a site of approximately 0.4 acres, with full planning consent for demolition and replacement with five dwellings.The approved properties feature a contemporary design, where the architect has incorporated vaulted ceilings and utilised glass effectively to ensure natural light is present throughout each property. The original permission was for five single-storey dwellings; however, approval was subsequently given for a variation to two plots to create large two-storey units (full details below).

Tenure

Freehold.

Note

Method of Sale

The property will be offered for sale by online auction with bidding commencing at 1.00 pm on Monday, 1st September 2025, and closing on Tuesday 2nd September, at 1.00 pm. For further legal information relating to this lot, please go to auctionhouse.co.uk/hullandeastyorkshire.

Note

Guide Price

Guides are provided as an indication of each sellers minimum expectation. They are not necessarily figures which a property will sell for and may change at any time prior to the auction. Each property will be offered subject to a Reserve (a figure below which the Auctioneer cannot sell the property during the auction), which we expect will be set within the Guide Range or no more than 10% above a single figure Guide.

Note

Conditions of Sale

The property will be sold subject to conditions of sale, copies of which will be available for inspection at the auctioneer’s offices, with the solicitors and online at auctionhouse.co.uk/hullandeastyorkshire prior to the date of the auction.

Lot Type

Redevelopment

Planning

Planning permission was originally granted on 28th April 2021 under application number 20/01450/PLF for'Erection of 5 dwellings with associated access and parking following demolition of Public House'and subsequently revised on the 27th September 2021 application No:21/02918/VAR for 'Variation of Condition 11 (approved plans (plot C & D only)) of planning permission 20/01450/PLF (Erection of 5 dwellings with associated access and parking following demolition of Public House).' The permission was secured in March 2024 by approval ofApplication No.24/30096/CONDET'Submission of details required by Condition 2 (Archaeological Investigation Scheme) of planning permission 21/02918/VAR'

Important Notice to Prospective Buyers

We draw your attention to the Special Conditions of Sale within the Legal Pack, referring to other charges in addition to the purchase price which may become payable. Such costs may include Search Fees, reimbursement of Sellers costs and Legal Fees, and Transfer Fees amongst others.

Buyers Premium

The purchaser will be required to pay a buyer’s premium of £1,200 (£600 + VAT) in addition to the purchase price of the property.

Administration Charge

The purchaser will be required to pay an administration charge of 0.3% (inc. VAT) of the purchase price subject to a minimum of £1,200 (£1,000 plus VAT) in addition to the purchase price of the property.

Disbursements

Please see the legal pack for any disbursements listed that may become payable by the purchaser on completion.

Loading the bidding panel...

* Guide | £345,000
  • Tenure: Freehold.
  • Unconditional (Immediate Exchange)

Call the team on 0845 400 9900 for more information

Disclaimer: The map preview provided above is for general guidance only and may not accurately reflect the exact location or surrounding buildings. Prospective buyers and interested parties are strongly advised to independently verify the precise location and surroundings before bidding.

Note

  1. MONEY LAUNDERING REGULATIONS: Intending purchasers will be asked to produce identification documentation at a later stage and we would ask for your co-operation in order that there will be no delay in agreeing the sale.
  2. General : While we endeavour to make our sales particulars fair, accurate and reliable, they are only a general guide to the property and, accordingly, if there is any point which is of particular importance to you, please contact the office and we will be pleased to check the position for you, especially if you are contemplating travelling some distance to view the property.
  3. Measurements: These approximate room sizes are only intended as general guidance. You must verify the dimensions carefully before ordering carpets or any built-in furniture.
  4. Services: Please note we have not tested the services or any of the equipment or appliances in this property, accordingly we strongly advise prospective buyers to commission their own survey or service reports before finalising their offer to purchase.
  5. THESE PARTICULARS ARE ISSUED IN GOOD FAITH BUT DO NOT CONSTITUTE REPRESENTATIONS OF FACT OR FORM PART OF ANY OFFER OR CONTRACT. THE MATTERS REFERRED TO IN THESE PARTICULARS SHOULD BE INDEPENDENTLY VERIFIED BY PROSPECTIVE BUYERS OR TENANTS. NEITHER AUCTION HOUSE NOR ANY OF ITS EMPLOYEES OR AGENTS HAS ANY AUTHORITY TO MAKE OR GIVE ANY REPRESENTATION OR WARRANTY WHATEVER IN RELATION TO THIS PROPERTY.