Auction House / Manchester

  • For Sale By Unconditional Online Auction
  • Guide Price* : £250,000
  • Auction Ended 01/08/2025
  • Lot 27

28 Bromwich Street, Bolton, BL2 1JF

* Investment Opportunity *

Description

A substantial terrace property set over three floors with five self-contained rented flats producing a combined gross of circa £30,500 which equates to an attractive 12% return based against the guide price - certainly one for addition to any discerning investors portfolio.

Situated in a prominent position conveniently located for daily amenities and within easy reach of Bolton Town Centre, Motorway & Rail Links.

viewing is highly recommended.

Accommodation

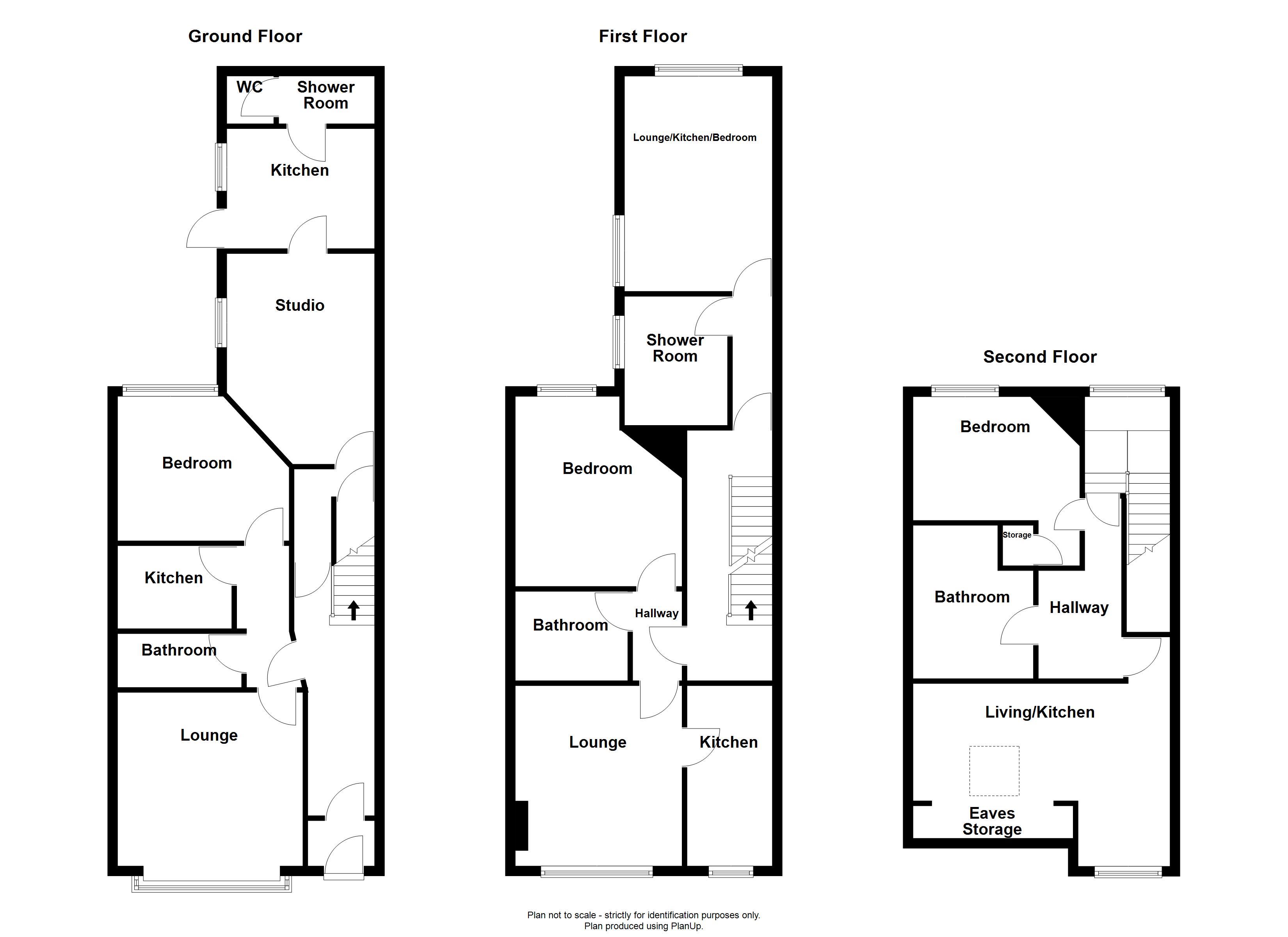
Ground Floor
The ground floor consists of entrance vestibule, hallway with staircase leading to the first floor and under stair storage cupboard.

Flat 1
Hallway, Lounge with front facing Bay window, Shower Room and Double Bedroom.

Flat 2
Studio with combined Lounge & Bedroom, Kitchen with access to the rear yard and Shower Room with separate WC.

First Floor
has a spacious landing and staircase leading to the second floor.

Flat 3
Hallway, Shower Room and open plan Lounge, Kitchen & Bedroom.

Flat 4
Hallway, Lounge, Kitchen, Bedroom & Shower Room.

Second Floor
landing with rear facing window with rear facing window.

Flat 5
Lounge with front facing Velux window and substantial eaves storage, open plan to the Kitchen, Bathroom and Double Bedroom with storage cupboard.

Externally
there is a paved courtyard to the front and private rear yard with outhouse.

Tenure

Leasehold. The property is held on a 990 year lease from 25th October 1900 (thus approximately 864 years unexpired).

Council Tax Band

A

Lease Start Date

25/10/1900

Lease Duration

990 years (865 years unexpired)

Annual Ground Rent

£6

EPC Rating

Flat 1 - C
Flat 2 - C
Flat 3 - C
Flat 4 - C
Flat 5 - D

Important Notice to Prospective Buyers

We draw your attention to the Special Conditions of Sale within the Legal Pack, referring to other charges in addition to the purchase price which may become payable. Such costs may include Search Fees, reimbursement of Sellers costs and Legal Fees, and Transfer Fees amongst others.

Administration Charge

In addition to the deposit Administration Charge: 1.2% inc VAT of the purchase price subject to a minimum of £1,500 inc VAT

Loading the bidding panel...

* Guide | £250,000
  • 5 Bedrooms
  • Tenure: Leasehold. The property is held on a 990 year lease from 25th October 1900 (thus approximately 864 years unexpired).
  • Unconditional (Immediate Exchange)

Call the team on 0161 925 3254 for more information

Related Documents

Disclaimer: The map preview provided above is for general guidance only and may not accurately reflect the exact location or surrounding buildings. Prospective buyers and interested parties are strongly advised to independently verify the precise location and surroundings before bidding.

Note

  1. MONEY LAUNDERING REGULATIONS: Intending purchasers will be asked to produce identification documentation at a later stage and we would ask for your co-operation in order that there will be no delay in agreeing the sale.
  2. General : While we endeavour to make our sales particulars fair, accurate and reliable, they are only a general guide to the property and, accordingly, if there is any point which is of particular importance to you, please contact the office and we will be pleased to check the position for you, especially if you are contemplating travelling some distance to view the property.
  3. Measurements: These approximate room sizes are only intended as general guidance. You must verify the dimensions carefully before ordering carpets or any built-in furniture.
  4. Services: Please note we have not tested the services or any of the equipment or appliances in this property, accordingly we strongly advise prospective buyers to commission their own survey or service reports before finalising their offer to purchase.
  5. THESE PARTICULARS ARE ISSUED IN GOOD FAITH BUT DO NOT CONSTITUTE REPRESENTATIONS OF FACT OR FORM PART OF ANY OFFER OR CONTRACT. THE MATTERS REFERRED TO IN THESE PARTICULARS SHOULD BE INDEPENDENTLY VERIFIED BY PROSPECTIVE BUYERS OR TENANTS. NEITHER AUCTION HOUSE NOR ANY OF ITS EMPLOYEES OR AGENTS HAS ANY AUTHORITY TO MAKE OR GIVE ANY REPRESENTATION OR WARRANTY WHATEVER IN RELATION TO THIS PROPERTY.