Auction House / North East

  • For Sale By Unconditional Online Auction
  • Guide Price* : £45,000 - £65,000
  • Auction Ended 29/07/2025
  • Lot 28

Chantry Workshop D, Chantry Place, Morpeth, Northumberland, NE61 1PJ

Exciting Town Centre Commercial Development Opportunity – Planning Approved

Description

OPEN HOUSE VIEWING DATES:
Tuesday 22nd July @3pm - 3:30pm

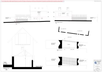
This is a rare opportunity to acquire a centrally located freehold workshop in the heart of Morpeth town centre, discreetly positioned within Chantry Place just behind the bustling Bridge Street. The property benefits from full planning permission granted by Northumberland County Council (Ref: 24/04143/FUL). The approved plans include a first-floor extension with mezzanine level, WC and storage area, and the installation of a fully glazed shopfront.

Currently arranged as a single-storey workshop with independent access, the property is set within a courtyard development surrounded by independent shops, cafés, and creative businesses. The location is just moments from Morpeth’s historic Chantry and within easy walking distance of the town’s main retail centre and railway station.

This is an ideal acquisition for investors, developers or owner-occupiers looking to secure a high-potential commercial space in a sought-after town centre location. The planning permission is live and ready to be implemented immediately, offering an excellent opportunity to add value.

**Buyers are advised to conduct their own enquiries with regards to any planning and any other consents or rights over the property. These details show an artist’s impression of how a mixed use unit could look subject to planning application being approved by the relevant local authority.**

Planning Ref: 24/04143/FUL
What3Words location is ///satellite.optimally.assorted.

Tenure: Freehold

Important Notice to Prospective Buyers

We draw your attention to the Special Conditions of Sale within the Legal Pack, referring to other charges in addition to the purchase price which may become payable. Such costs may include Search Fees, reimbursement of Sellers costs and Legal Fees, and Transfer Fees amongst others.

Administration Charge

£3600 inc VAT payable on exchange of contracts.

Loading the bidding panel...

* Guide | £45,000 - £65,000
  • Unconditional (Immediate Exchange)

Call the team on 0191 908 9691 for more information

Disclaimer: The map preview provided above is for general guidance only and may not accurately reflect the exact location or surrounding buildings. Prospective buyers and interested parties are strongly advised to independently verify the precise location and surroundings before bidding.

Note

  1. MONEY LAUNDERING REGULATIONS: Intending purchasers will be asked to produce identification documentation at a later stage and we would ask for your co-operation in order that there will be no delay in agreeing the sale.
  2. General : While we endeavour to make our sales particulars fair, accurate and reliable, they are only a general guide to the property and, accordingly, if there is any point which is of particular importance to you, please contact the office and we will be pleased to check the position for you, especially if you are contemplating travelling some distance to view the property.
  3. Measurements: These approximate room sizes are only intended as general guidance. You must verify the dimensions carefully before ordering carpets or any built-in furniture.
  4. Services: Please note we have not tested the services or any of the equipment or appliances in this property, accordingly we strongly advise prospective buyers to commission their own survey or service reports before finalising their offer to purchase.
  5. THESE PARTICULARS ARE ISSUED IN GOOD FAITH BUT DO NOT CONSTITUTE REPRESENTATIONS OF FACT OR FORM PART OF ANY OFFER OR CONTRACT. THE MATTERS REFERRED TO IN THESE PARTICULARS SHOULD BE INDEPENDENTLY VERIFIED BY PROSPECTIVE BUYERS OR TENANTS. NEITHER AUCTION HOUSE NOR ANY OF ITS EMPLOYEES OR AGENTS HAS ANY AUTHORITY TO MAKE OR GIVE ANY REPRESENTATION OR WARRANTY WHATEVER IN RELATION TO THIS PROPERTY.