Auction House / South Yorkshire

  • For Sale By Unconditional Online Auction
  • Guide Price* : £75,000
  • Auction Ended 29/07/2025
  • Lot 43

The Cottage Back Drove, Wisbech, Cambridgeshire, PE14 9RH

Auction Date Commencing on Monday 28th July at 1pm and ending 24 hours later on Tuesday 29th July at 1pm with Auction House

Please register to bid via our website - auctionhouse.co.uk

Description

Auction Date Commencing on Monday 28th July at 1pm and ending 24 hours later on Tuesday 29th July at 1pm with Auction House

Please register to bid via our website - auctionhouse.co.uk

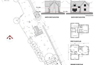
THREE BED DETACHED HOUSE WITH PLANNING PERMISSION planning 23/00362/RM (Fenland District Council) FOR REPLACEMENT DWELLING

The property is located in this idyllic rural setting with Back Drove being a no through road home to a number of dwellings. Welney itself lies off the A1101 with Ely to the south, Wisbech and Downham Market to the north and Peterborough further to the west. The area provides local facilities with more comprehensive services in the nearby towns. The A1101 provides good road links and connects south to the A10 at Littleport. The rail station at Manea is some 15 minutes’ drive from the property and provides connections to Colchester, Peterborough, Stansted Airport and Birmingham New Street.

Description:
The property sits in a good sized plot providing garden and parking areas. The current building comprises a detached two floor house of brick construction beneath a pitched tiled roof. It has been neglected over a period of time and now requires complete refurbishment or replacement, for which planning permission has been granted. Purchasers can therefore consider the option of renovating and possibly extending the existing dwelling or, implementing the planning permission and demolish the current house and replacing it with a modern newly constructed family dwelling.

Planning:
If a buyer wishes to redevelop rather than renovate, the property is sold with the benefit of full planning permission with reserved matters granted 3rd October 2023. The original planning was an outline permission, the reserved matters now granted take this now to full permission for the development which would require demolition of the existing house and replacing this with a new detached family home. Full copies of the plans and planning permission are available from the auctioneers and can be downloaded as part of the legal pack.

Planning (continued):
If this option was taken, the finished development would comprise:
First Floor: Master Bedroom with en-suite shower/wc, Two further bedrooms, family bathroom/wc.
Ground Floor: Entrance Hall, Reception Room, Study, Open Plan Kitchen/Dining Room, Utility Room, Cloakroom with wc.
Outside: Gardens and off Street Parking.

Tenure: Freehold

Important Notice to Prospective Buyers

We draw your attention to the Special Conditions of Sale within the Legal Pack, referring to other charges in addition to the purchase price which may become payable. Such costs may include Search Fees, reimbursement of Sellers costs and Legal Fees, and Transfer Fees amongst others.

Administration Charge

£2,400 inc vat payable upon the fall of the virtual gavel

Loading the bidding panel...

* Guide | £75,000
  • Detached House
  • 3 Bedrooms
  • Unconditional (Immediate Exchange)

Call the team on 0114 223 0777 for more information

Disclaimer: The map preview provided above is for general guidance only and may not accurately reflect the exact location or surrounding buildings. Prospective buyers and interested parties are strongly advised to independently verify the precise location and surroundings before bidding.

Note

  1. MONEY LAUNDERING REGULATIONS: Intending purchasers will be asked to produce identification documentation at a later stage and we would ask for your co-operation in order that there will be no delay in agreeing the sale.
  2. General : While we endeavour to make our sales particulars fair, accurate and reliable, they are only a general guide to the property and, accordingly, if there is any point which is of particular importance to you, please contact the office and we will be pleased to check the position for you, especially if you are contemplating travelling some distance to view the property.
  3. Measurements: These approximate room sizes are only intended as general guidance. You must verify the dimensions carefully before ordering carpets or any built-in furniture.
  4. Services: Please note we have not tested the services or any of the equipment or appliances in this property, accordingly we strongly advise prospective buyers to commission their own survey or service reports before finalising their offer to purchase.
  5. THESE PARTICULARS ARE ISSUED IN GOOD FAITH BUT DO NOT CONSTITUTE REPRESENTATIONS OF FACT OR FORM PART OF ANY OFFER OR CONTRACT. THE MATTERS REFERRED TO IN THESE PARTICULARS SHOULD BE INDEPENDENTLY VERIFIED BY PROSPECTIVE BUYERS OR TENANTS. NEITHER AUCTION HOUSE NOR ANY OF ITS EMPLOYEES OR AGENTS HAS ANY AUTHORITY TO MAKE OR GIVE ANY REPRESENTATION OR WARRANTY WHATEVER IN RELATION TO THIS PROPERTY.