Auction House / South West

  • For Sale By Unconditional Online Auction
  • Guide Price* : £230,000
  • Auction Ended 08/07/2025
  • Lot 50

6-8 Old Church Road, Clevedon, Somerset, BS21 6NA

Guide Price £230,000 (plus fees). For Sale via Online Unconditional Auction starting on 07/07/25 at 13:00pm and closes 24 hours later. Legal pack available to download free of charge from our website.

Description

Former HSBC Bank

A former HSBC bank, situated in Clevedon, Somerset.

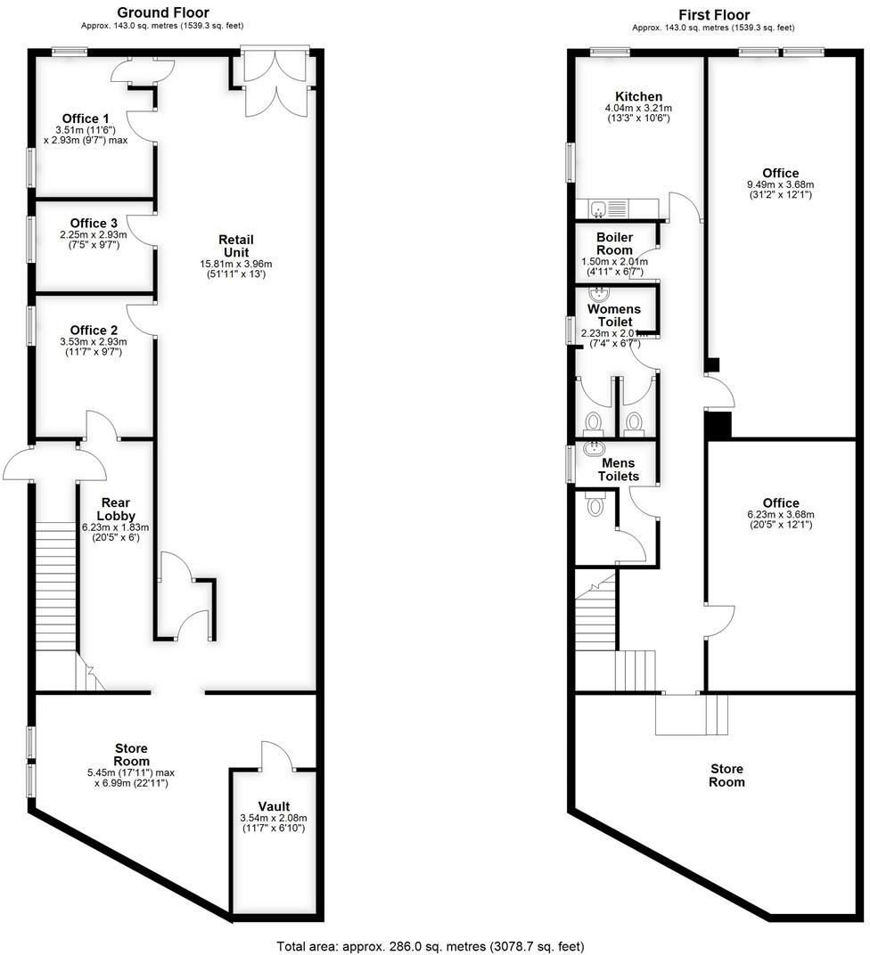
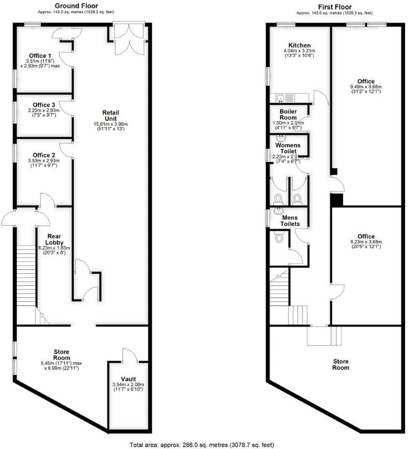
ACCOMMODATION
This spacious retail area, measuring 39'5" x 13' (12.01m x 3.96m), offers an excellent environment for a variety of businesses. The bright and airy space benefits from generous proportions, providing ample room for display and customer interaction. It features easy access to three office areas, offering flexibility for back-office operations, storage, or staff use. This layout is ideal for businesses looking for a well-connected retail space with functional office space close by for smooth operations.

The first floor comprises three additional office spaces, offering ample room for administrative or managerial functions. Also on this level is a kitchenette/staff room, providing a convenient space for staff breaks. The floor is further equipped with separate Male & Female cloakrooms, ensuring practicality for all employees.

VIEWINGS
Regular block viewing sessions will be provided in the lead up to the auction. Please telephone Auction House South West on 03456 461361 to request a viewing.

FULL DETAILS
Photographs, Dimensions, Floor Plans and Area Measurements (when available) are included within the full property details, online, via our website. All published information is to aid identification of the property and is not necessarily to scale.

NOTICE TO BIDDER
Please be aware that if your Bid is successful on Auction day the exchange of contracts will happen immediately after the Auction

Solicitors: Southern Stewart Walker Solicitors, Ref: Claire Stanton, Tel: 0191 427 0770

Tenure: Freehold

EPC Rating: D100

Important Notice to Prospective Buyers

We draw your attention to the Special Conditions of Sale within the Legal Pack, referring to other charges in addition to the purchase price which may become payable. Such costs may include Search Fees, reimbursement of Sellers costs and Legal Fees, and Transfer Fees amongst others.

Buyers Premium

Buyers Premium of £1,200 including VAT

Administration Charge

Buyer Administration Charge of £1,200 including VAT

Loading the bidding panel...

* Guide | £230,000
  • Unconditional (Immediate Exchange)

Call the team on 01752 474200 for more information

Disclaimer: The map preview provided above is for general guidance only and may not accurately reflect the exact location or surrounding buildings. Prospective buyers and interested parties are strongly advised to independently verify the precise location and surroundings before bidding.

Note

  1. MONEY LAUNDERING REGULATIONS: Intending purchasers will be asked to produce identification documentation at a later stage and we would ask for your co-operation in order that there will be no delay in agreeing the sale.
  2. General : While we endeavour to make our sales particulars fair, accurate and reliable, they are only a general guide to the property and, accordingly, if there is any point which is of particular importance to you, please contact the office and we will be pleased to check the position for you, especially if you are contemplating travelling some distance to view the property.
  3. Measurements: These approximate room sizes are only intended as general guidance. You must verify the dimensions carefully before ordering carpets or any built-in furniture.
  4. Services: Please note we have not tested the services or any of the equipment or appliances in this property, accordingly we strongly advise prospective buyers to commission their own survey or service reports before finalising their offer to purchase.
  5. THESE PARTICULARS ARE ISSUED IN GOOD FAITH BUT DO NOT CONSTITUTE REPRESENTATIONS OF FACT OR FORM PART OF ANY OFFER OR CONTRACT. THE MATTERS REFERRED TO IN THESE PARTICULARS SHOULD BE INDEPENDENTLY VERIFIED BY PROSPECTIVE BUYERS OR TENANTS. NEITHER AUCTION HOUSE NOR ANY OF ITS EMPLOYEES OR AGENTS HAS ANY AUTHORITY TO MAKE OR GIVE ANY REPRESENTATION OR WARRANTY WHATEVER IN RELATION TO THIS PROPERTY.