Auction House / Coventry and Warwickshire

  • For Sale By Unconditional Online Auction
  • Guide Price* : £235,000
  • Auction Ended 15/07/2025
  • Lot 35

235 Coventry Road Exhall, Coventry, West Midlands, CV7 9BG

**This property is currently available – Please contact the Auctioneers to register your interest**

To be sold via unconditional TIMED ONLINE AUCTION on Tuesday 15th July 2025
(Visit auctionhouse.co.uk/online).

BIDDING OPENS: 13:00 on Monday 14th July 2025
AUCTION ENDS: 13:00 on Tuesday 15th July 2025

GUIDE PRICE: £235,000 to £265,000

Description

**This property is currently available – Please contact the Auctioneers to register your interest**

To be sold via unconditional TIMED ONLINE AUCTION on Tuesday 15th July 2025
(Visit auctionhouse.co.uk/online).

BIDDING OPENS: 13:00 on Monday 14th July 2025
AUCTION ENDS: 13:00 on Tuesday 15th July 2025

GUIDE PRICE: £235,000 to £265,000

**This property is currently available – Please contact the Auctioneers to register your interest**

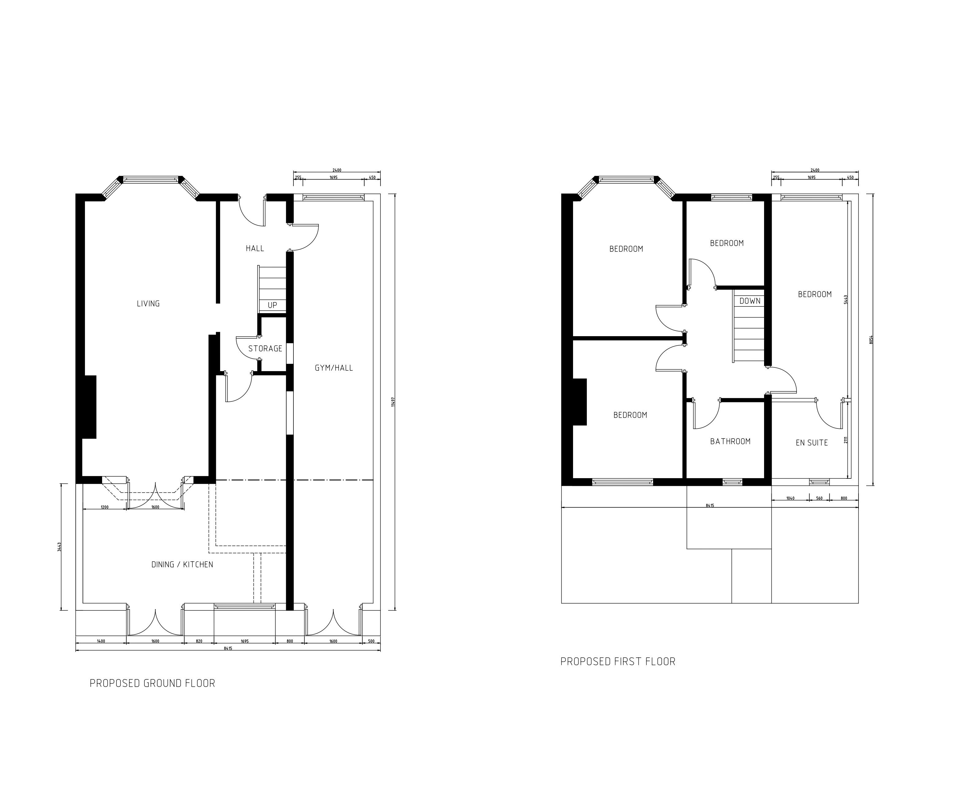
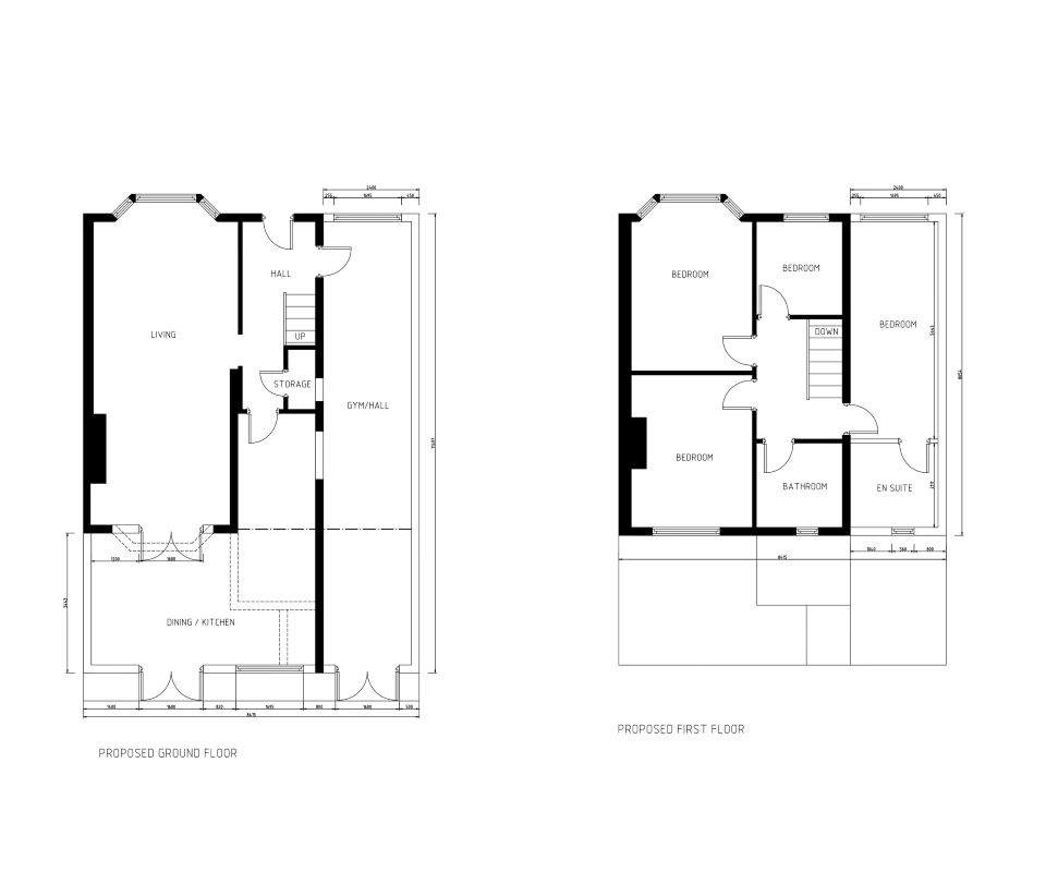
3 bedroom double bayed semi detached property with planning permission to extend to the rear and side to create an additional bedroom and ensuite. Located in a popular area to the north of Coventry with links to the A444 and M6. Ideal family home/investment opportunity.

ACCOMMODATION GROUND FLOOR
Hallway:
Lounge/diner: 11 ft 10 in x 28 ft 8 in
Kitchen:15 f 9 in x 6 ft 4 in
FIRST FLOOR
Bedroom 1: 13 ft 11 in x 9 ft 11 in
Bedroom 2: 12 ft 2 in x 11 ft 5 in
Bedroom 3: 7 ft x 7 ft 8 in
Bathroom:
OUTSIDE Driveway to the front and side.
Rear: Garden and W.C.
SERVICES AND HEATING Mains gas, electricity, water and sewage are supplied to the property. (No tests have been carried out and we are therefore unable to confirm connections.)

Gas central heating.
EPC RATING - E
COUNCIL TAX BAND - C
PLANNING Planning permission was granted on 03/06/2025

"Two storey side extension and single storey rear extension"

Ref: 040927

For further information Nuneaton and Bedworth Council.
TENURE Freehold with vacant possession.
ADDITIONAL COSTS Administration Fee: £1,440 (£1,200 plus VAT)
Buyer's Premium: £1.440 (£1,200 plus VAT)
Please see the legal pack for any further costs.

Tenure: See Legal Pack

Important Notice to Prospective Buyers

We draw your attention to the Special Conditions of Sale within the Legal Pack, referring to other charges in addition to the purchase price which may become payable. Such costs may include Search Fees, reimbursement of Sellers costs and Legal Fees, and Transfer Fees amongst others.

Buyers Premium

Buyer's Premium: £1.440 (£1,200 plus VAT)

Administration Charge

Administration Fee: £1,440 (£1,200 plus VAT)

Loading the bidding panel...

* Guide | £235,000
  • Semi-Detached House
  • 3 Bedrooms
  • Unconditional (Immediate Exchange)

Call the team on 024 7652 7789 for more information

Disclaimer: The map preview provided above is for general guidance only and may not accurately reflect the exact location or surrounding buildings. Prospective buyers and interested parties are strongly advised to independently verify the precise location and surroundings before bidding.

Note

  1. MONEY LAUNDERING REGULATIONS: Intending purchasers will be asked to produce identification documentation at a later stage and we would ask for your co-operation in order that there will be no delay in agreeing the sale.
  2. General : While we endeavour to make our sales particulars fair, accurate and reliable, they are only a general guide to the property and, accordingly, if there is any point which is of particular importance to you, please contact the office and we will be pleased to check the position for you, especially if you are contemplating travelling some distance to view the property.
  3. Measurements: These approximate room sizes are only intended as general guidance. You must verify the dimensions carefully before ordering carpets or any built-in furniture.
  4. Services: Please note we have not tested the services or any of the equipment or appliances in this property, accordingly we strongly advise prospective buyers to commission their own survey or service reports before finalising their offer to purchase.
  5. THESE PARTICULARS ARE ISSUED IN GOOD FAITH BUT DO NOT CONSTITUTE REPRESENTATIONS OF FACT OR FORM PART OF ANY OFFER OR CONTRACT. THE MATTERS REFERRED TO IN THESE PARTICULARS SHOULD BE INDEPENDENTLY VERIFIED BY PROSPECTIVE BUYERS OR TENANTS. NEITHER AUCTION HOUSE NOR ANY OF ITS EMPLOYEES OR AGENTS HAS ANY AUTHORITY TO MAKE OR GIVE ANY REPRESENTATION OR WARRANTY WHATEVER IN RELATION TO THIS PROPERTY.