Auction House / East Anglia

  • For Sale By Unconditional Online Auction
  • Guide Price* : £100,000
  • Auction Ended 01/07/2025
  • Lot 47

The Courtyard Main Road, Spalding, Cambridgeshire, PE13 5QG

FOR SALE BY ONLINE AUCTION ON TUESDAY 1ST JULY 2025
TO REGISTER FOR LEGAL PACKS AND BIDDING INSTRUCTIONS PLEASE VISIT OUR WEBSITE

Description

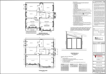
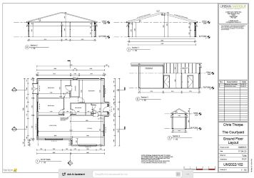
A 0.17 of an acre building plot with permission for a three bedroom detached bungalow in a rural location.

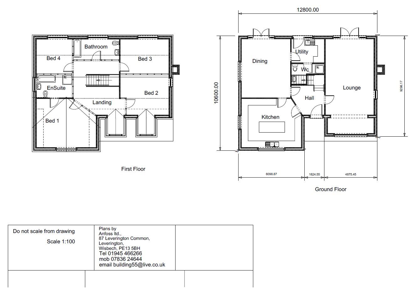
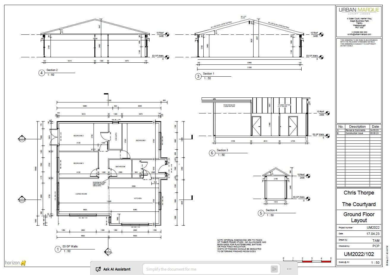
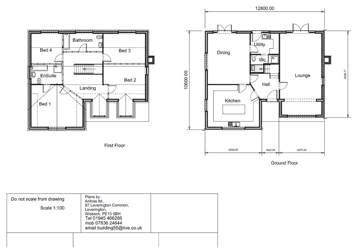
This building plot has full planning permission for a three bedroom bungalow ref South Holland District Council ref H21-1019-22 1. The property is located back from the road with gated access to the wide access driveway and field views at the rear. The plot had a previous outline permission for a detached four bedroom house however the planning permission has now elapsed.

Tydd Gote is located between Wisbech and Long Sutton both offering facilities.

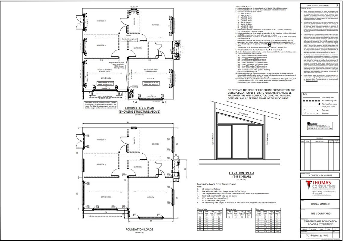
Structural engineering & further documentation included within the online legal pack :-

•Structural Engineering & Calculations
•Design Drawings
•Timber Frame Manufacture Drawings
•Timber Frame Structural Calculations
•Engineered Drainage Statement
•Soakaway Calculations
•Engineered External Ground Levels
•Engineered Foundation Plan & Footing Details

Proposed accommodation - 3 bedroom bungalow
Hall, lounge, kitchen, three bedrooms one with en-suite and a family bathroom.

Tenure: Freehold

Important Notice to Prospective Buyers

We draw your attention to the Special Conditions of Sale within the Legal Pack, referring to other charges in addition to the purchase price which may become payable. Such costs may include Search Fees, reimbursement of Sellers costs and Legal Fees, and Transfer Fees amongst others.

Buyers Premium

£1200 inc VAT payable on exchange of contracts.

Administration Charge

Administration Charge is a non-refundable £1,200 inc VAT payable on the fall of the virtual gavel.

Loading the bidding panel...

* Guide | £100,000
  • Unconditional (Immediate Exchange)

Call the team on 01603 505 100 for more information

Disclaimer: The map preview provided above is for general guidance only and may not accurately reflect the exact location or surrounding buildings. Prospective buyers and interested parties are strongly advised to independently verify the precise location and surroundings before bidding.

Note

  1. MONEY LAUNDERING REGULATIONS: Intending purchasers will be asked to produce identification documentation at a later stage and we would ask for your co-operation in order that there will be no delay in agreeing the sale.
  2. General : While we endeavour to make our sales particulars fair, accurate and reliable, they are only a general guide to the property and, accordingly, if there is any point which is of particular importance to you, please contact the office and we will be pleased to check the position for you, especially if you are contemplating travelling some distance to view the property.
  3. Measurements: These approximate room sizes are only intended as general guidance. You must verify the dimensions carefully before ordering carpets or any built-in furniture.
  4. Services: Please note we have not tested the services or any of the equipment or appliances in this property, accordingly we strongly advise prospective buyers to commission their own survey or service reports before finalising their offer to purchase.
  5. THESE PARTICULARS ARE ISSUED IN GOOD FAITH BUT DO NOT CONSTITUTE REPRESENTATIONS OF FACT OR FORM PART OF ANY OFFER OR CONTRACT. THE MATTERS REFERRED TO IN THESE PARTICULARS SHOULD BE INDEPENDENTLY VERIFIED BY PROSPECTIVE BUYERS OR TENANTS. NEITHER AUCTION HOUSE NOR ANY OF ITS EMPLOYEES OR AGENTS HAS ANY AUTHORITY TO MAKE OR GIVE ANY REPRESENTATION OR WARRANTY WHATEVER IN RELATION TO THIS PROPERTY.