Auction House / Cheshire, Staffordshire & Shropshire

  • For Sale By Unconditional Online Auction
  • Guide Price* : £15,000
  • Auction Ended 15/07/2025
  • Lot 51

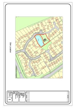
Land @ Rosemere Drive, Chester, Cheshire, CH1 6PD

910m² Plot in CHESTER for Sale By Auction 14th July to 15th July

Description

910m² Plot in CHESTER for Sale By Auction 14th July to 15th July

For sale via Online national auction on Monday 143th October 1.00pm until Tuesday 14th October 1.00pm

Current Vacant plot situated in the highly coveted location of CHESTER . Offering a Luxurious lifestyle in one of CHESHIRES most sought after neighbourhoods.

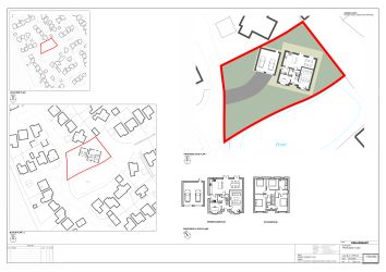
Purchasers are deemed to rely on their own enquiries with regard to any possible development potential for this individual plot in respect of planning and any other consents or rights over the land, but these details show an artist’s impression of how a development on this site could look subject to planning application being approved by relevant local authority.

1. Large and flat Plot/Site totalling approx. 910m² area
2. Investment potential
3. Safe affluential secure area.
4. Lovely potential
5. Excellent location for Train and M53/Chester City Centre.
6. Subject to planning

Tenure: Freehold

Important Notice to Prospective Buyers

We draw your attention to the Special Conditions of Sale within the Legal Pack, referring to other charges in addition to the purchase price which may become payable. Such costs may include Search Fees, reimbursement of Sellers costs and Legal Fees, and Transfer Fees amongst others.

Buyers Premium

Administration Charge is a non-refundable £1,500 inc VAT payable on the fall of the virtual gavel.

Administration Charge

Administration Charge is a non-refundable £1,500 inc VAT payable on the fall of the virtual gavel.

Disbursements

Please see the legal pack for any disbursements listed that may become payable by the purchaser on completion.

Loading the bidding panel...

* Guide | £15,000
  • Land
  • Unconditional (Immediate Exchange)

Call the team on 0345 646 2350 for more information

Disclaimer: The map preview provided above is for general guidance only and may not accurately reflect the exact location or surrounding buildings. Prospective buyers and interested parties are strongly advised to independently verify the precise location and surroundings before bidding.

Note

  1. MONEY LAUNDERING REGULATIONS: Intending purchasers will be asked to produce identification documentation at a later stage and we would ask for your co-operation in order that there will be no delay in agreeing the sale.
  2. General : While we endeavour to make our sales particulars fair, accurate and reliable, they are only a general guide to the property and, accordingly, if there is any point which is of particular importance to you, please contact the office and we will be pleased to check the position for you, especially if you are contemplating travelling some distance to view the property.
  3. Measurements: These approximate room sizes are only intended as general guidance. You must verify the dimensions carefully before ordering carpets or any built-in furniture.
  4. Services: Please note we have not tested the services or any of the equipment or appliances in this property, accordingly we strongly advise prospective buyers to commission their own survey or service reports before finalising their offer to purchase.
  5. THESE PARTICULARS ARE ISSUED IN GOOD FAITH BUT DO NOT CONSTITUTE REPRESENTATIONS OF FACT OR FORM PART OF ANY OFFER OR CONTRACT. THE MATTERS REFERRED TO IN THESE PARTICULARS SHOULD BE INDEPENDENTLY VERIFIED BY PROSPECTIVE BUYERS OR TENANTS. NEITHER AUCTION HOUSE NOR ANY OF ITS EMPLOYEES OR AGENTS HAS ANY AUTHORITY TO MAKE OR GIVE ANY REPRESENTATION OR WARRANTY WHATEVER IN RELATION TO THIS PROPERTY.