Auction House / Notts & Derby

  • For Sale By Unconditional Online Auction
  • Guide Price* : £30,000 - £40,000
  • Auction Ended 24/06/2025
  • Lot 30

Land Adjacent to 66 Bridge Street, Ilkeston, Derbyshire, DE7 8RD

Register - auctionhouse.co.uk/nottsandderby

Description

Register - auctionhouse.co.uk/nottsandderby

FOR SALE VIA NATIONAL ONLINE AUCTION. BIDDING OPENS ON MONDAY 16TH JUNE AT 1PM AND CLOSES TUESDAY 17TH JUNE FROM 1PM. REGISTER TO BID!

Auction House Notts and Derby would like to present this plot of land located on Bridge Street Ilkeston and offered to the market via online auction.

This Freehold residential development plot of land is on the corner of Bridge Street & Cotmanhay Road, and the full planning information can be found at Erewash Council website - ERE/0622/0040.

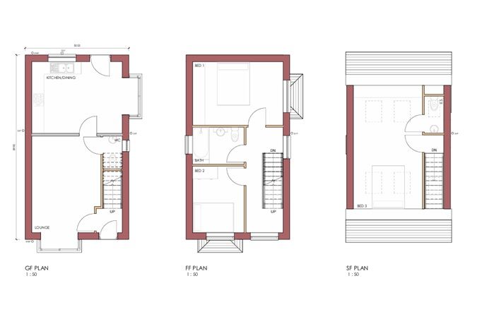
This presents an excellent opportunity to develop a detached three story dwelling, which would be highly desirable. See pictures.

Bridge Street is conveniently situated in the area of Ilkeston, close to a range of local amenities, transport links, parks, walking spots, and local schools.

Viewings are welcome any time.
Freehold.

Tenure: Freehold

Important Notice to Prospective Buyers

We draw your attention to the Special Conditions of Sale within the Legal Pack, referring to other charges in addition to the purchase price which may become payable. Such costs may include Search Fees, reimbursement of Sellers costs and Legal Fees, and Transfer Fees amongst others.

Administration Charge

£3600 inc VAT payable on exchange of contracts.

Loading the bidding panel...

* Guide | £30,000 - £40,000
  • Unconditional (Immediate Exchange)

Call the team on 0115 777 8888 for more information

Disclaimer: The map preview provided above is for general guidance only and may not accurately reflect the exact location or surrounding buildings. Prospective buyers and interested parties are strongly advised to independently verify the precise location and surroundings before bidding.

Note

  1. MONEY LAUNDERING REGULATIONS: Intending purchasers will be asked to produce identification documentation at a later stage and we would ask for your co-operation in order that there will be no delay in agreeing the sale.
  2. General : While we endeavour to make our sales particulars fair, accurate and reliable, they are only a general guide to the property and, accordingly, if there is any point which is of particular importance to you, please contact the office and we will be pleased to check the position for you, especially if you are contemplating travelling some distance to view the property.
  3. Measurements: These approximate room sizes are only intended as general guidance. You must verify the dimensions carefully before ordering carpets or any built-in furniture.
  4. Services: Please note we have not tested the services or any of the equipment or appliances in this property, accordingly we strongly advise prospective buyers to commission their own survey or service reports before finalising their offer to purchase.
  5. THESE PARTICULARS ARE ISSUED IN GOOD FAITH BUT DO NOT CONSTITUTE REPRESENTATIONS OF FACT OR FORM PART OF ANY OFFER OR CONTRACT. THE MATTERS REFERRED TO IN THESE PARTICULARS SHOULD BE INDEPENDENTLY VERIFIED BY PROSPECTIVE BUYERS OR TENANTS. NEITHER AUCTION HOUSE NOR ANY OF ITS EMPLOYEES OR AGENTS HAS ANY AUTHORITY TO MAKE OR GIVE ANY REPRESENTATION OR WARRANTY WHATEVER IN RELATION TO THIS PROPERTY.