Auction House / Sussex & Hampshire

  • For Sale By Unconditional Online Auction
  • Guide Price* : 125,000
  • Auction Ended 10/06/2025
  • Lot 51

Apartment 13 Charter House, Lord Montgomery Way, Portsmouth, Hampshire, PO1 2SG

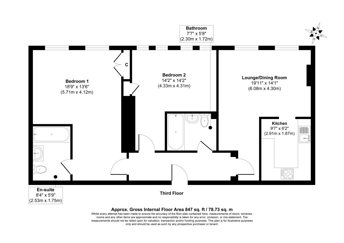
Vacant 3rd Floor 2-Bedroom Apartment

Description

Leasehold third floor flat comprising Lounge/Dining Room, Kitchen, 2 bedrooms (1 en-suite) and bathroom. There are 76 years remaining on the lease.
The property is located in a landmark building close to the city centre, Gunwharf Quays & Portsmouth University. Portsmouth & Southsea train station is less than 1 mile from the property.

Location Pin (What3Words): spout.upon.shunts
https://w3w.co/spout.upon.shunts

Accommodation

Lounge / Dining Room - 6.08 x 4.30

Kitchen - 2.91 x 1.87

Bedroom 1 - 5.71 x 4.12

Ensuite - 2.53 x 1.75

Bedroom 2 - 4.33 x 4.31

Bath/WC - 2.30 x 1.72

NB WE DRAW YOUR ATTENTION TO THE SPECIAL CONDITIONS IN THE LEGAL PACK, REFERRING TO BUYERS PREMIUM OF £1500 (INC VAT) AND OTHER CHARGES IN ADDITION TO THE PURCHASE PRICE. PLEASE ENSURE YOU READ THE SPECIAL CONDITIONS THOROUGHLY

Tenure

Leasehold. The property is held on a 99 year lease, from 1st January 2003 (approximately 76 years remaining)

Council Tax Band

D

Lease Start Date

01/01/2003

Annual Ground Rent

£200 - reviewed every 25 years

Important Notice to Prospective Buyers

We draw your attention to the Special Conditions of Sale within the Legal Pack, referring to other charges in addition to the purchase price which may become payable. Such costs may include Search Fees, reimbursement of Sellers costs and Legal Fees, and Transfer Fees amongst others.

Buyers Premium

£1,500 inc VAT payable on exchange of contracts

Administration Charge

£1,500 inc VAT payable on exchange of contracts

Disbursements

Please see Legal Pack for Disbursements.

Loading the bidding panel...

* Guide | 125,000
  • 2 Bedrooms
  • Tenure: Leasehold. The property is held on a 99 year lease, from 1st January 2003 (approximately 76 years remaining)
  • Unconditional (Immediate Exchange)

Call the team on 01273 201989 for more information

Disclaimer: The map preview provided above is for general guidance only and may not accurately reflect the exact location or surrounding buildings. Prospective buyers and interested parties are strongly advised to independently verify the precise location and surroundings before bidding.

Note

  1. MONEY LAUNDERING REGULATIONS: Intending purchasers will be asked to produce identification documentation at a later stage and we would ask for your co-operation in order that there will be no delay in agreeing the sale.
  2. General : While we endeavour to make our sales particulars fair, accurate and reliable, they are only a general guide to the property and, accordingly, if there is any point which is of particular importance to you, please contact the office and we will be pleased to check the position for you, especially if you are contemplating travelling some distance to view the property.
  3. Measurements: These approximate room sizes are only intended as general guidance. You must verify the dimensions carefully before ordering carpets or any built-in furniture.
  4. Services: Please note we have not tested the services or any of the equipment or appliances in this property, accordingly we strongly advise prospective buyers to commission their own survey or service reports before finalising their offer to purchase.
  5. THESE PARTICULARS ARE ISSUED IN GOOD FAITH BUT DO NOT CONSTITUTE REPRESENTATIONS OF FACT OR FORM PART OF ANY OFFER OR CONTRACT. THE MATTERS REFERRED TO IN THESE PARTICULARS SHOULD BE INDEPENDENTLY VERIFIED BY PROSPECTIVE BUYERS OR TENANTS. NEITHER AUCTION HOUSE NOR ANY OF ITS EMPLOYEES OR AGENTS HAS ANY AUTHORITY TO MAKE OR GIVE ANY REPRESENTATION OR WARRANTY WHATEVER IN RELATION TO THIS PROPERTY.