Auction House / Lincolnshire

  • For Sale By Unconditional Online Auction
  • Guide Price* : £70,000 - £90,000
  • Auction Ended 17/06/2025
  • Lot 21

52 Shrewsbury Road Bircotes, Doncaster, South Yorkshire, DN11 8DJ

*ONLINE Unconditional Auction Opening 16 June 2025*
To register for the legal pack and bidding, please visit our website: auctionhouse.co.uk/lincolnshire

Description

Situation:
The Bircotes and Harworth conurbation has undergone significant regeneration recently and is ideally situated for commuting lying only a few minutes’ drive from the A1M and links to the motorway network whilst the east coast mainline is accessible via stations at Retford and the city of Doncaster. The area has many amenities including an Asda superstore, Serlby Academy, Doctors surgery, library and post office, whilst the market town of Bawtry has a range of shops, boutiques, restaurants, pubs and the Crown Hotel.

Description:
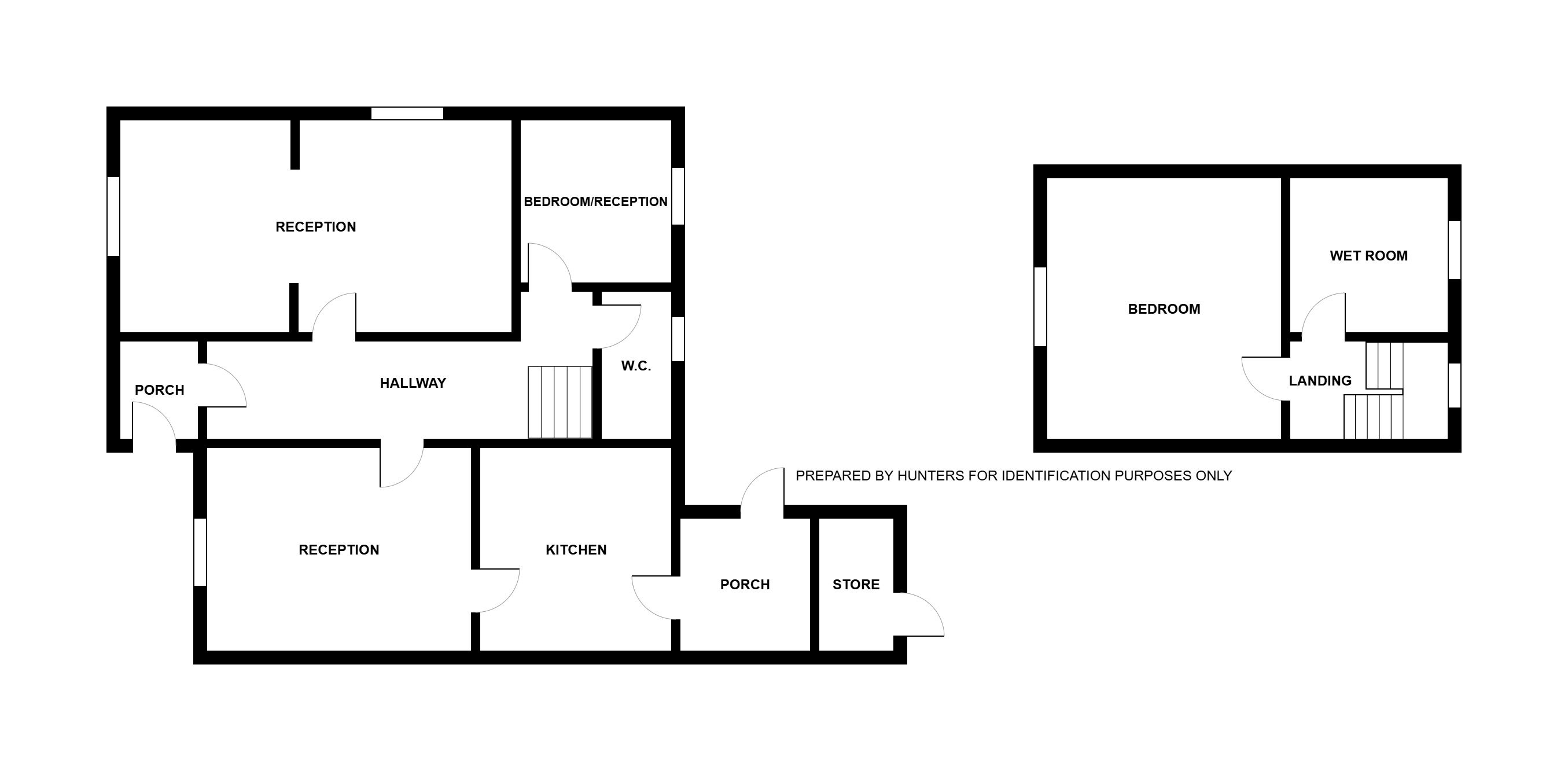
A 2 bedroom end of terrace house briefly comprising porched entrances to front and rear, main entrance hallway, two reception rooms, bedroom/further reception, kitchen and cloakroom downstairs and a main bedroom and wet room upstairs. Outside is a drive with car port allowing off street parking for several vehicles, and gardens to the front and rear. The property also benefits from gas central heating and double glazing.

Accommodation
Entrance Hall: 1.11m x 6.09m
Reception One: 3.64m x 6.22m
Reception Two: 3.50m x 4.57m
Kitchen: 3.93m x 3.31m
Rear Porch:
Downstairs Bedroom/Reception: 3.18m x 3.32m
Downstairs Cloakroom: 1.58m x 1.77m
First Floor Landing: 1.64m x 3.31m
Bedroom: 4.04m x 4.57m
Wet Room: 2.75m x 3.47m

Externally:
To the front is a drive, accessed via gates with a wooden car port over allowing off street parking for several vehicles, mature beds with trees, and further gate to the rear.
The rear of the property is mainly laid to concrete with a store attached to the porch. There is an outside tap, security light and fencing surround.
Material Information
Tenure:
The property is freehold. All prospective bidders should satisfy themselves of terms of the tenure, ground rent and service charge if applicable, by inspecting the legal pack.

Council Tax:
The property falls within Doncaster Council – BAND A

Possession:
Vacant possession will be given upon completion.

Viewing:
Strictly by appointment with Auction House.

Services:
Prospective purchasers are advised to make their own enquiries of the relevant statutory authorities. NB: Services, Apparatus and Equipment have not been tested by Auction House and therefore cannot be verified as being in working order. The buyer is advised to obtain verification from their Solicitor/Surveyor.

These particulars are believed to be correct but their accuracy is not guaranteed and they do not form any part of any contract. Information relating to Rating and Town and Country Planning matters has been obtained by verbal enquiry only. Prospective purchasers are advised to make their own enquiries of the appropriate Authority. Information relating to Phone & Broadband can be found by visiting Ofcom. All measurements, areas and distances are approximate only. Potential purchasers are advised to check them.

EPC Rating

D

Important Notice to Prospective Buyers

We draw your attention to the Special Conditions of Sale within the Legal Pack, referring to other charges in addition to the purchase price which may become payable. Such costs may include Search Fees, reimbursement of Sellers costs and Legal Fees, and Transfer Fees amongst others.

Buyers Premium

Non-refundable £1,440 inc VAT payable on the fall of the virtual gavel.

Administration Charge

Non-refundable £1,440 inc VAT payable on the fall of the virtual gavel.

Disbursements

Please see the legal pack for any disbursements listed that may become payable by the purchaser on completion.

Loading the bidding panel...

* Guide | £70,000 - £90,000
  • 3 Bedrooms
  • Unconditional (Immediate Exchange)

Call the team on 01427 616436 for more information

Disclaimer: The map preview provided above is for general guidance only and may not accurately reflect the exact location or surrounding buildings. Prospective buyers and interested parties are strongly advised to independently verify the precise location and surroundings before bidding.

Note

  1. MONEY LAUNDERING REGULATIONS: Intending purchasers will be asked to produce identification documentation at a later stage and we would ask for your co-operation in order that there will be no delay in agreeing the sale.
  2. General : While we endeavour to make our sales particulars fair, accurate and reliable, they are only a general guide to the property and, accordingly, if there is any point which is of particular importance to you, please contact the office and we will be pleased to check the position for you, especially if you are contemplating travelling some distance to view the property.
  3. Measurements: These approximate room sizes are only intended as general guidance. You must verify the dimensions carefully before ordering carpets or any built-in furniture.
  4. Services: Please note we have not tested the services or any of the equipment or appliances in this property, accordingly we strongly advise prospective buyers to commission their own survey or service reports before finalising their offer to purchase.
  5. THESE PARTICULARS ARE ISSUED IN GOOD FAITH BUT DO NOT CONSTITUTE REPRESENTATIONS OF FACT OR FORM PART OF ANY OFFER OR CONTRACT. THE MATTERS REFERRED TO IN THESE PARTICULARS SHOULD BE INDEPENDENTLY VERIFIED BY PROSPECTIVE BUYERS OR TENANTS. NEITHER AUCTION HOUSE NOR ANY OF ITS EMPLOYEES OR AGENTS HAS ANY AUTHORITY TO MAKE OR GIVE ANY REPRESENTATION OR WARRANTY WHATEVER IN RELATION TO THIS PROPERTY.