Auction House / Manchester

  • For Sale By Unconditional Online Auction
  • Guide Price* : £92,000+
  • Auction Ended 27/05/2025
  • Lot 2

42 Hull Road, Blackpool, Blackpool, FY1 4QB

FOR SALE BY ONLINE AUCTION ON TUESDAY 27TH MAY 2025

Description

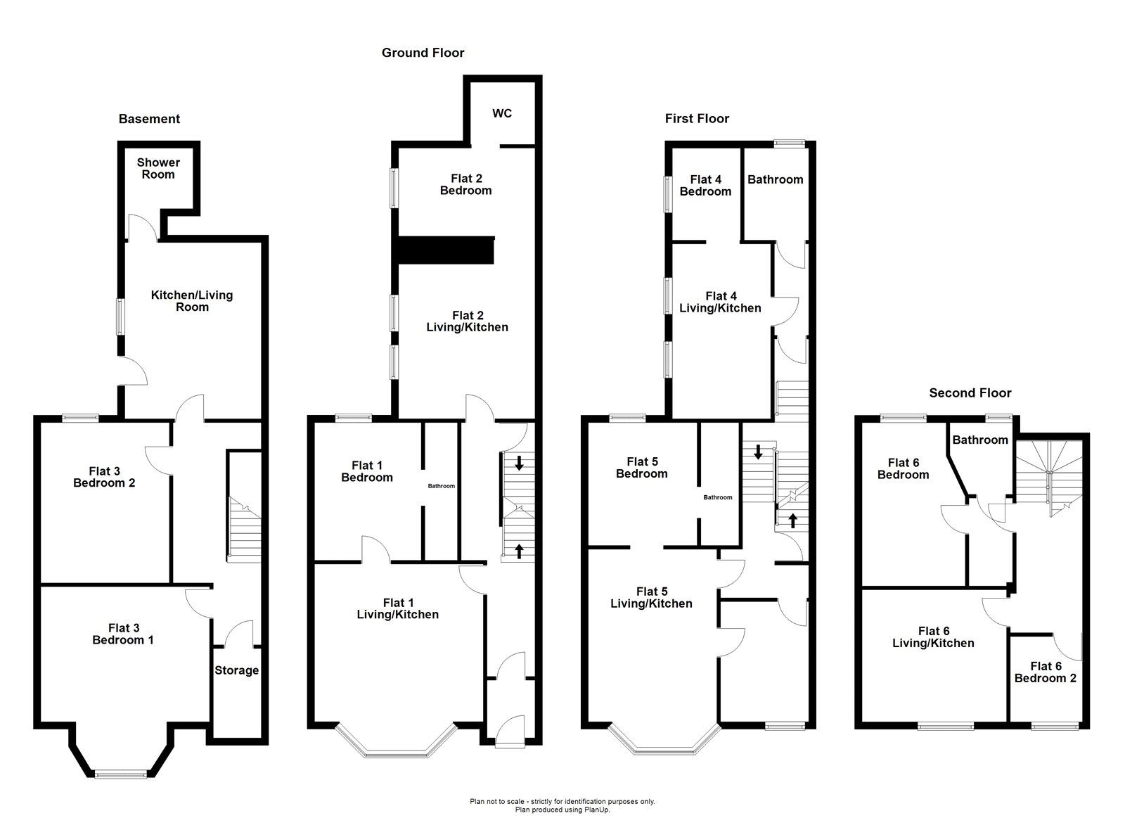
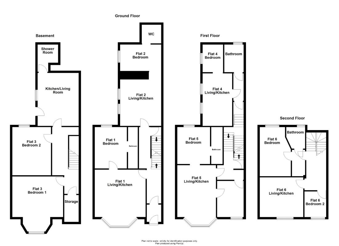
A good opportunity to acquire a block of six Holiday Flats (Airbnb’s), in the Centre of Blackpool Town and holiday zone, on a holiday/hotel accommodation only street.

Located a short walk away from the new shopping Centre, Coral Island, Winter Gardens, Sea Life, Backlot Imax Cinema.

Auction House have been told that the property was converted to holiday flats around 1988, with Architect designs and relevant consents. It benefits from front and rear roof dormers, plus the basement has a concrete floor base throughout.
The property requires full internal refurbishment. The building is ripe for somebody to develop to their own standard.

As regulated holiday flats the property avoids any proposed future plans by HM Gov to regulate and control the serviced accommodation industry.

Plans supplied indicate an overall space of (261 Sqm / 2816 Sq Ft), Rateable Value 2023/24 £4,350 pa.

Council Tax Band

A

Important Notice to Prospective Buyers

We draw your attention to the Special Conditions of Sale within the Legal Pack, referring to other charges in addition to the purchase price which may become payable. Such costs may include Search Fees, reimbursement of Sellers costs and Legal Fees, and Transfer Fees amongst others.

Administration Charge

Administration Charge is a non-refundable £1,200 inc VAT payable on the fall of the virtual gavel.

Loading the bidding panel...

* Guide | £92,000+
  • 6 Bedrooms
  • Unconditional (Immediate Exchange)

Call the team on 0161 925 3254 for more information

Disclaimer: The map preview provided above is for general guidance only and may not accurately reflect the exact location or surrounding buildings. Prospective buyers and interested parties are strongly advised to independently verify the precise location and surroundings before bidding.

Note

  1. MONEY LAUNDERING REGULATIONS: Intending purchasers will be asked to produce identification documentation at a later stage and we would ask for your co-operation in order that there will be no delay in agreeing the sale.
  2. General : While we endeavour to make our sales particulars fair, accurate and reliable, they are only a general guide to the property and, accordingly, if there is any point which is of particular importance to you, please contact the office and we will be pleased to check the position for you, especially if you are contemplating travelling some distance to view the property.
  3. Measurements: These approximate room sizes are only intended as general guidance. You must verify the dimensions carefully before ordering carpets or any built-in furniture.
  4. Services: Please note we have not tested the services or any of the equipment or appliances in this property, accordingly we strongly advise prospective buyers to commission their own survey or service reports before finalising their offer to purchase.
  5. THESE PARTICULARS ARE ISSUED IN GOOD FAITH BUT DO NOT CONSTITUTE REPRESENTATIONS OF FACT OR FORM PART OF ANY OFFER OR CONTRACT. THE MATTERS REFERRED TO IN THESE PARTICULARS SHOULD BE INDEPENDENTLY VERIFIED BY PROSPECTIVE BUYERS OR TENANTS. NEITHER AUCTION HOUSE NOR ANY OF ITS EMPLOYEES OR AGENTS HAS ANY AUTHORITY TO MAKE OR GIVE ANY REPRESENTATION OR WARRANTY WHATEVER IN RELATION TO THIS PROPERTY.