Auction House / Kent

  • For Sale By Unconditional Online Auction
  • Guide Price* : £110,000
  • Auction Ended 27/05/2025
  • Lot 34

Flat 15 Kingfisher House, Aylesbury, Buckinghamshire, HP21 7FS

SOLD AT AUCTION FOR £120,000

Description

SOLD AT AUCTION FOR £120,000

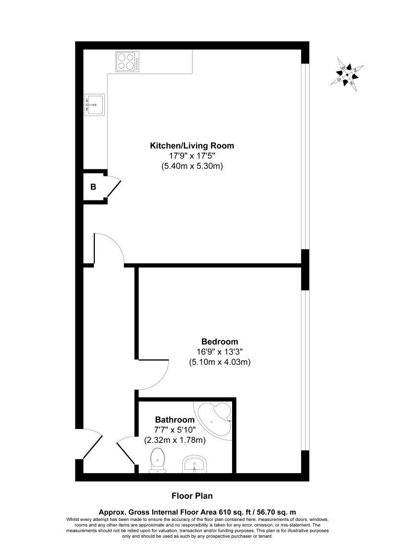
One bedroom third floor flat requiring refurbishment

An excellent value add opportunity through works of refurbishment which would widely appeal to investors, developers and owner occupiers.

Located next to the Grand Union canal, the property comprises an entrance hall, an open plan kitchen/living room, bedroom and bathroom.

Situated within the Kingfisher House development and 0.3 mile away from the town centre, the property is perfectly placed for shopping, restaurants and sports facilities. For commuters, the mainline station is only 0.4 miles away, providing regular links in to London.

Third Floor Flat Entrance hall, open plan living room/kitchen, bedroom and bathroom
Council Tax B
Viewings Viewings are being arranged and the next ones are Monday 12th May and Tuesday 13th May. Please contact us to book an appointment

Tenure: Leasehold

Lease Details: 125 year lease from 25 March 2016

EPC Rating: D

Important Notice to Prospective Buyers

We draw your attention to the Special Conditions of Sale within the Legal Pack, referring to other charges in addition to the purchase price which may become payable. Such costs may include Search Fees, reimbursement of Sellers costs and Legal Fees, and Transfer Fees amongst others.

Buyers Premium

£1,000 inc VAT payable on exchange of contracts

Administration Charge

Administration Charge is a non-refundable £1,200 inc VAT payable on the fall of the virtual gavel.

Loading the bidding panel...

* Guide | £110,000
  • Flat
  • 1 Bedroom
  • Unconditional (Immediate Exchange)

Call the team on 01622 948 750 for more information

Disclaimer: The map preview provided above is for general guidance only and may not accurately reflect the exact location or surrounding buildings. Prospective buyers and interested parties are strongly advised to independently verify the precise location and surroundings before bidding.

Note

  1. MONEY LAUNDERING REGULATIONS: Intending purchasers will be asked to produce identification documentation at a later stage and we would ask for your co-operation in order that there will be no delay in agreeing the sale.
  2. General : While we endeavour to make our sales particulars fair, accurate and reliable, they are only a general guide to the property and, accordingly, if there is any point which is of particular importance to you, please contact the office and we will be pleased to check the position for you, especially if you are contemplating travelling some distance to view the property.
  3. Measurements: These approximate room sizes are only intended as general guidance. You must verify the dimensions carefully before ordering carpets or any built-in furniture.
  4. Services: Please note we have not tested the services or any of the equipment or appliances in this property, accordingly we strongly advise prospective buyers to commission their own survey or service reports before finalising their offer to purchase.
  5. THESE PARTICULARS ARE ISSUED IN GOOD FAITH BUT DO NOT CONSTITUTE REPRESENTATIONS OF FACT OR FORM PART OF ANY OFFER OR CONTRACT. THE MATTERS REFERRED TO IN THESE PARTICULARS SHOULD BE INDEPENDENTLY VERIFIED BY PROSPECTIVE BUYERS OR TENANTS. NEITHER AUCTION HOUSE NOR ANY OF ITS EMPLOYEES OR AGENTS HAS ANY AUTHORITY TO MAKE OR GIVE ANY REPRESENTATION OR WARRANTY WHATEVER IN RELATION TO THIS PROPERTY.