Auction House / South Yorkshire

  • For Sale By Unconditional Online Auction
  • Guide Price* : £110,000
  • Auction Ended 27/05/2025
  • Lot 49

Number 49 Balby Road, Doncaster, South Yorkshire, DN4 0RD

FOR SALE VIA NATIONAL ONLINE AUCTION ON MONDAY 23rd JUNE AT 1PM WITH AUCTIONHOUSE.CO.UK/SOUTHYORKSHIRE

Description

FOR SALE VIA NATIONAL ONLINE AUCTION ON MONDAY 23rd JUNE AT 1PM WITH AUCTIONHOUSE.CO.UK/SOUTHYORKSHIRE

For Sale by Auction is this 5-6 Bed Spacious HMO or Family Home in Balby, Doncaster.

This substantial and flexible terraced property in Balby presents an excellent opportunity for investors or those seeking a large family home. While it has been let to only three tenants (so no licence has been required), the property meets the criteria for six occupants and is ideally suited for continued HMO use — or equally adaptable as a 5-bedroom family residence.

Importantly, no structural alterations or conversion work is required. The existing layout naturally supports both uses. For instance, the ground-floor dining room has an en-suite shower room that is neatly tucked away and completely unobtrusive when used as a traditional reception space.

Key Features:
•{tab}6-bedroom HMO, or easily configured as a spacious 5-bed family home.
•{tab}All bedrooms are generous doubles, most with private En-Suite facilities.
•{tab}Recently rewired (approx. 8 years ago) to modern standards – including ample power outlets, LED lighting, and a new consumer unit.
•{tab}Efficient gas boiler, still under warranty.
•{tab}C-rated EPC, offering improved energy efficiency.
•{tab}Detached garage and large, secure rear garden with patio and mature landscaping.
•{tab}Full-height cellar with three large rooms – ideal for storage, hobbies, or workspace.
•{tab}Second floor includes a self-contained-style suite, adding to its flexibility.

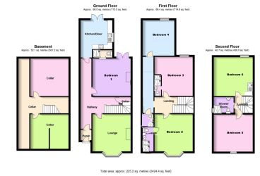
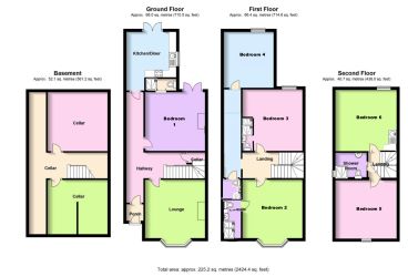
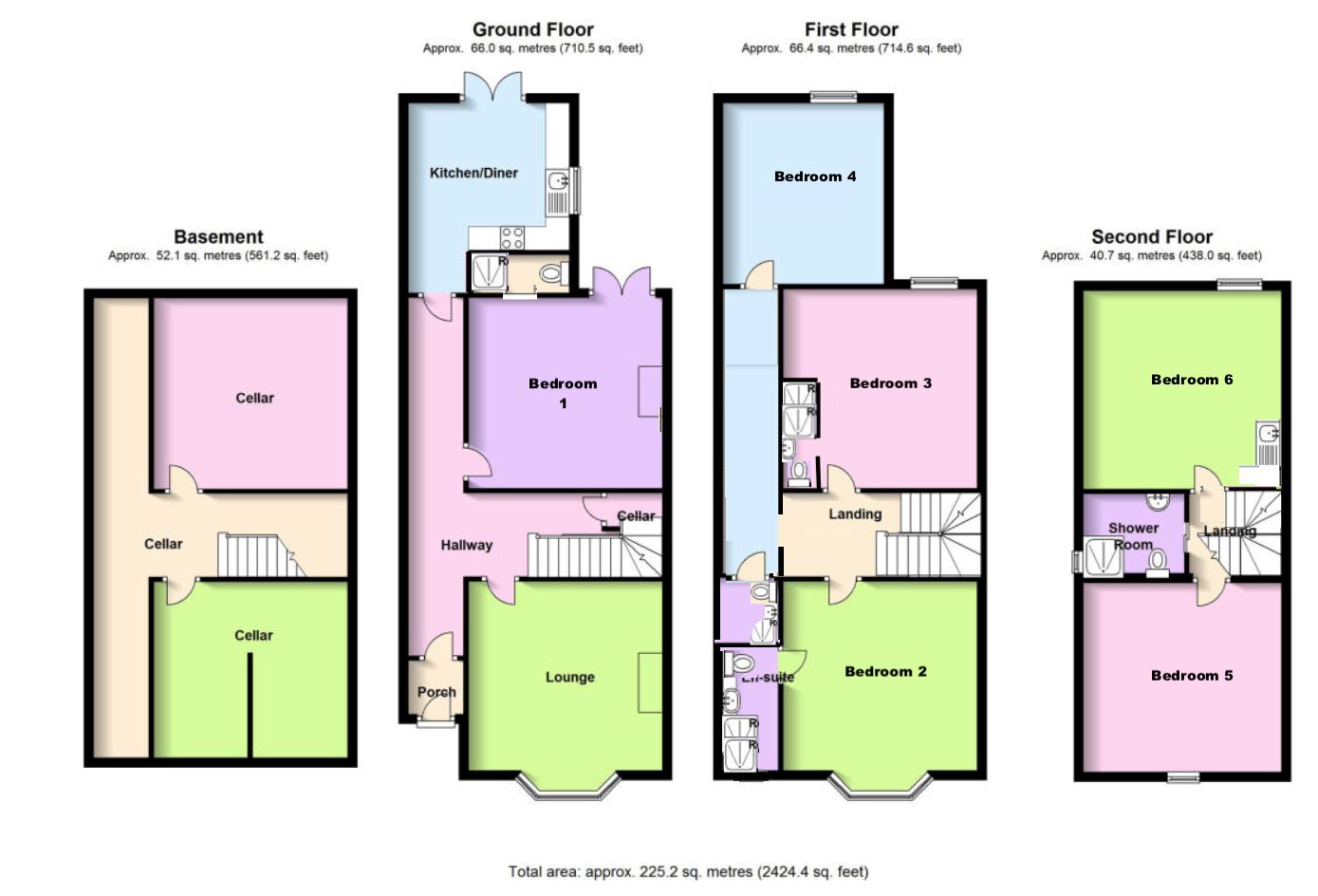
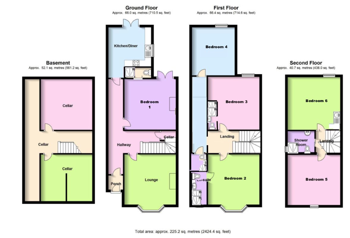
Accommodation Overview:
•{tab}Ground Floor: Entrance Hall, spacious Kitchen, Dining Room / Bedroom 6 (with discreet En-Suite), access to garden and garage.
•{tab}First Floor: Three large double Bedrooms, each with its own En-Suite Bathroom.
•{tab}Second Floor: Two further double Bedrooms with a shared Shower Room between them. One room is currently furnished as a Bedroom, the other as a private Sitting Room with a small kitchenette and sink — giving the floor the feel of a self-contained suite (ideal for a couple or independent occupant).
•{tab}Basement: Three large, full-height rooms – previously used as a photography studio and darkrooms, now offering exceptional storage or conversion potential (subject to permissions).
Location Benefits:
•{tab}Excellent access to Doncaster town centre, railway station, and college – all within walking distance.
•{tab}Close to local shops, supermarkets, pubs, and eateries.
•{tab}Well-served by frequent bus routes.
•{tab}Easy access to M18, A1, and M1 for commuters.
•{tab}Near major employers, including a large Amazon fulfilment centre.

Income & Investment Potential:
Based on letting as a 5-bedroom HMO setup, the estimated annual rental income is £31,200 (£120/week per room). However, with six usable double rooms, the realistic earning potential is higher, with no additional work required.

Legal Pack & Safety Certifications:
The legal pack is available via our website and includes all up-to-date safety documentation:
•{tab}Gas Safety Certificate
•{tab}Electrical Installation Condition Report (EICR)
•{tab}Emergency Lighting Certificate

Tenure: See Legal Pack

Important Notice to Prospective Buyers

We draw your attention to the Special Conditions of Sale within the Legal Pack, referring to other charges in addition to the purchase price which may become payable. Such costs may include Search Fees, reimbursement of Sellers costs and Legal Fees, and Transfer Fees amongst others.

Administration Charge

Administration Charge is a non-refundable £3,600 inc VAT payable on the fall of the virtual gavel.

Loading the bidding panel...

* Guide | £110,000
  • Terraced House
  • 6 Bedrooms
  • Unconditional (Immediate Exchange)

Call the team on 0114 223 0777 for more information

Disclaimer: The map preview provided above is for general guidance only and may not accurately reflect the exact location or surrounding buildings. Prospective buyers and interested parties are strongly advised to independently verify the precise location and surroundings before bidding.

Note

  1. MONEY LAUNDERING REGULATIONS: Intending purchasers will be asked to produce identification documentation at a later stage and we would ask for your co-operation in order that there will be no delay in agreeing the sale.
  2. General : While we endeavour to make our sales particulars fair, accurate and reliable, they are only a general guide to the property and, accordingly, if there is any point which is of particular importance to you, please contact the office and we will be pleased to check the position for you, especially if you are contemplating travelling some distance to view the property.
  3. Measurements: These approximate room sizes are only intended as general guidance. You must verify the dimensions carefully before ordering carpets or any built-in furniture.
  4. Services: Please note we have not tested the services or any of the equipment or appliances in this property, accordingly we strongly advise prospective buyers to commission their own survey or service reports before finalising their offer to purchase.
  5. THESE PARTICULARS ARE ISSUED IN GOOD FAITH BUT DO NOT CONSTITUTE REPRESENTATIONS OF FACT OR FORM PART OF ANY OFFER OR CONTRACT. THE MATTERS REFERRED TO IN THESE PARTICULARS SHOULD BE INDEPENDENTLY VERIFIED BY PROSPECTIVE BUYERS OR TENANTS. NEITHER AUCTION HOUSE NOR ANY OF ITS EMPLOYEES OR AGENTS HAS ANY AUTHORITY TO MAKE OR GIVE ANY REPRESENTATION OR WARRANTY WHATEVER IN RELATION TO THIS PROPERTY.