Auction House / South Yorkshire

  • For Sale By Unconditional Online Auction
  • Guide Price* : £10,000
  • Auction Ended 29/04/2025
  • Lot 16

35 Derwent Street Chopwell, Newcastle upon Tyne, Tyne and Wear, NE17 7HZ

Offered via online auction finishing 29th April . Register to bid at auctionhouse.co.uk/southyorkshire

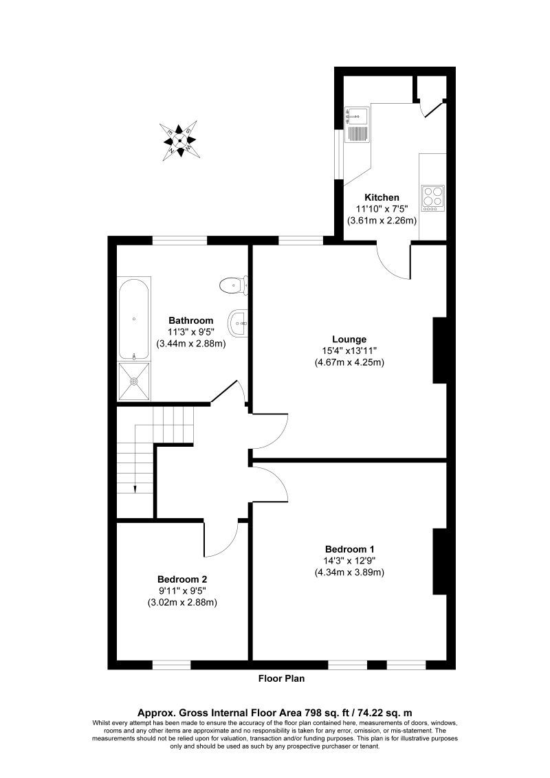
Description

Offered via online auction finishing 29th April . Register to bid at auctionhouse.co.uk/southyorkshire

FOR SALE VIA NATIONAL ONLINE AUCTION. BIDDING OPENS ON MONDAY 28th APRIL AT 1PM AND CLOSES TUESDAY 29TH APRIL FROM 1PM. REGISTER TO BID!

Auction House would like to present this two bedroom property located in Chopwell and offered to the market via online auction.

Comprising of its own access with stairs leading up to the apartment, with two bedrooms, a lounge, bathroom, kitchen, and a rear yard.

This property is in need of some renovations but provides an excellent investment property in a sought after rental area, with rents expected in the £500pcm region, an annual income of £6000.

Derwent Street is well located in the area of Chopwell, close to a range of local amentities, transport links, parks and walking spots.

Leasehold: 999 years from 11/06/2004, ground rent - peppercorn.
EPC Rating: C
Council Tax - A

Tenure: Leasehold

EPC Rating: C

Important Notice to Prospective Buyers

We draw your attention to the Special Conditions of Sale within the Legal Pack, referring to other charges in addition to the purchase price which may become payable. Such costs may include Search Fees, reimbursement of Sellers costs and Legal Fees, and Transfer Fees amongst others.

Administration Charge

Administration Charge is a non-refundable £3,600 inc VAT payable on the fall of the virtual gavel.

Loading the bidding panel...

* Guide | £10,000
  • Flat
  • 2 Bedrooms
  • Unconditional (Immediate Exchange)

Call the team on 0114 223 0777 for more information

Disclaimer: The map preview provided above is for general guidance only and may not accurately reflect the exact location or surrounding buildings. Prospective buyers and interested parties are strongly advised to independently verify the precise location and surroundings before bidding.

Note

  1. MONEY LAUNDERING REGULATIONS: Intending purchasers will be asked to produce identification documentation at a later stage and we would ask for your co-operation in order that there will be no delay in agreeing the sale.
  2. General : While we endeavour to make our sales particulars fair, accurate and reliable, they are only a general guide to the property and, accordingly, if there is any point which is of particular importance to you, please contact the office and we will be pleased to check the position for you, especially if you are contemplating travelling some distance to view the property.
  3. Measurements: These approximate room sizes are only intended as general guidance. You must verify the dimensions carefully before ordering carpets or any built-in furniture.
  4. Services: Please note we have not tested the services or any of the equipment or appliances in this property, accordingly we strongly advise prospective buyers to commission their own survey or service reports before finalising their offer to purchase.
  5. THESE PARTICULARS ARE ISSUED IN GOOD FAITH BUT DO NOT CONSTITUTE REPRESENTATIONS OF FACT OR FORM PART OF ANY OFFER OR CONTRACT. THE MATTERS REFERRED TO IN THESE PARTICULARS SHOULD BE INDEPENDENTLY VERIFIED BY PROSPECTIVE BUYERS OR TENANTS. NEITHER AUCTION HOUSE NOR ANY OF ITS EMPLOYEES OR AGENTS HAS ANY AUTHORITY TO MAKE OR GIVE ANY REPRESENTATION OR WARRANTY WHATEVER IN RELATION TO THIS PROPERTY.