Auction House / South Yorkshire

  • For Sale By Unconditional Online Auction
  • Guide Price* : £5,000
  • Auction Ended 29/04/2025
  • Lot 75

Flat 2, 2, 20 Kingsway Thurnscoe, Rotherham, South Yorkshire, S63 0TQ

FOR SALE VIA NATIONAL ONLINE AUCTION ON MONDAY 28th APRIL AT 1PM WITH AUCTIONHOUSE.CO.UK/SOUTHYORKSHIRE

Description

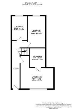
For sale by auction is this vacant two-bedroom ground-floor apartment, in need of improvement.

The property comprises an Entrance Hall, a Kitchen, two Bedrooms, a Bathroom and a Cellar.

Externally, there is a shared rear yard, and on-street parking available at the front of the property.

Once renovated, we expect an achievable rental income of £700pcm / £8,400 pa.

The property is located on Kingsway. Shopping amenities can be found locally within Thurnscoe Village. Public transport links are available at Thurnscoe Train Station to the east and Goldthorpe Train Station to the south along with a network of local bus services serving the surrounding areas. The property is served by road links including the A635 to the south and A1(M) to the east. Recreational pursuits can be found at Thurnscoe Sports Ground and Phoenix Park Thurnscoe, both lying to the east.

Tenure: See Legal Pack

Important Notice to Prospective Buyers

We draw your attention to the Special Conditions of Sale within the Legal Pack, referring to other charges in addition to the purchase price which may become payable. Such costs may include Search Fees, reimbursement of Sellers costs and Legal Fees, and Transfer Fees amongst others.

Administration Charge

Administration Charge is a non-refundable £3,600 inc VAT payable on the fall of the virtual gavel.

Loading the bidding panel...

* Guide | £5,000
  • 2 Bedrooms
  • Unconditional (Immediate Exchange)

Call the team on 0114 223 0777 for more information

Disclaimer: The map preview provided above is for general guidance only and may not accurately reflect the exact location or surrounding buildings. Prospective buyers and interested parties are strongly advised to independently verify the precise location and surroundings before bidding.

Note

  1. MONEY LAUNDERING REGULATIONS: Intending purchasers will be asked to produce identification documentation at a later stage and we would ask for your co-operation in order that there will be no delay in agreeing the sale.
  2. General : While we endeavour to make our sales particulars fair, accurate and reliable, they are only a general guide to the property and, accordingly, if there is any point which is of particular importance to you, please contact the office and we will be pleased to check the position for you, especially if you are contemplating travelling some distance to view the property.
  3. Measurements: These approximate room sizes are only intended as general guidance. You must verify the dimensions carefully before ordering carpets or any built-in furniture.
  4. Services: Please note we have not tested the services or any of the equipment or appliances in this property, accordingly we strongly advise prospective buyers to commission their own survey or service reports before finalising their offer to purchase.
  5. THESE PARTICULARS ARE ISSUED IN GOOD FAITH BUT DO NOT CONSTITUTE REPRESENTATIONS OF FACT OR FORM PART OF ANY OFFER OR CONTRACT. THE MATTERS REFERRED TO IN THESE PARTICULARS SHOULD BE INDEPENDENTLY VERIFIED BY PROSPECTIVE BUYERS OR TENANTS. NEITHER AUCTION HOUSE NOR ANY OF ITS EMPLOYEES OR AGENTS HAS ANY AUTHORITY TO MAKE OR GIVE ANY REPRESENTATION OR WARRANTY WHATEVER IN RELATION TO THIS PROPERTY.