Auction House / Hull & East Yorkshire

  • For Sale By Unconditional Online Auction
  • Guide Price* : £130,000
  • Auction Ended 22/04/2025
  • Lot 38

4 High Market Place, Kirkbymoorside, North Yorkshire, YO62 6AX

An excellent three-bedroom townhouse in the market town of Kirkbymoorside.

Viewing Details

Strictly by appointment with the auctioneers on 0845 400 9900.

Location

The property is situated in the market town of Kirkbymoorside, which offers a good range of local amenities, including a regular Wednesday market. Kirkbymoorside has a good range of local amenities, including doctors and dentists surgeries.

The renowned North York Moors National Park and Great Dalby Forest are only a short drive away. The ancient city of York and the coastal resorts of Scarborough and Whitby are easily commutable, as are the neighbouring market towns of Helmsley, Pickering and Malton. There are railway stations at Malton and Thirsk, and the town is on the Scarborough to Helmsley bus route.

Description

This spacious three-bedroom townhouse provides generous accommodation across three floors with the option to convert into two apartments (it was previously two flats - 1 x one-bed and 1 x three-bed). The property is presented in good condition with a modern kitchen and decor. It offers an excellent opportunity to anyone looking to start or expand a property investment portfolio (subject to improvement of the EPC rating), owner occupation or for use as a second home. Night storage heating and part double and secondary double glazing.

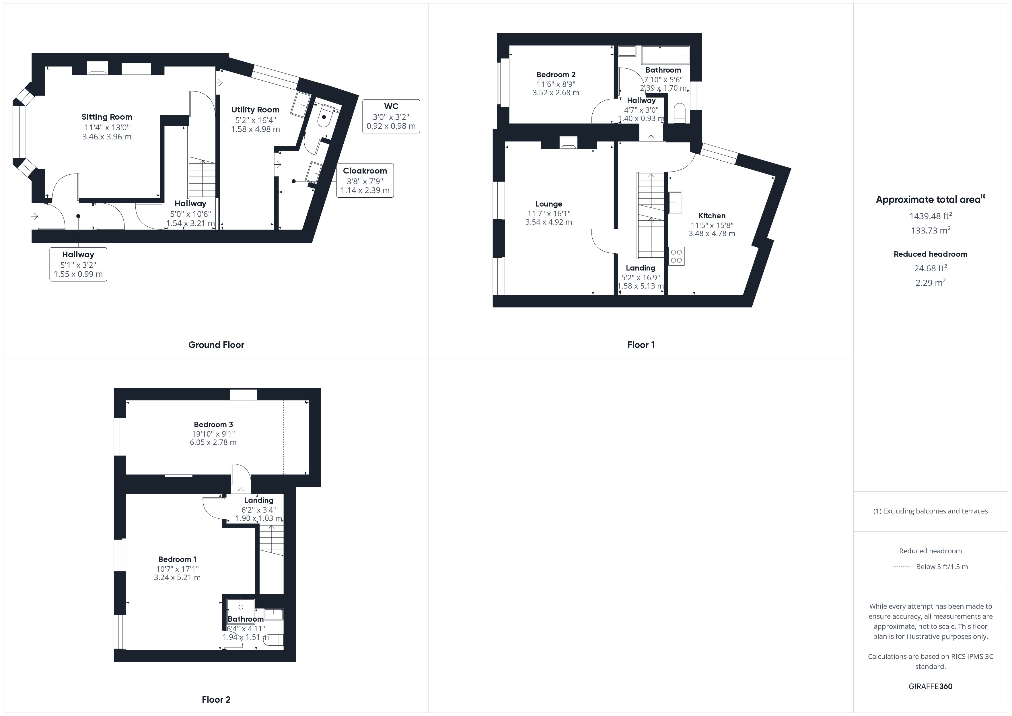
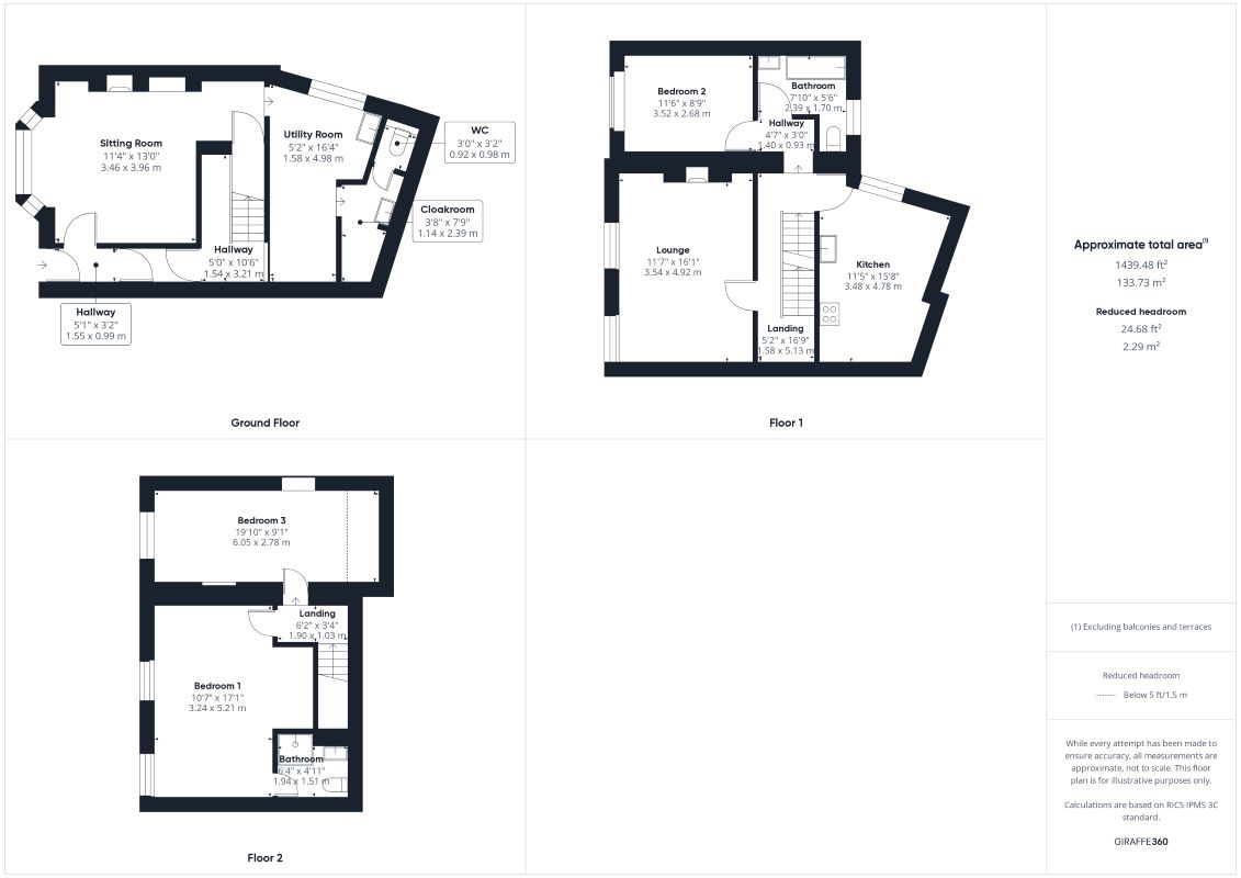
Accommodation

Ground Floor: Front entrance lobby, sitting room with steps leading down to a cellar, utility room, inner lobby, cloakroom, WC.

First Floor: Landing, sitting room, kitchen, family bathroom and Bedroom 2.

Second Floor: Bedroom 1 with en-suite shower room and Bedroom 3.

Exterior

There is no garden or off-street parking.

Tenure

We understand the property to be freehold. There is a flying freehold over the archway. Vacant possession on completion.

Note

Method of Sale

The property will be offered for sale by online auction with bidding commencing at 12.00 pm on Monday, 21st April 2025, and closing on Wednesday, 22nd April, at 1.00 pm. For further legal information relating to this lot, please go to auctionhouse.co.uk/hullandeastyorkshire.

Note

Conditions of Sale

The property will be sold subject to conditions of sale, copies of which will be available for inspection at the auctioneer’s offices, with the solicitors and online at auctionhouse.co.uk/hullandeastyorkshire prior to the date of the auction.

Note

Guide Price

Guides are provided as an indication of each sellers minimum expectation. They are not necessarily figures which a property will sell for and may change at any time prior to the auction. Each property will be offered subject to a Reserve (a figure below which the Auctioneer cannot sell the property during the auction), which we expect will be set within the Guide Range or no more than 10% above a single figure Guide.

Council Tax Band

D

Important Notice to Prospective Buyers

We draw your attention to the Special Conditions of Sale within the Legal Pack, referring to other charges in addition to the purchase price which may become payable. Such costs may include Search Fees, reimbursement of Sellers costs and Legal Fees, and Transfer Fees amongst others.

Buyers Premium

The purchaser will be required to pay a buyer’s premium of £600 (£500 + VAT) in addition to the purchase price of the property.

Administration Charge

The purchaser will be required to pay an administration charge of £1,200 (£1,000 plus VAT) in addition to the purchase price of the property.

Disbursements

Please see the legal pack for any disbursements listed that may become payable by the purchaser on completion.

Loading the bidding panel...

* Guide | £130,000
  • 3 Bedrooms
  • Tenure: We understand the property to be freehold. There is a flying freehold over the archway. Vacant possession on completion.
  • Unconditional (Immediate Exchange)

Call the team on 0845 400 9900 for more information

Related Documents

Disclaimer: The map preview provided above is for general guidance only and may not accurately reflect the exact location or surrounding buildings. Prospective buyers and interested parties are strongly advised to independently verify the precise location and surroundings before bidding.

Note

  1. MONEY LAUNDERING REGULATIONS: Intending purchasers will be asked to produce identification documentation at a later stage and we would ask for your co-operation in order that there will be no delay in agreeing the sale.
  2. General : While we endeavour to make our sales particulars fair, accurate and reliable, they are only a general guide to the property and, accordingly, if there is any point which is of particular importance to you, please contact the office and we will be pleased to check the position for you, especially if you are contemplating travelling some distance to view the property.
  3. Measurements: These approximate room sizes are only intended as general guidance. You must verify the dimensions carefully before ordering carpets or any built-in furniture.
  4. Services: Please note we have not tested the services or any of the equipment or appliances in this property, accordingly we strongly advise prospective buyers to commission their own survey or service reports before finalising their offer to purchase.
  5. THESE PARTICULARS ARE ISSUED IN GOOD FAITH BUT DO NOT CONSTITUTE REPRESENTATIONS OF FACT OR FORM PART OF ANY OFFER OR CONTRACT. THE MATTERS REFERRED TO IN THESE PARTICULARS SHOULD BE INDEPENDENTLY VERIFIED BY PROSPECTIVE BUYERS OR TENANTS. NEITHER AUCTION HOUSE NOR ANY OF ITS EMPLOYEES OR AGENTS HAS ANY AUTHORITY TO MAKE OR GIVE ANY REPRESENTATION OR WARRANTY WHATEVER IN RELATION TO THIS PROPERTY.