Auction House / East Anglia

  • For Sale By Unconditional Online Auction
  • Guide Price* : £70,000
  • Auction Ended 08/04/2025
  • Lot 25

Development Land Indigo Road, Stoke Ferry, Norfolk, PE33 9TJ

FOR SALE BY ONLINE AUCTION ON TUESDAY 8 APRIL 2025

Description

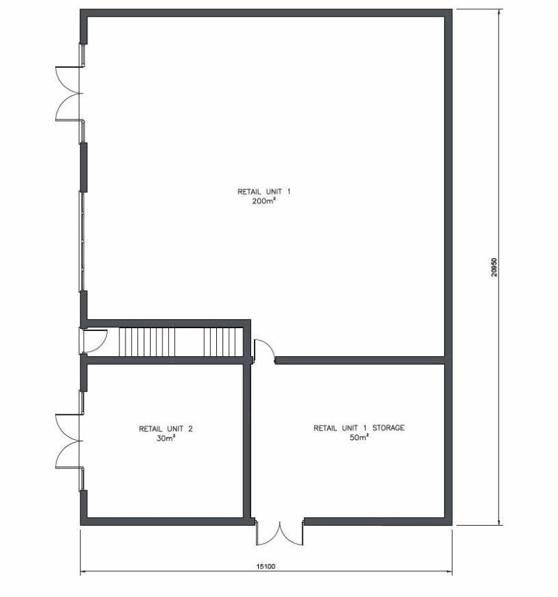
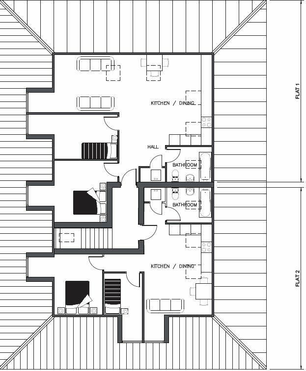
An opportunity to purchase a development site with planning for two retail units and two residential flats

A planning application has been granted for the construction of two retail units (with storage) plus associated parking and access and 2 x two bedroom flats to be held in association with the retail units.

Details can be found under planning reference number 23/00605/O via the Borough Council of Kings Lynn and West Norfolk planning portal. The land comprises approximately 0.34 acres of development land which is part hard standing. The land has a frontage of approx. 40m to Indigo Road and an average depth of approx. 20m.

The land is situated just off Furlong Road, on Indigo Road a small development of modern properties in the village of Stoke Ferry.

Development Site Planning for 2x retail units and 2x two bedroom flats
Viewing Any reasonable time during daylight hours. Prospective purchasers should note that no liability can be held against either the vendor or the Agents, Auction House East Anglia as Auctioneers, in respect of any viewing of the land. All persons viewing should be aware that they enter the site entirely at their own risk.

Tenure: Freehold

Important Notice to Prospective Buyers

We draw your attention to the Special Conditions of Sale within the Legal Pack, referring to other charges in addition to the purchase price which may become payable. Such costs may include Search Fees, reimbursement of Sellers costs and Legal Fees, and Transfer Fees amongst others.

Buyers Premium

£1500 inc VAT payable on exchange of contracts.

Administration Charge

Administration Charge is a non-refundable £1,200 inc VAT payable on the fall of the virtual gavel.

Loading the bidding panel...

* Guide | £70,000
  • Unconditional (Immediate Exchange)

Call the team on 01603 505 100 for more information

Disclaimer: The map preview provided above is for general guidance only and may not accurately reflect the exact location or surrounding buildings. Prospective buyers and interested parties are strongly advised to independently verify the precise location and surroundings before bidding.

Note

  1. MONEY LAUNDERING REGULATIONS: Intending purchasers will be asked to produce identification documentation at a later stage and we would ask for your co-operation in order that there will be no delay in agreeing the sale.
  2. General : While we endeavour to make our sales particulars fair, accurate and reliable, they are only a general guide to the property and, accordingly, if there is any point which is of particular importance to you, please contact the office and we will be pleased to check the position for you, especially if you are contemplating travelling some distance to view the property.
  3. Measurements: These approximate room sizes are only intended as general guidance. You must verify the dimensions carefully before ordering carpets or any built-in furniture.
  4. Services: Please note we have not tested the services or any of the equipment or appliances in this property, accordingly we strongly advise prospective buyers to commission their own survey or service reports before finalising their offer to purchase.
  5. THESE PARTICULARS ARE ISSUED IN GOOD FAITH BUT DO NOT CONSTITUTE REPRESENTATIONS OF FACT OR FORM PART OF ANY OFFER OR CONTRACT. THE MATTERS REFERRED TO IN THESE PARTICULARS SHOULD BE INDEPENDENTLY VERIFIED BY PROSPECTIVE BUYERS OR TENANTS. NEITHER AUCTION HOUSE NOR ANY OF ITS EMPLOYEES OR AGENTS HAS ANY AUTHORITY TO MAKE OR GIVE ANY REPRESENTATION OR WARRANTY WHATEVER IN RELATION TO THIS PROPERTY.