Auction House / Notts & Derby

  • For Sale By Unconditional Online Auction
  • Guide Price* : £100,000
  • Auction Ended 22/04/2025
  • Lot 2

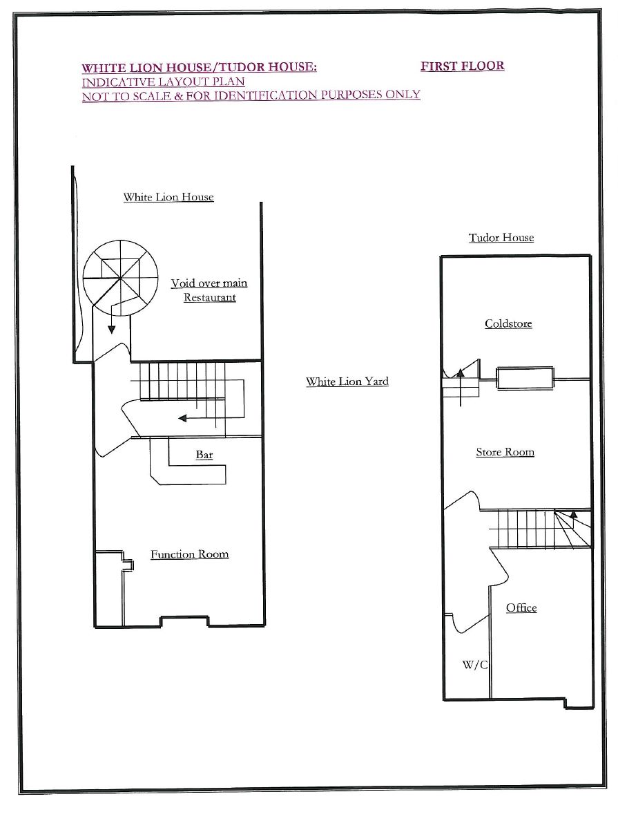
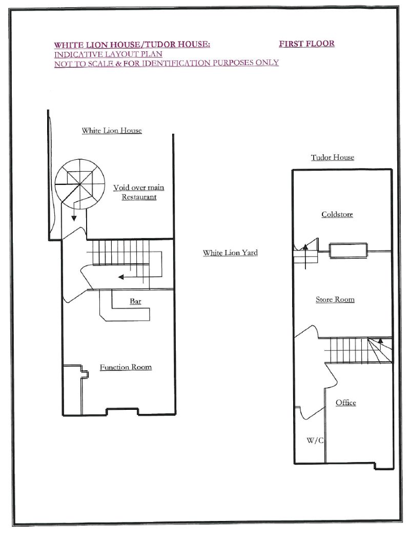
White Lion Yard Church Street, Mansfield, Nottinghamshire, NG18 1AF

Open House Viewing (no need to book)
Tuesday 8th April - 10.30-11.30am
Wednesday 16th April - 12-1pm
Thursday 17th April - 11:30 -12pm

Description

A Rare Opportunity to purchase this quirky vacant commercial premises comprising two separate buildings directly opposite one another with accommodation over three levels. Currently in a state of disrepair and will require some imagination to see the full potential of the site but would suit a refurbishment and continuing with the current use as commercial property or a change of use (subject to necessary consents) to residential apartments. or mixed use.

A brief history on the lot,
In the year 2000, an Elizabethan Cottage in the Heart of Mansfield and a numbers of caves were restored at White Lion Yard. The work in the cottage was achieved using the techniques of the 16th century. The White Lion Public House and all the external walls were repaired using stone to match the original. The refurbished caves housed a restaurant and visitor centre. There is a video on YouTube that covers the full restoration from inception to completion. Sadly the Yard has since fallen into disuse and is not accessible to the public.

Tenure: Freehold

EPC Rating: see legals

Important Notice to Prospective Buyers

We draw your attention to the Special Conditions of Sale within the Legal Pack, referring to other charges in addition to the purchase price which may become payable. Such costs may include Search Fees, reimbursement of Sellers costs and Legal Fees, and Transfer Fees amongst others.

Administration Charge

£3,600 inc vat payable upon the fall of the virtual gavel

Loading the bidding panel...

* Guide | £100,000
  • Unconditional (Immediate Exchange)

Call the team on 0115 777 8888 for more information

Disclaimer: The map preview provided above is for general guidance only and may not accurately reflect the exact location or surrounding buildings. Prospective buyers and interested parties are strongly advised to independently verify the precise location and surroundings before bidding.

Note

  1. MONEY LAUNDERING REGULATIONS: Intending purchasers will be asked to produce identification documentation at a later stage and we would ask for your co-operation in order that there will be no delay in agreeing the sale.
  2. General : While we endeavour to make our sales particulars fair, accurate and reliable, they are only a general guide to the property and, accordingly, if there is any point which is of particular importance to you, please contact the office and we will be pleased to check the position for you, especially if you are contemplating travelling some distance to view the property.
  3. Measurements: These approximate room sizes are only intended as general guidance. You must verify the dimensions carefully before ordering carpets or any built-in furniture.
  4. Services: Please note we have not tested the services or any of the equipment or appliances in this property, accordingly we strongly advise prospective buyers to commission their own survey or service reports before finalising their offer to purchase.
  5. THESE PARTICULARS ARE ISSUED IN GOOD FAITH BUT DO NOT CONSTITUTE REPRESENTATIONS OF FACT OR FORM PART OF ANY OFFER OR CONTRACT. THE MATTERS REFERRED TO IN THESE PARTICULARS SHOULD BE INDEPENDENTLY VERIFIED BY PROSPECTIVE BUYERS OR TENANTS. NEITHER AUCTION HOUSE NOR ANY OF ITS EMPLOYEES OR AGENTS HAS ANY AUTHORITY TO MAKE OR GIVE ANY REPRESENTATION OR WARRANTY WHATEVER IN RELATION TO THIS PROPERTY.