Auction House / Wales - Cardiff

  • For Sale By Unconditional Online Auction
  • Guide Price* : £45,000 - £55,000
  • Auction Ended 29/04/2025
  • Lot 4

6 Eastgate Street (CYM859958), Caernarfon, Gwynedd, LL55 1AG

FOR SALE VIA ONLINE UNCONDITIONAL AUCTION. BIDDING OPENS MONDAY 28TH APRIL & CLOSES TUESDAY 29TH APRIL.

Description

FOR SALE VIA ONLINE UNCONDITIONAL AUCTION. BIDDING OPENS MONDAY 28TH APRIL & CLOSES TUESDAY 29TH APRIL.

GREAT POTENTIAL DEVELOPMENT (STPP)
GRADE II LISTED STATUS
ICONIC TOWN CENTRE LOCATION
BLANK CANVASS OPPORTUNITY

Title Number: CYM859958
Cadw Records Ref Number: 26589
Guide Price: £45,000 - £55,000 (Plus Fees)

Centrally located, this substantial premises boasts a multi floor footprint with plenty of scope to bring back to life in the heart of Caernarfon Town Centre. You are only a whisker away from the infamous Castell Caernarfon and Menai Straights waterfront, surrounded by local businesses and beyond which makes the town a real hit during all times of the year.

Caernarfon itself has over the years become a hotspot to outdoor enthusiasts who want to explore the Menai Straights as well as Eryri (Snowdonia) and beyond.

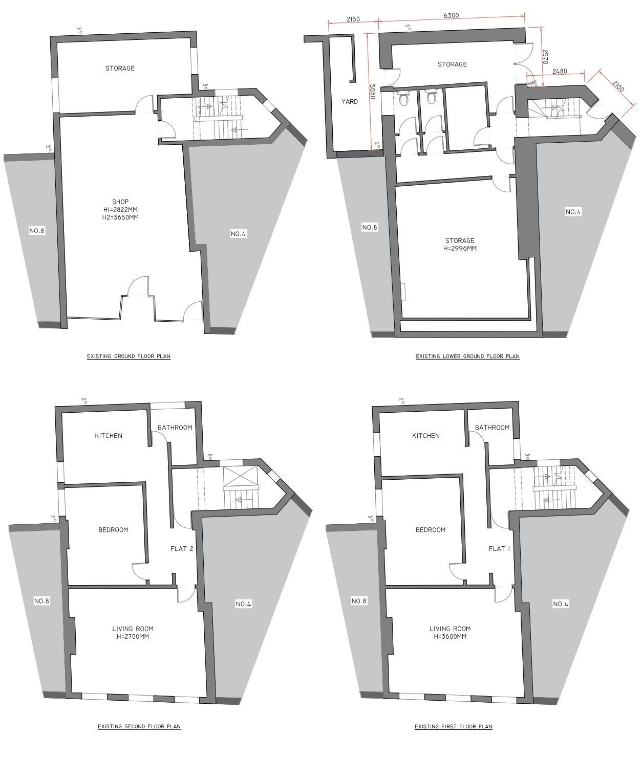
DEVELOPMENT The property has had drawings put together to configure into FOUR flats. This would be subject to consent and permissions. The drawings will be added to the legal pack.

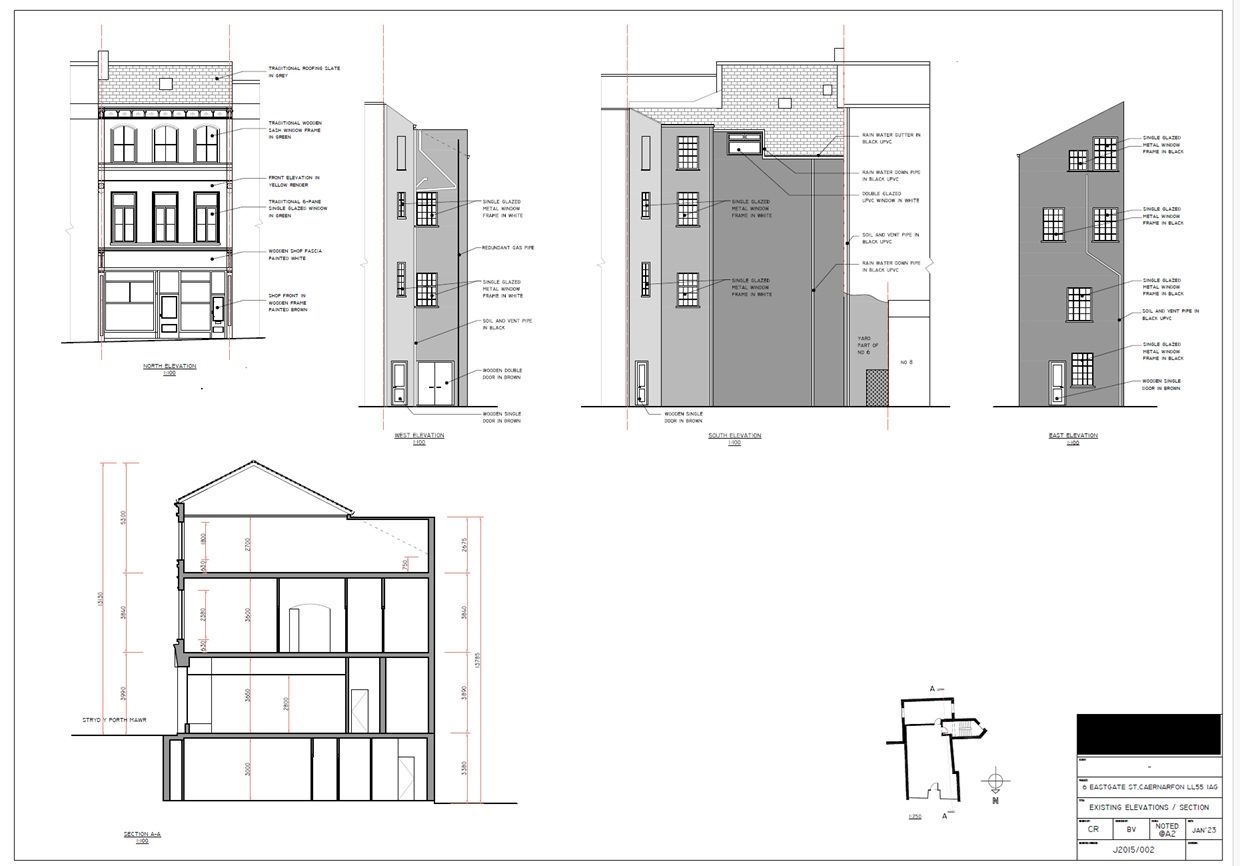
NOTE: The property has extremely limited access so any internal inspections may only be possible to the ground floor of the building. No member of Auction House has internally inspected the property at this stage.

ROOM LIST - Any Floor plan and measurements are for indicative purposes. Please conduct further due diligence as required.

PLEASE NOTE No appliances have been tested by Auction House. Any measurements are approximate. We recommend any would be bidders conduct their own due diligence in good time prior to the auction taking place.

IMPORTANT INFORMATION Buying at auction is a contractual commitment, you are legally obliged to buy the lot on the terms of the sale memorandum at the price you bid. If you are the successful bidder, you are required to pay the deposit and auction fees immediately. As agent for the seller, we treat any failure to satisfy your obligations as your repudiation of the contract and the seller may then have a claim against you for breach of contract. You must not bid unless you wish to be bound by the common conditions of auction.

Any purchasers choosing to buy without viewing in person are doing so at their own risk and acknowledge that the auctioneer will not be held responsible for any issues that may arise due to them being unintentionally missed from the video or sales particulars.

Tenure: Freehold

Lot Type

Redevelopment

Important Notice to Prospective Buyers

We draw your attention to the Special Conditions of Sale within the Legal Pack, referring to other charges in addition to the purchase price which may become payable. Such costs may include Search Fees, reimbursement of Sellers costs and Legal Fees, and Transfer Fees amongst others.

Buyers Premium

£1800 inc VAT payable on exchange of contracts.

Administration Charge

£1200 inc VAT payable on exchange of contracts.

Disbursements

Please see the legal pack for any disbursements listed that may become payable by the purchaser on completion.

Loading the bidding panel...

* Guide | £45,000 - £55,000
  • Unconditional (Immediate Exchange)

Call the team on 02920 475 184 for more information

Disclaimer: The map preview provided above is for general guidance only and may not accurately reflect the exact location or surrounding buildings. Prospective buyers and interested parties are strongly advised to independently verify the precise location and surroundings before bidding.

Note

  1. MONEY LAUNDERING REGULATIONS: Intending purchasers will be asked to produce identification documentation at a later stage and we would ask for your co-operation in order that there will be no delay in agreeing the sale.
  2. General : While we endeavour to make our sales particulars fair, accurate and reliable, they are only a general guide to the property and, accordingly, if there is any point which is of particular importance to you, please contact the office and we will be pleased to check the position for you, especially if you are contemplating travelling some distance to view the property.
  3. Measurements: These approximate room sizes are only intended as general guidance. You must verify the dimensions carefully before ordering carpets or any built-in furniture.
  4. Services: Please note we have not tested the services or any of the equipment or appliances in this property, accordingly we strongly advise prospective buyers to commission their own survey or service reports before finalising their offer to purchase.
  5. THESE PARTICULARS ARE ISSUED IN GOOD FAITH BUT DO NOT CONSTITUTE REPRESENTATIONS OF FACT OR FORM PART OF ANY OFFER OR CONTRACT. THE MATTERS REFERRED TO IN THESE PARTICULARS SHOULD BE INDEPENDENTLY VERIFIED BY PROSPECTIVE BUYERS OR TENANTS. NEITHER AUCTION HOUSE NOR ANY OF ITS EMPLOYEES OR AGENTS HAS ANY AUTHORITY TO MAKE OR GIVE ANY REPRESENTATION OR WARRANTY WHATEVER IN RELATION TO THIS PROPERTY.