Auction House / South Yorkshire

  • For Sale By Unconditional Online Auction
  • Guide Price* : £5,000
  • Auction Ended 01/04/2025
  • Lot 35

16 Elizabeth Street Goldthorpe, Rotherham, South Yorkshire, S63 9NA

Two Bed House Near to the Town Centre Benefitting From A Partial Refurb.
The property benefits from a recent full rewire, re plastered, new fitted bathroom / water main

Description

OPEN HOUSE VIEWING (NO NEED TO BOOK) Wednesday 26th March at 2pm until 2.30pm

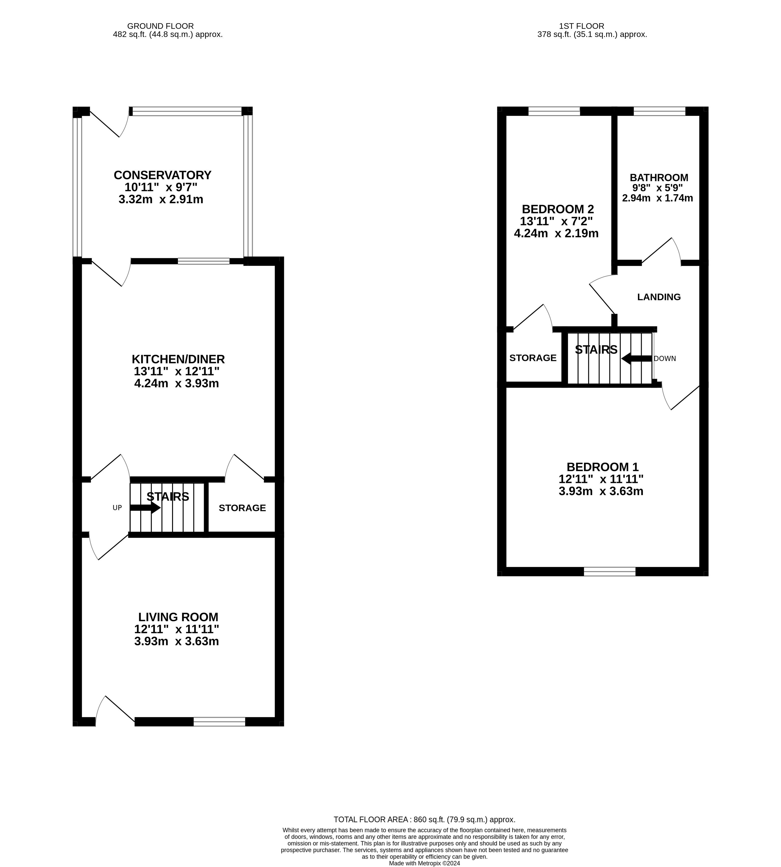
The property compromises of a Living Room, a spacious Kitchen-Diner, and a Conservatory to the ground floor. On the first floor is a large double Bedroom, a single Bedroom and a Bathroom.

Externally there is on-street parking available at the front of the property. To the rear is an enclosed garden, with a garage space in need of repair.

Once renovated, the rental income is expected at £750 per calendar month / £9,000 per annum.

The property is conveniently situated a stones throw from Goldthorpe high street and all the amenities, shops and cafes it offers, as well as having great transport links, and close to local schools.

Tenure: Freehold

EPC Rating: C

Important Notice to Prospective Buyers

We draw your attention to the Special Conditions of Sale within the Legal Pack, referring to other charges in addition to the purchase price which may become payable. Such costs may include Search Fees, reimbursement of Sellers costs and Legal Fees, and Transfer Fees amongst others.

Administration Charge

£3,600 inc vat payable upon the fall of the virtual gavel

Loading the bidding panel...

* Guide | £5,000
  • 2 Bedrooms
  • Unconditional (Immediate Exchange)

Call the team on 0114 223 0777 for more information

Disclaimer: The map preview provided above is for general guidance only and may not accurately reflect the exact location or surrounding buildings. Prospective buyers and interested parties are strongly advised to independently verify the precise location and surroundings before bidding.

Note

  1. MONEY LAUNDERING REGULATIONS: Intending purchasers will be asked to produce identification documentation at a later stage and we would ask for your co-operation in order that there will be no delay in agreeing the sale.
  2. General : While we endeavour to make our sales particulars fair, accurate and reliable, they are only a general guide to the property and, accordingly, if there is any point which is of particular importance to you, please contact the office and we will be pleased to check the position for you, especially if you are contemplating travelling some distance to view the property.
  3. Measurements: These approximate room sizes are only intended as general guidance. You must verify the dimensions carefully before ordering carpets or any built-in furniture.
  4. Services: Please note we have not tested the services or any of the equipment or appliances in this property, accordingly we strongly advise prospective buyers to commission their own survey or service reports before finalising their offer to purchase.
  5. THESE PARTICULARS ARE ISSUED IN GOOD FAITH BUT DO NOT CONSTITUTE REPRESENTATIONS OF FACT OR FORM PART OF ANY OFFER OR CONTRACT. THE MATTERS REFERRED TO IN THESE PARTICULARS SHOULD BE INDEPENDENTLY VERIFIED BY PROSPECTIVE BUYERS OR TENANTS. NEITHER AUCTION HOUSE NOR ANY OF ITS EMPLOYEES OR AGENTS HAS ANY AUTHORITY TO MAKE OR GIVE ANY REPRESENTATION OR WARRANTY WHATEVER IN RELATION TO THIS PROPERTY.