Auction House / Sussex & Hampshire

  • For Sale By Unconditional Online Auction
  • Guide Price* : £70,000
  • Auction Ended 01/04/2025
  • Lot 13

Lower Ground Floor Flat, 4 Aldborough Road, St. Leonards-on-Sea, East Sussex, TN37 6SE

Description

Leasehold converted lower ground floor flat, within a terrace of Victorian properties - comprising, living room, kitchen, bedroom and bathroom.

*Please note the rear garden is excluded from the property*

Situation
The property is located within walking distance of local shops & amenities and within easy access of Hastings and St Leonards town centres, with the mainline railway station offering connections to London.

Location Pin (What3Words): sheets.frozen.lunch
https://w3w.co/sheets.frozen.lunch

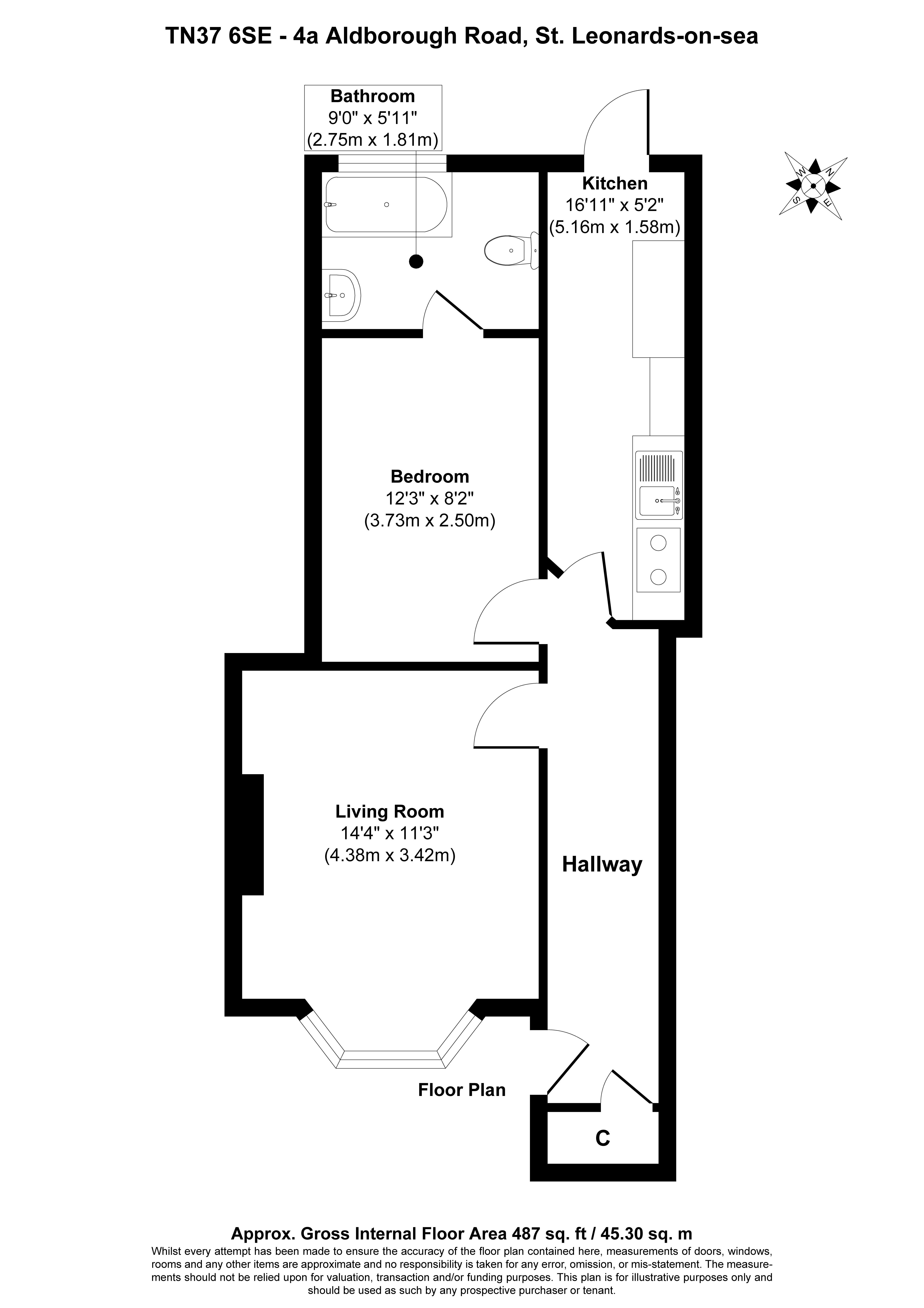
Accommodation
Hallway
Living Room - 4.38 x 3.42
Kitchen - 5.16 x 1.58
Bedroom - 3.73 x 2.50
Bathroom - 2.75 x 1.81

Total Floor Area - 45.30 sq.m.

NB WE DRAW YOUR ATTENTION TO THE SPECIAL CONDITIONS IN THE LEGAL PACK, REFERRING TO BUYERS PREMIUM OF £1,200 (INC VAT) AND OTHER CHARGES IN ADDITION TO THE PURCHASE PRICE. PLEASE ENSURE YOU READ THE SPECIAL CONDITIONS THOROUGHLY

Tenure
Leasehold - 99 years from 27th March 1988 (approximately 62 years remaining).
Ground Rent: £20/£75/£120 rising every 33 years

Council Tax - Band A

Important Notice to Prospective Buyers

We draw your attention to the Special Conditions of Sale within the Legal Pack, referring to other charges in addition to the purchase price which may become payable. Such costs may include Search Fees, reimbursement of Sellers costs and Legal Fees, and Transfer Fees amongst others.

Buyers Premium

Buyers Premium - £1,200 (inc VAT)

Administration Charge

Admin Fee - £1,500 (inc VAT)

Loading the bidding panel...

* Guide | £70,000
  • Unconditional (Immediate Exchange)

Call the team on 01273 201989 for more information

Disclaimer: The map preview provided above is for general guidance only and may not accurately reflect the exact location or surrounding buildings. Prospective buyers and interested parties are strongly advised to independently verify the precise location and surroundings before bidding.

Note

  1. MONEY LAUNDERING REGULATIONS: Intending purchasers will be asked to produce identification documentation at a later stage and we would ask for your co-operation in order that there will be no delay in agreeing the sale.
  2. General : While we endeavour to make our sales particulars fair, accurate and reliable, they are only a general guide to the property and, accordingly, if there is any point which is of particular importance to you, please contact the office and we will be pleased to check the position for you, especially if you are contemplating travelling some distance to view the property.
  3. Measurements: These approximate room sizes are only intended as general guidance. You must verify the dimensions carefully before ordering carpets or any built-in furniture.
  4. Services: Please note we have not tested the services or any of the equipment or appliances in this property, accordingly we strongly advise prospective buyers to commission their own survey or service reports before finalising their offer to purchase.
  5. THESE PARTICULARS ARE ISSUED IN GOOD FAITH BUT DO NOT CONSTITUTE REPRESENTATIONS OF FACT OR FORM PART OF ANY OFFER OR CONTRACT. THE MATTERS REFERRED TO IN THESE PARTICULARS SHOULD BE INDEPENDENTLY VERIFIED BY PROSPECTIVE BUYERS OR TENANTS. NEITHER AUCTION HOUSE NOR ANY OF ITS EMPLOYEES OR AGENTS HAS ANY AUTHORITY TO MAKE OR GIVE ANY REPRESENTATION OR WARRANTY WHATEVER IN RELATION TO THIS PROPERTY.