Auction House / North West

  • For Sale By Unconditional Online Auction
  • Guide Price* : £1
  • Auction Ended 24/03/2025
  • Lot 20

Land at Sycamore Way, Teddington, Middlesex, TW11 9QQ

National Online Auction 24th - 25th March

Description

National Online Auction 24th - 25th March

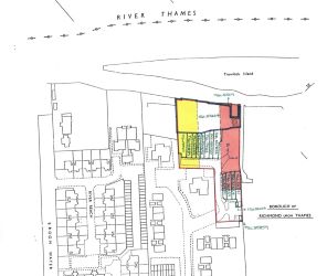
Two Freehold Plots of Land - Parking Area, Road & Thames River Bank – Approx. 0.17 Ha / 0.42 Acres
- May Suit Variety of Uses And/or Speculative Development (STP)

Two freehold plots of land and road extending to approximately 0.17 Ha / 0.42 acres

Mainly comprising the road and parking areas of Sycamore Way but also includes grassland and a plot of land / banking / section of River Thames, opposite Trowlock Island..

The plots would appear to suit a variety of uses including amenity uses, parking, gardens etc and small scale speculative infill development subject to the required consents being obtained.

All interested parties are advised to consult with Richmond Upon Thames Council with regard to their intended use prior to bidding.

Please refer to the legal pack for title plan.

Tenure: Freehold
Title number: SGL160735
Length of Lease/Term:
Ground Rent : £
Service Charge: £
Council Tax Band :
Local Authority: Richmond Upon Thames

Finance is available on this lot. For a decision-in-principle visit togethermoney.com/amydip/

IMPORTANT INFORMATION Buying at auction is a contractual commitment, you are legally obliged to buy the lot on the terms of the sale memorandum at the price you bid. If you are the successful bidder, you are required to pay the deposit and auction fees immediately. As agent for the seller, we treat any failure to satisfy your obligations as your repudiation of the contract and the seller may then have a claim against you for breach of contract. You must not bid unless you wish to be bound by the common conditions of auction.
ANTI-MONEY LAUNDERING REGULATIONS In accordance with Anti-Money Laundering Regulations, two forms of identification and confirmation of the source of funding will be required from the successful purchaser. Every effort has been made to confirm the accuracy of the lot details including any defect in the title both with the vendor and their solicitor. Auction House will not be held responsible for any failure to disclose any such defects.

Any purchasers choosing to buy without viewing in person are doing so at their own risk and acknowledge that the auctioneer will not be held responsible for any issues that may arise due to them being unintentionally missed from the video or sales particulars.

Please refer to legal pack for additional fees and the Auction Information document for guidance prior to bidding.

Tenure: Freehold

Important Notice to Prospective Buyers

We draw your attention to the Special Conditions of Sale within the Legal Pack, referring to other charges in addition to the purchase price which may become payable. Such costs may include Search Fees, reimbursement of Sellers costs and Legal Fees, and Transfer Fees amongst others.

Administration Charge

2.5% inc VAT of the purchase price, subject to a minimum of £1980 inc VAT, payable on exchange of contracts.

Loading the bidding panel...

* Guide | £1
  • Land
  • Unconditional (Immediate Exchange)

Call the team on 01772 772450 for more information

Disclaimer: The map preview provided above is for general guidance only and may not accurately reflect the exact location or surrounding buildings. Prospective buyers and interested parties are strongly advised to independently verify the precise location and surroundings before bidding.

Note

  1. MONEY LAUNDERING REGULATIONS: Intending purchasers will be asked to produce identification documentation at a later stage and we would ask for your co-operation in order that there will be no delay in agreeing the sale.
  2. General : While we endeavour to make our sales particulars fair, accurate and reliable, they are only a general guide to the property and, accordingly, if there is any point which is of particular importance to you, please contact the office and we will be pleased to check the position for you, especially if you are contemplating travelling some distance to view the property.
  3. Measurements: These approximate room sizes are only intended as general guidance. You must verify the dimensions carefully before ordering carpets or any built-in furniture.
  4. Services: Please note we have not tested the services or any of the equipment or appliances in this property, accordingly we strongly advise prospective buyers to commission their own survey or service reports before finalising their offer to purchase.
  5. THESE PARTICULARS ARE ISSUED IN GOOD FAITH BUT DO NOT CONSTITUTE REPRESENTATIONS OF FACT OR FORM PART OF ANY OFFER OR CONTRACT. THE MATTERS REFERRED TO IN THESE PARTICULARS SHOULD BE INDEPENDENTLY VERIFIED BY PROSPECTIVE BUYERS OR TENANTS. NEITHER AUCTION HOUSE NOR ANY OF ITS EMPLOYEES OR AGENTS HAS ANY AUTHORITY TO MAKE OR GIVE ANY REPRESENTATION OR WARRANTY WHATEVER IN RELATION TO THIS PROPERTY.