Auction House / Lincolnshire

  • For Sale By Unconditional Online Auction
  • Guide Price* : £30,000
  • Auction Ended 18/03/2025
  • Lot 26

121 High Street, Boston, Lincolnshire, PE21 8TJ

*ONLINE Unconditional Auction Opening 30 June 2025*
To register for the legal pack and bidding, please visit our website: auctionhouse.co.uk/lincolnshire

Description

*ONLINE Unconditional Auction Opening 30 June 2025*
To register for the legal pack and bidding, please visit our website: auctionhouse.co.uk/lincolnshire

Situation:
The property is situate in a prominent position on High Street, Boston, a popular and busy market town, with a wide range of facilities and amenities. The property is within easy reach of the town centre, and Boston itself has a hugely diverse population with significant transport links to surrounding areas.

Description:
A traditionally constructed, Grade II Listed, 3 storey, 3 bedroom mid terrace property, offering versatile and well proportioned living accommodation. The property offers significant scope to renovate to a high standard and add value, along with there being a strong rental demand in the local area, with rents of £900 pcm achievable (£10,800 per annum) based on comparable evidence. There is also potential to convert to a HMO (Subject to Planning & LBC), with 5 bedrooms generating up to £500 per week (£26,000 per annum).

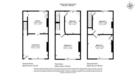
Accommodation Ground Floor
Living Room
Dining Kitchen

First Floor
Bedroom 1
Family Bathroom

Second Floor
Bedroom 2
Bedroom 3

Outside
Enclosed rear courtyard.
Material Information Tenure:
The property is freehold. All prospective bidders should satisfy themselves of the tenure by inspecting the legal pack.

Council Tax:
The property falls within Boston Council – no band has been found, we therefore recommend enquiring directly with the local authority.

Possession:
Vacant possession will be given upon completion.

Viewing:
Strictly by appointment with Auction House.

Services:
Prospective purchasers are advised to make their own enquiries of the relevant statutory authorities. NB: Services, Apparatus and Equipment have not been tested by Auction House and therefore cannot be verified as being in working order. The buyer is advised to obtain verification from their Solicitor/Surveyor.

These particulars are believed to be correct but their accuracy is not guaranteed and they do not form any part of any contract. Information relating to Rating and Town and Country Planning matters has been obtained by verbal enquiry only. Prospective purchasers are advised to make their own enquiries of the appropriate Authority. All measurements, areas and distances are approximate only. Potential purchasers are advised to check them.

Tenure: Freehold

EPC Rating: G

EPC Rating

G

Important Notice to Prospective Buyers

We draw your attention to the Special Conditions of Sale within the Legal Pack, referring to other charges in addition to the purchase price which may become payable. Such costs may include Search Fees, reimbursement of Sellers costs and Legal Fees, and Transfer Fees amongst others.

Administration Charge

Non-refundable £3,600 inc VAT payable on the fall of the virtual gavel.

Disbursements

Please see the legal pack for any disbursements listed that may become payable by the purchaser on completion.

Loading the bidding panel...

* Guide | £30,000
  • Terraced House
  • 3 Bedrooms
  • Unconditional (Immediate Exchange)

Call the team on 01427 616436 for more information

Disclaimer: The map preview provided above is for general guidance only and may not accurately reflect the exact location or surrounding buildings. Prospective buyers and interested parties are strongly advised to independently verify the precise location and surroundings before bidding.

Note

  1. MONEY LAUNDERING REGULATIONS: Intending purchasers will be asked to produce identification documentation at a later stage and we would ask for your co-operation in order that there will be no delay in agreeing the sale.
  2. General : While we endeavour to make our sales particulars fair, accurate and reliable, they are only a general guide to the property and, accordingly, if there is any point which is of particular importance to you, please contact the office and we will be pleased to check the position for you, especially if you are contemplating travelling some distance to view the property.
  3. Measurements: These approximate room sizes are only intended as general guidance. You must verify the dimensions carefully before ordering carpets or any built-in furniture.
  4. Services: Please note we have not tested the services or any of the equipment or appliances in this property, accordingly we strongly advise prospective buyers to commission their own survey or service reports before finalising their offer to purchase.
  5. THESE PARTICULARS ARE ISSUED IN GOOD FAITH BUT DO NOT CONSTITUTE REPRESENTATIONS OF FACT OR FORM PART OF ANY OFFER OR CONTRACT. THE MATTERS REFERRED TO IN THESE PARTICULARS SHOULD BE INDEPENDENTLY VERIFIED BY PROSPECTIVE BUYERS OR TENANTS. NEITHER AUCTION HOUSE NOR ANY OF ITS EMPLOYEES OR AGENTS HAS ANY AUTHORITY TO MAKE OR GIVE ANY REPRESENTATION OR WARRANTY WHATEVER IN RELATION TO THIS PROPERTY.