Auction House / East Anglia

  • For Sale By Unconditional Online Auction
  • Guide Price* : £165,000
  • Auction Ended 25/02/2025
  • Lot 33

35 Sandwich Close, Braintree, Essex, CM7 5RZ

FOR SALE BY ONLINE AUCTION ON TUESDAY 25TH FEBRUARY 2025. TO REGISTER FOR LEGAL PACKS AND BIDDING INSTRUCTIONS PLEASE VISIT OUR WEBSITE

Description

FOR SALE BY ONLINE AUCTION ON TUESDAY 25TH FEBRUARY 2025. TO REGISTER FOR LEGAL PACKS AND BIDDING INSTRUCTIONS PLEASE VISIT OUR WEBSITE

Freehold three bedroom terraced house with garage and parking at rear

A mid terraced family house which requires improvement. The property offers three bedrooms and a family bathroom to the first floor and a lounge and good sized kitchen/diner on the ground floor.
There are front and rear gardens and garage and additional car parking space behind the rear garden.
Presently the front and rear walls are overrun with ivy growth.

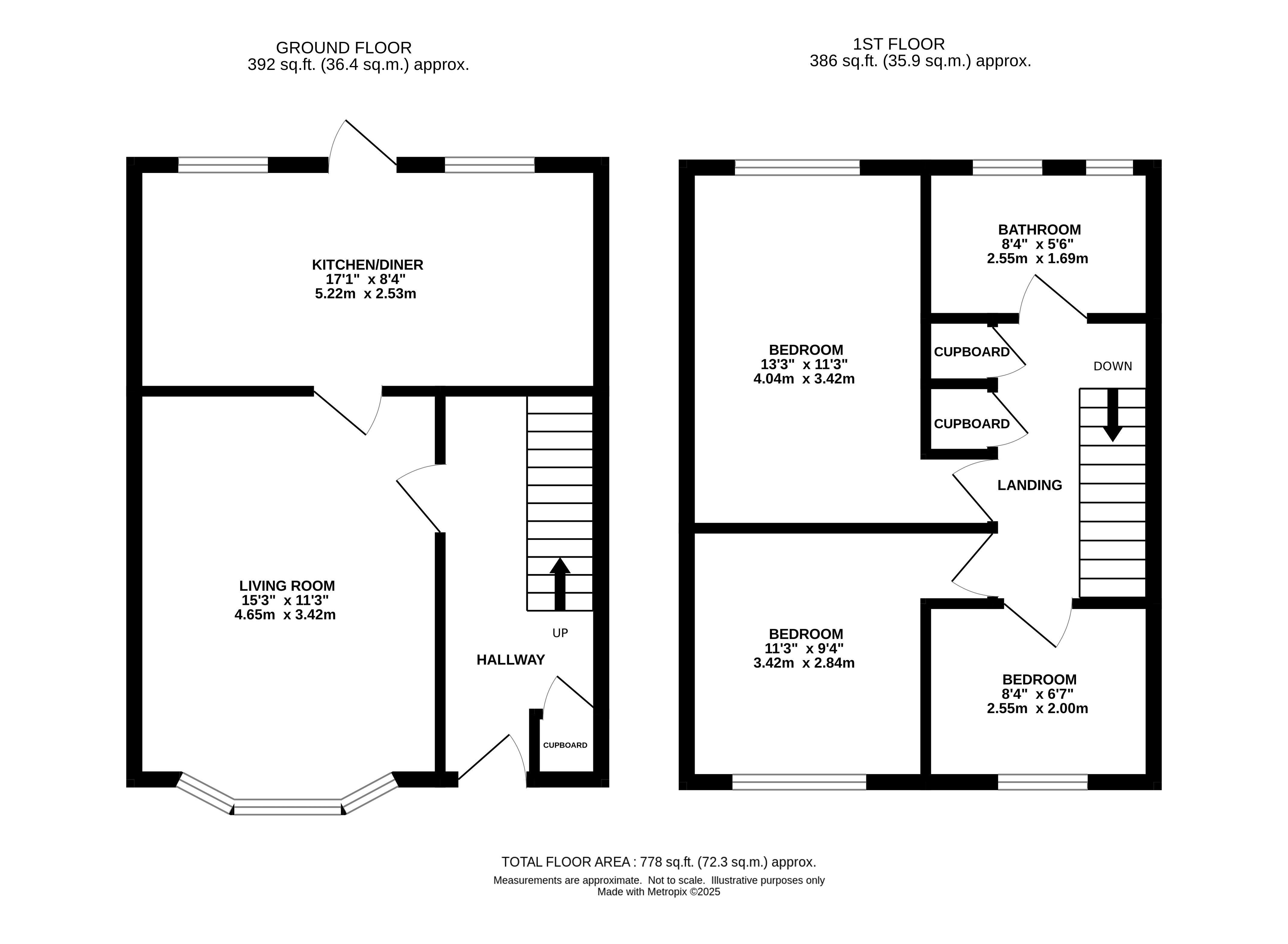
Ground Floor Front Entrance Door
Entrance Hall with doors off to:
Lounge 13'3" x 11'3"
Kitchen/Diner 17'1" x 8'4"
First Floor Landing with doors off to:
Bedroom 1 13'3" x 11' 3"
Bedroom 2 11'3" x 9'4"
Bedroom 3 8'4" x 6'7"
Bathroom/WC 8'4" x 5'6"
Externally Front Garden Open Plan - currently overgrown
Rear Garden Decent size accessed via rear gate
Garage at Rear
Car parking space at rear
Auctioneers Note ALL VIEWINGS OF THIS PROPERTY ARE AT VIEWERS OWN RISK
The property is dark due to ivy growth and curtains preventing natural light from entering the property.
Care should be taken when in the property. We would recommend viewers bring their own torch.
Council Tax Band
Viewings Upcoming viewing dates:
Thursday 6th February: 12 noon
Tuesday 11th February 14:30pm
Monday 17th February: 11:00am
Thursday 20th February: 14:00pm CANCELLED
Monday 3rd March: 13:00pm

Tenure: Freehold

EPC Rating: F

Important Notice to Prospective Buyers

We draw your attention to the Special Conditions of Sale within the Legal Pack, referring to other charges in addition to the purchase price which may become payable. Such costs may include Search Fees, reimbursement of Sellers costs and Legal Fees, and Transfer Fees amongst others.

Buyers Premium

£1500 inc VAT payable on exchange of contracts.

Administration Charge

Administration Charge is a non-refundable £1,200 inc VAT payable on the fall of the virtual gavel.

Loading the bidding panel...

* Guide | £165,000
  • 3 Bedrooms
  • Unconditional (Immediate Exchange)

Call the team on 01603 505 100 for more information

Disclaimer: The map preview provided above is for general guidance only and may not accurately reflect the exact location or surrounding buildings. Prospective buyers and interested parties are strongly advised to independently verify the precise location and surroundings before bidding.

Note

  1. MONEY LAUNDERING REGULATIONS: Intending purchasers will be asked to produce identification documentation at a later stage and we would ask for your co-operation in order that there will be no delay in agreeing the sale.
  2. General : While we endeavour to make our sales particulars fair, accurate and reliable, they are only a general guide to the property and, accordingly, if there is any point which is of particular importance to you, please contact the office and we will be pleased to check the position for you, especially if you are contemplating travelling some distance to view the property.
  3. Measurements: These approximate room sizes are only intended as general guidance. You must verify the dimensions carefully before ordering carpets or any built-in furniture.
  4. Services: Please note we have not tested the services or any of the equipment or appliances in this property, accordingly we strongly advise prospective buyers to commission their own survey or service reports before finalising their offer to purchase.
  5. THESE PARTICULARS ARE ISSUED IN GOOD FAITH BUT DO NOT CONSTITUTE REPRESENTATIONS OF FACT OR FORM PART OF ANY OFFER OR CONTRACT. THE MATTERS REFERRED TO IN THESE PARTICULARS SHOULD BE INDEPENDENTLY VERIFIED BY PROSPECTIVE BUYERS OR TENANTS. NEITHER AUCTION HOUSE NOR ANY OF ITS EMPLOYEES OR AGENTS HAS ANY AUTHORITY TO MAKE OR GIVE ANY REPRESENTATION OR WARRANTY WHATEVER IN RELATION TO THIS PROPERTY.