Auction House / South Yorkshire

  • For Sale By Unconditional Online Auction
  • Guide Price* : £80,000 - £160,000
  • Auction Ended 25/02/2025
  • Lot 37

17 Garden Street, Wigston, Leicestershire, LE18 4PW

3 BED MID-TERRACE IN SOUTH WIGSTON!
EXCELLENT TRANSPORT LINKS!
GREAT BTL INVESTMENT!
OPEN HOUSE VIEWING ON 18TH FEBRUARY FROM 13:00 - 13.30!!

Description

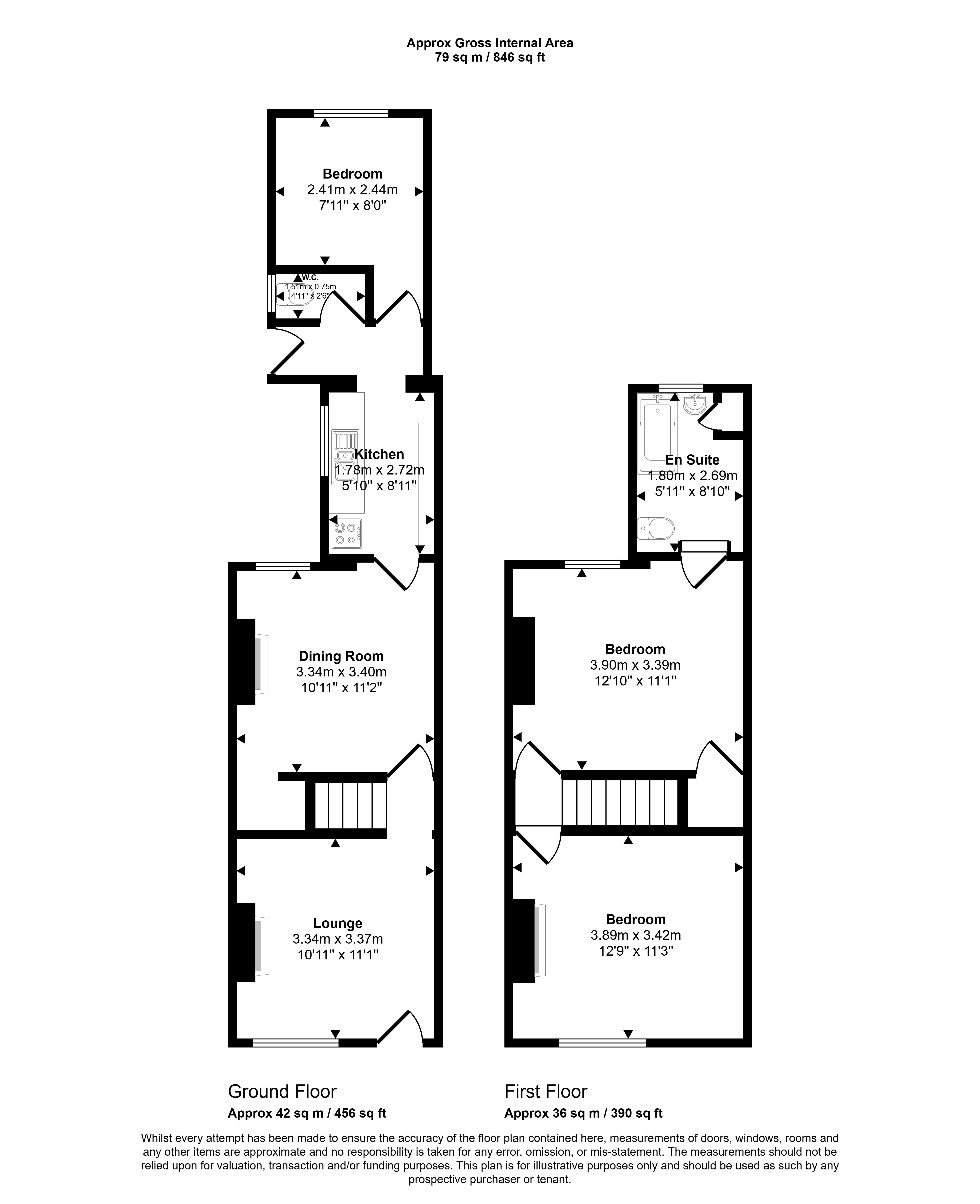
Available for auction is this three bedroom mid-terrace property, extended to the rear.

The vendor advises that this property has undergone £10,000 worth of installation work, including a full rewire, interlinked smoke alarms and a heat sensor. They also advise that a new boiler was fitted one year ago.

The property has an entrance hall, dining room, study, kitchen, toilet, and a third bedroom to the rear. The first floor offers two spacious double bedrooms and a family bathroom.

Externally, the property benefits from a low-maintenance garden and ample on-road parking in designated bays.

Situated in South Wigston, the property is conveniently located close to local amenities, schools, and Leicestershire College. Excellent transport links include bus routes to Leicester city centre and easy access to the M1 and M69 motorways.

Tenure: See Legal Pack

EPC Rating: D

Important Notice to Prospective Buyers

We draw your attention to the Special Conditions of Sale within the Legal Pack, referring to other charges in addition to the purchase price which may become payable. Such costs may include Search Fees, reimbursement of Sellers costs and Legal Fees, and Transfer Fees amongst others.

Administration Charge

£3600 inc VAT payable on exchange of contracts.

Loading the bidding panel...

* Guide | £80,000 - £160,000
  • 3 Bedrooms
  • Unconditional (Immediate Exchange)

Call the team on 0114 223 0777 for more information

Disclaimer: The map preview provided above is for general guidance only and may not accurately reflect the exact location or surrounding buildings. Prospective buyers and interested parties are strongly advised to independently verify the precise location and surroundings before bidding.

Note

  1. MONEY LAUNDERING REGULATIONS: Intending purchasers will be asked to produce identification documentation at a later stage and we would ask for your co-operation in order that there will be no delay in agreeing the sale.
  2. General : While we endeavour to make our sales particulars fair, accurate and reliable, they are only a general guide to the property and, accordingly, if there is any point which is of particular importance to you, please contact the office and we will be pleased to check the position for you, especially if you are contemplating travelling some distance to view the property.
  3. Measurements: These approximate room sizes are only intended as general guidance. You must verify the dimensions carefully before ordering carpets or any built-in furniture.
  4. Services: Please note we have not tested the services or any of the equipment or appliances in this property, accordingly we strongly advise prospective buyers to commission their own survey or service reports before finalising their offer to purchase.
  5. THESE PARTICULARS ARE ISSUED IN GOOD FAITH BUT DO NOT CONSTITUTE REPRESENTATIONS OF FACT OR FORM PART OF ANY OFFER OR CONTRACT. THE MATTERS REFERRED TO IN THESE PARTICULARS SHOULD BE INDEPENDENTLY VERIFIED BY PROSPECTIVE BUYERS OR TENANTS. NEITHER AUCTION HOUSE NOR ANY OF ITS EMPLOYEES OR AGENTS HAS ANY AUTHORITY TO MAKE OR GIVE ANY REPRESENTATION OR WARRANTY WHATEVER IN RELATION TO THIS PROPERTY.