Auction House / Lincolnshire

  • For Sale By Unconditional Online Auction
  • Guide Price* : £125,000 - £165,000
  • Auction Ended 30/01/2025
  • Lot 68

35 Spital Terrace, Gainsborough, Lincolnshire, DN21 2HD

*ONLINE Unconditional Auction Opening 24 February 2025*
To register for the legal pack and bidding, please visit our website: auctionhouse.co.uk/lincolnshire

Description

Situation:
The property is situate on Spital Terrace, Gainsborough a popular and sought after residential area of the town within close proximity of the town centre and the popular Marshalls Yard retail and leisure complex. The town itself offers a wealth of facilities and amenities as well as good access to surrounding towns and the cities of Lincoln and Doncaster.

Description:
A rare and wonderful opportunity to acquire this substantial traditional detached house offered for sale in need of a scheme of improvement works throughout but benefiting from many wonderful original features, including floorboards, skirting, leaded light windows & balustrade.
This property would make a fine home and an internal viewing is a must to appreciate the scope of the accommodation on offer. The property occupies a well positioned plot in the heart of the town with separate vehicle access to the rear and this property must be viewed fully to be appreciated.

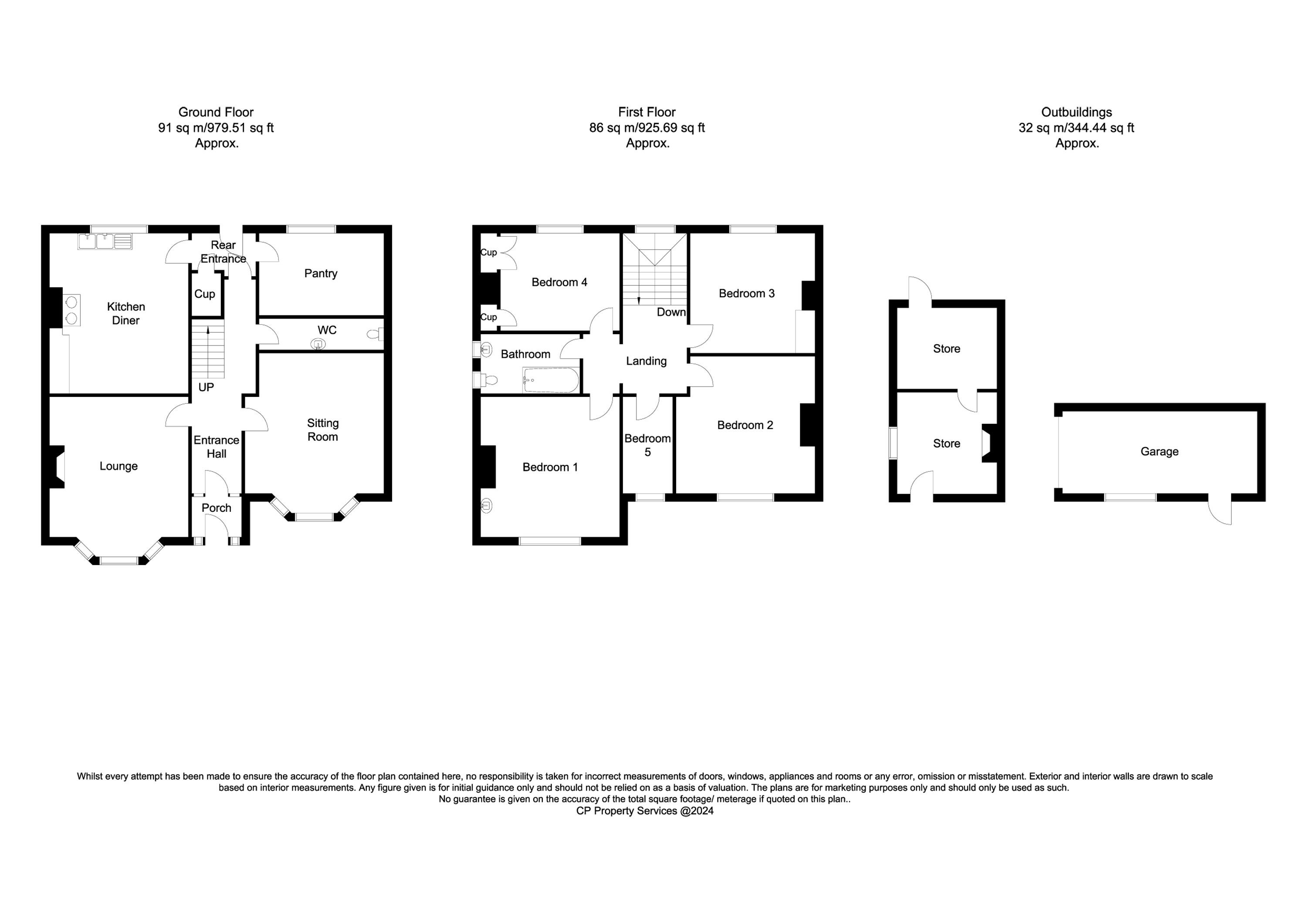
Timber and glazed front door leading into
Storm Porch Further timber and glazed door into
Entrance Hallway Two radiators and stairs rising to first floor half landing with leaded light glazed window and radiator.
Sitting Room: 5.18m x 4.24m (17’0 x 13’11) maximum measurements Timber glazed bay window to the front elevation, radiator, feature fireplace.
Living Room: 4.19m x 5.08m (13’9 x 16’8) Timber glazed bay window to the front elevation, radiator and feature fireplace.
Cloakroom & W.C With radiator, low level flush w.c. and pedestal wash hand basin.
Rear Entrance Lobby Timber glazed door opening to the rear of the property, door to understairs storage cupboard.
Pantry: 3.78m x 2.08m (12’5 x 6’10) Timber glazed window to the rear elevation.
Dining Kitchen: 4.85m x 4.22m (15’11 x 13’10) maximum measurements Timber glazed window to the rear elevation, radiator, range of built in kitchen units, Aga cooker, wall mounted gas combination boiler.
First floor landing
Bedroom one: 4.27m x 4.24m (14’0 x 13’11) Timber glazed window to the front elevation, radiator, wash hand basin.
Bedroom two: 4.27m x 3.76m (14’0 x 12’4) Timber glazed window to the front elevation and radiator.
Bedroom three: 3.66m x 3.81m (12’0 x 12’6) Timber glazed window to the rear elevation and radiator. Storage cupboard.
Bedroom four: 3.78m x 2.92m (12’5 x 9’7) Timber glazed window to the rear elevation, radiator, built in storage cupboard.
Nursery Bedroom/Dressing Room: 3.02m x 1.52m (9’11 x 5’0) Timber glazed window to the front elevation and radiator.
Family Bathroom: Low level flush w.c., pedestal wash hand basin, cast iron bath, radiator, timber and glazed window to the side elevation.
Externally To the front of the property is an enclosed area of mature garden with lawn and footpath leading down the side of the property to the rear garden. Attached slate roof and brick-built gardeners building with chimney.
To the rear is a deceptively spacious good sized rear garden with a range of mature shrubs and trees.

Council Tax Band

C

EPC Rating

E

Important Notice to Prospective Buyers

We draw your attention to the Special Conditions of Sale within the Legal Pack, referring to other charges in addition to the purchase price which may become payable. Such costs may include Search Fees, reimbursement of Sellers costs and Legal Fees, and Transfer Fees amongst others.

Buyers Premium

1.2% inc VAT of the purchase price, payable on exchange of contracts.

Administration Charge

Non-refundable £1,800 inc VAT payable on the fall of the virtual gavel.

Loading the bidding panel...

* Guide | £125,000 - £165,000
  • 5 Bedrooms
  • Unconditional (Immediate Exchange)

Call the team on 01427 616436 for more information

Related Documents

Disclaimer: The map preview provided above is for general guidance only and may not accurately reflect the exact location or surrounding buildings. Prospective buyers and interested parties are strongly advised to independently verify the precise location and surroundings before bidding.

Note

  1. MONEY LAUNDERING REGULATIONS: Intending purchasers will be asked to produce identification documentation at a later stage and we would ask for your co-operation in order that there will be no delay in agreeing the sale.
  2. General : While we endeavour to make our sales particulars fair, accurate and reliable, they are only a general guide to the property and, accordingly, if there is any point which is of particular importance to you, please contact the office and we will be pleased to check the position for you, especially if you are contemplating travelling some distance to view the property.
  3. Measurements: These approximate room sizes are only intended as general guidance. You must verify the dimensions carefully before ordering carpets or any built-in furniture.
  4. Services: Please note we have not tested the services or any of the equipment or appliances in this property, accordingly we strongly advise prospective buyers to commission their own survey or service reports before finalising their offer to purchase.
  5. THESE PARTICULARS ARE ISSUED IN GOOD FAITH BUT DO NOT CONSTITUTE REPRESENTATIONS OF FACT OR FORM PART OF ANY OFFER OR CONTRACT. THE MATTERS REFERRED TO IN THESE PARTICULARS SHOULD BE INDEPENDENTLY VERIFIED BY PROSPECTIVE BUYERS OR TENANTS. NEITHER AUCTION HOUSE NOR ANY OF ITS EMPLOYEES OR AGENTS HAS ANY AUTHORITY TO MAKE OR GIVE ANY REPRESENTATION OR WARRANTY WHATEVER IN RELATION TO THIS PROPERTY.