Auction House / South Yorkshire

  • For Sale By Unconditional Online Auction
  • Guide Price* : £60,000 - £80,000
  • Auction Ended 18/02/2025
  • Lot 38

Apartment 41 City Lofts St. Pauls, Sheffield, South Yorkshire, S1 2LB

Auction Date Commencing Monday 17th February at 1pm and ending 24hours later on Tuesday 18th February at 1pm with Auction House South Yorkshire

Please register to bid via our website - auctionhouse.co.uk/southyorkshire

Description

Auction Date Commencing Monday 17th February at 1pm and ending 24hours later on Tuesday 18th February at 1pm with Auction House South Yorkshire

Please register to bid via our website - auctionhouse.co.uk/southyorkshire

One Bedroom City Centre Apartment Within Iconic City Lofts Building
LET AND ACHIEVING £895 PER CALENDAR MONTH
*Extended Completion option - contact the team
*No Viewings - Tenant Moved in November w/c 11th.

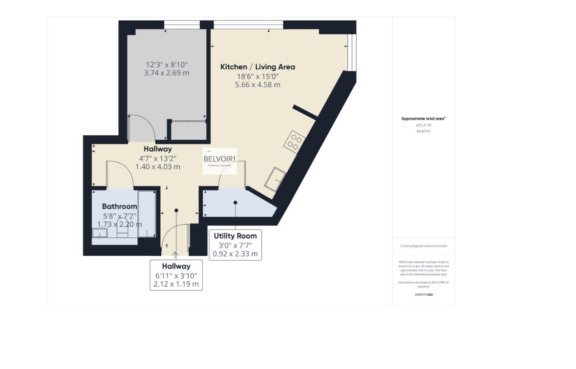
Larger than average one bedroom stunning corner apartment is situated within the landmark City Lofts development in the heart of Sheffield city centre.

The apartment is currently let on AST at £895 per calendar month, commencing November 2024.

Finished to a high standard & contemporary styled throughout, the property offers open plan living space, luxury bathroom, modern kitchen and double bedroom.

Wood flooring, floor to ceiling windows and a high spec kitchen are some of the sought after features, together with all the amenities at St Paul's, that make this property so desirable.

City Lofts also provides 24hr concierge service.

Walking distance to the many amenities in the city centre, Sheffield Hallam University is just across the road.

Tenure: Leasehold

EPC Rating: C

Important Notice to Prospective Buyers

We draw your attention to the Special Conditions of Sale within the Legal Pack, referring to other charges in addition to the purchase price which may become payable. Such costs may include Search Fees, reimbursement of Sellers costs and Legal Fees, and Transfer Fees amongst others.

Administration Charge

£3,600 inc vat payable upon the fall of the virtual gavel

Loading the bidding panel...

* Guide | £60,000 - £80,000
  • 1 Bedroom
  • Unconditional (Immediate Exchange)

Call the team on 0114 223 0777 for more information

Disclaimer: The map preview provided above is for general guidance only and may not accurately reflect the exact location or surrounding buildings. Prospective buyers and interested parties are strongly advised to independently verify the precise location and surroundings before bidding.

Note

  1. MONEY LAUNDERING REGULATIONS: Intending purchasers will be asked to produce identification documentation at a later stage and we would ask for your co-operation in order that there will be no delay in agreeing the sale.
  2. General : While we endeavour to make our sales particulars fair, accurate and reliable, they are only a general guide to the property and, accordingly, if there is any point which is of particular importance to you, please contact the office and we will be pleased to check the position for you, especially if you are contemplating travelling some distance to view the property.
  3. Measurements: These approximate room sizes are only intended as general guidance. You must verify the dimensions carefully before ordering carpets or any built-in furniture.
  4. Services: Please note we have not tested the services or any of the equipment or appliances in this property, accordingly we strongly advise prospective buyers to commission their own survey or service reports before finalising their offer to purchase.
  5. THESE PARTICULARS ARE ISSUED IN GOOD FAITH BUT DO NOT CONSTITUTE REPRESENTATIONS OF FACT OR FORM PART OF ANY OFFER OR CONTRACT. THE MATTERS REFERRED TO IN THESE PARTICULARS SHOULD BE INDEPENDENTLY VERIFIED BY PROSPECTIVE BUYERS OR TENANTS. NEITHER AUCTION HOUSE NOR ANY OF ITS EMPLOYEES OR AGENTS HAS ANY AUTHORITY TO MAKE OR GIVE ANY REPRESENTATION OR WARRANTY WHATEVER IN RELATION TO THIS PROPERTY.