Auction House / Hull & East Yorkshire

  • For Sale By Unconditional Online Auction
  • Guide Price* : £50,000
  • Auction Ended 06/02/2025
  • Lot 2

78 Davidstow Close, Bransholme, Hull, East Yorkshire, HU7 4EB

FOR SALE by ONLINE NATIONAL TIMED AUCTION on TUESDAY 11TH FEBRUARY at 1:00 pm - GUIDE PRICE £50,000
A three bedroom end terrace house in need of a scheme of refurbishment.

Viewing Details

Strictly by appointment with the Auctioneers on 0845 400 9900.

Location

The property benefits from nearby transport links and is close to local schools. Additionally, it is conveniently near Kingswood Retail Park, offering easy access to shops, restaurants, and other amenities.

Description

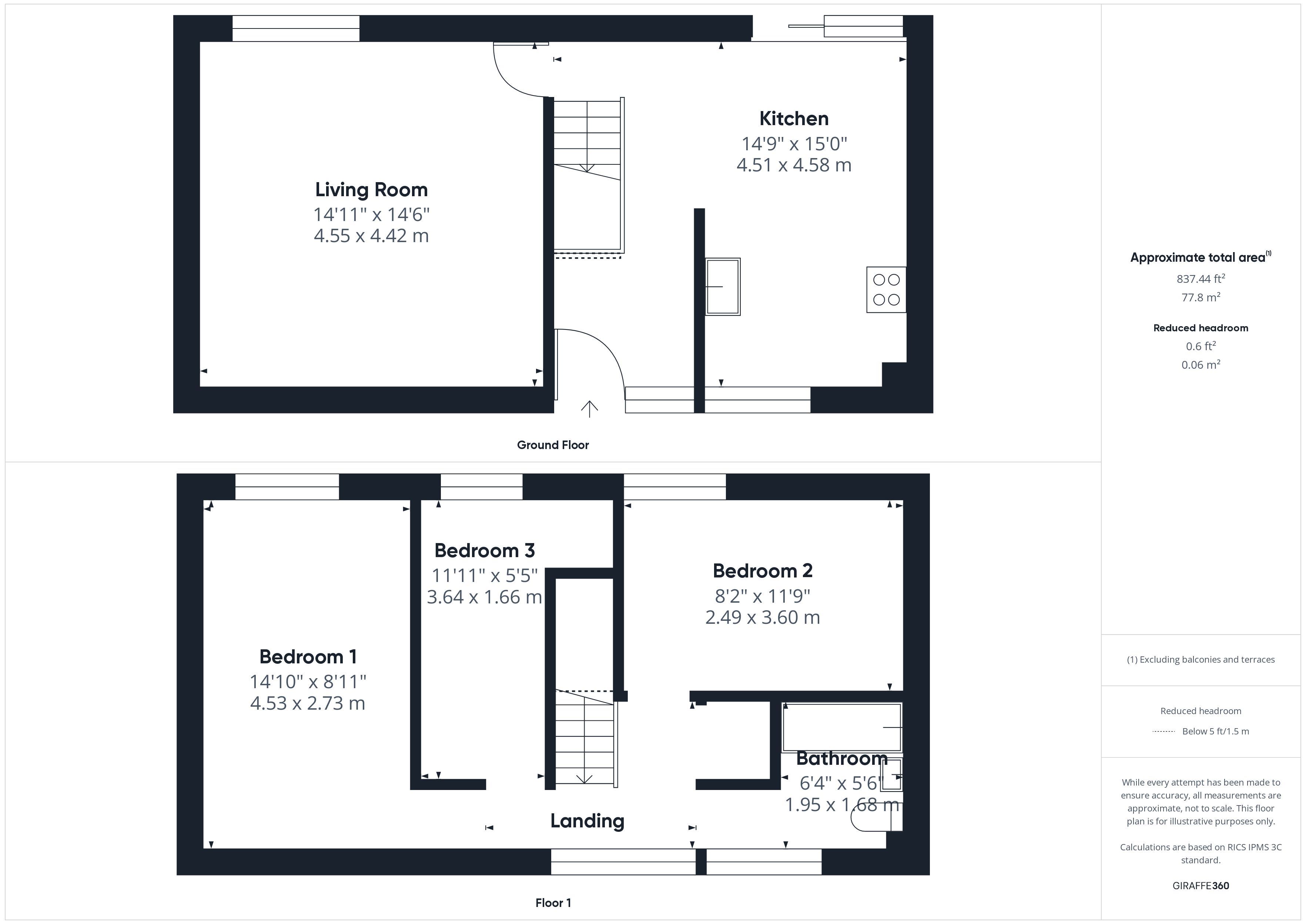
This spacious three-bedroom mid-terrace property is offered in need of a scheme of refurbishment and improvement. The accommodation comprises a sitting/dining room, a kitchen and bathroom on the ground floor. On the first floor, a landing area provides access to three bedrooms, offering generous living space. The property benefits from gas-fired central heating and uPVC double glazing.

Accommodation

Ground Floor

Entrance Hall

Lounge
Window to the rear. Radiator.

Kitchen/Dining Area
The kitchen enjoys a front and rear aspect. Fitted with maple-style base and wall-mounted cabinets offering cupboard and drawer space. Complementary laminated work surfaces, stainless steel sink unit, eye-level single oven and electric hob. Patio doors to rear.

First Floor

Landing
The central landing has doors leading off to the individual rooms.

Principal Bedroom
The room is fitted with a radiator and a rear aspect.

Bedroom 2
The room is fitted with a radiator and a rear aspect.

Bedroom 3
The room is fitted with a radiator and a rear aspect.

Bathroom
The bathroom is appointed with a three-piece suite comprising a bath, washbasin, and WC.

Exterior

Rear garden laid to lawn. Front courtyard with storage sheds.

Tenure

Freehold.

Note

Method of Sale

The property will be offered for sale by online auction with bidding commencing at 1pm on Monday 10th February 2025 and closing on Tuesday 11th February 2025 at 1 pm. For further legal information relating to this lot and to register to bid, please go to auctionhouse.co.uk/hullandeastyorkshire.

Note

Conditions of Sale

The property will be sold subject to conditions of sale, copies of which will be available for inspection at the auctioneer’s offices, with the solicitors and on-line at auctionhouse.co.uk/hullandeastyorkshire prior to the date of the auction.

Note

Guide Price

Guides are provided as an indication of each sellers minimum expectation. They are not necessarily figures which a property will sell for and may change at any time prior to the auction. Each property will be offered subject to a Reserve (a figure below which the Auctioneer cannot sell the property during the auction) which we expect will be set within the Guide Range or no more than 10% above a single figure Guide.

Council Tax Band

A

Lot Type

Residential for Improvement

EPC Rating

D

Important Notice to Prospective Buyers

We draw your attention to the Special Conditions of Sale within the Legal Pack, referring to other charges in addition to the purchase price which may become payable. Such costs may include Search Fees, reimbursement of Sellers costs and Legal Fees, and Transfer Fees amongst others.

Buyers Premium

The purchaser will be required to pay a buyer’s premium of £1560 (£1300 + VAT) in addition to the purchase price of the property.

Administration Charge

The purchaser will be required to pay an administration charge of £900 (£750 plus VAT) in addition to the purchase price of the property.

Disbursements

Please see the legal pack for any disbursements listed that may become payable by the purchaser on completion.

Loading the bidding panel...

* Guide | £50,000
  • 3 Bedrooms
  • Tenure: Freehold.
  • Unconditional (Immediate Exchange)

Call the team on 0845 400 9900 for more information

Disclaimer: The map preview provided above is for general guidance only and may not accurately reflect the exact location or surrounding buildings. Prospective buyers and interested parties are strongly advised to independently verify the precise location and surroundings before bidding.

Note

  1. MONEY LAUNDERING REGULATIONS: Intending purchasers will be asked to produce identification documentation at a later stage and we would ask for your co-operation in order that there will be no delay in agreeing the sale.
  2. General : While we endeavour to make our sales particulars fair, accurate and reliable, they are only a general guide to the property and, accordingly, if there is any point which is of particular importance to you, please contact the office and we will be pleased to check the position for you, especially if you are contemplating travelling some distance to view the property.
  3. Measurements: These approximate room sizes are only intended as general guidance. You must verify the dimensions carefully before ordering carpets or any built-in furniture.
  4. Services: Please note we have not tested the services or any of the equipment or appliances in this property, accordingly we strongly advise prospective buyers to commission their own survey or service reports before finalising their offer to purchase.
  5. THESE PARTICULARS ARE ISSUED IN GOOD FAITH BUT DO NOT CONSTITUTE REPRESENTATIONS OF FACT OR FORM PART OF ANY OFFER OR CONTRACT. THE MATTERS REFERRED TO IN THESE PARTICULARS SHOULD BE INDEPENDENTLY VERIFIED BY PROSPECTIVE BUYERS OR TENANTS. NEITHER AUCTION HOUSE NOR ANY OF ITS EMPLOYEES OR AGENTS HAS ANY AUTHORITY TO MAKE OR GIVE ANY REPRESENTATION OR WARRANTY WHATEVER IN RELATION TO THIS PROPERTY.