Auction House / South Yorkshire

  • For Sale By Unconditional Online Auction
  • Guide Price* : £35,000
  • Auction Ended 14/01/2025
  • Lot 10

Apartment 34 Regent House, Barnsley, South Yorkshire, S70 2AT

FOR SALE VIA NATIONAL ONLINE AUCTION ON MONDAY 13th JANUARY AT 1PM WITH AUCTIONHOUSE.CO.UK/SOUTHYORKSHIRE

Description

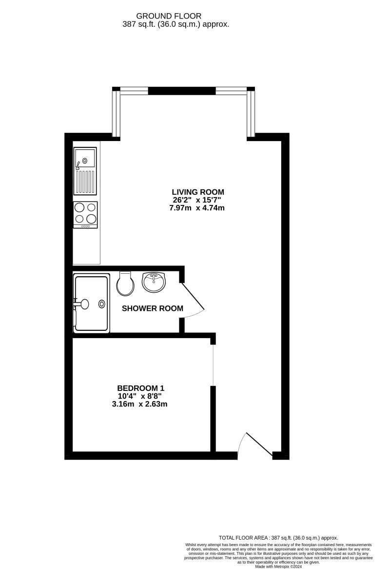
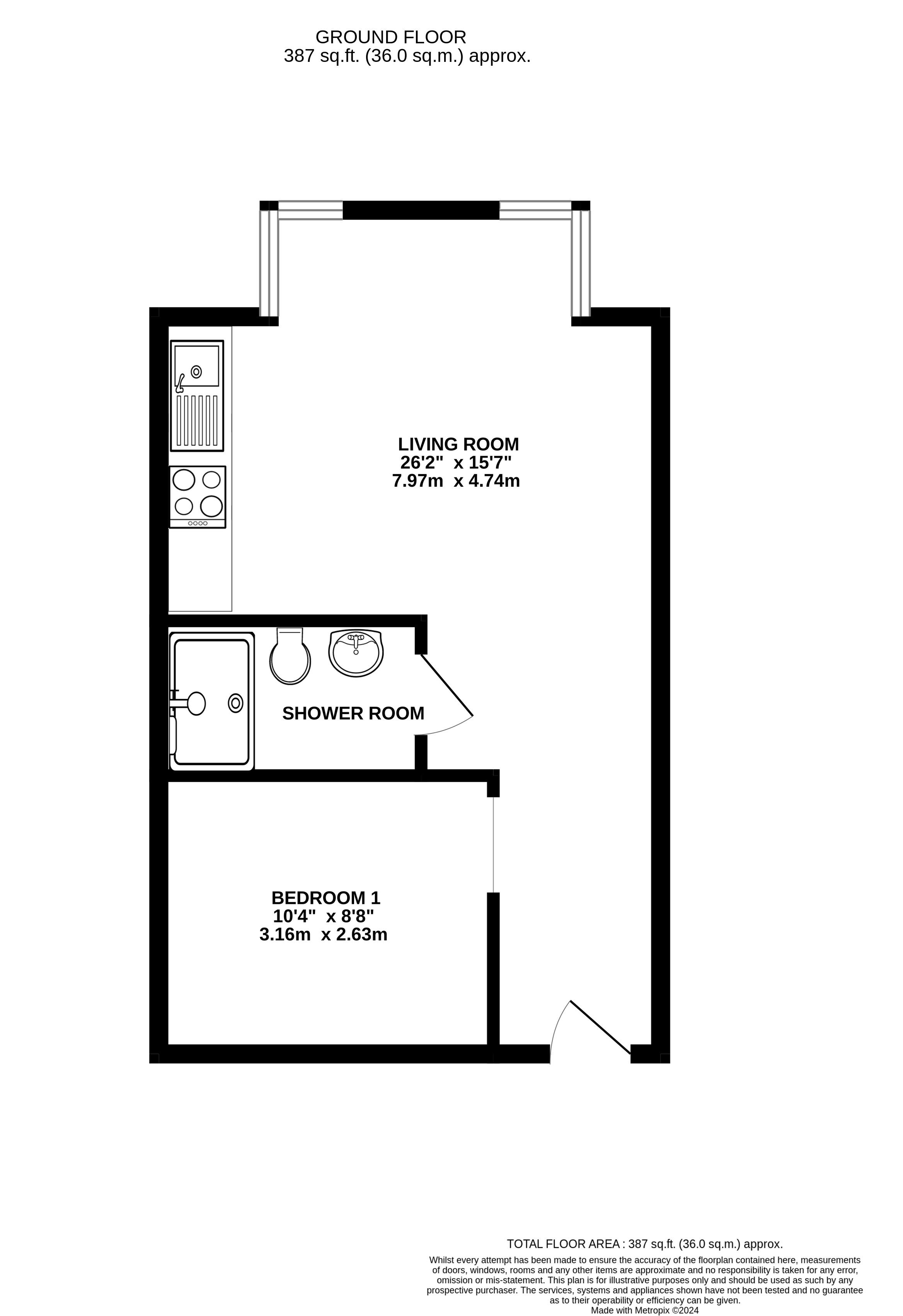
For sale by auction is this tenanted one-bedroom town centre apartment in superb condition.

The apartment is located on the second-floor of the building, accessible via a secure key fob system with an intercom.

Internally the property comprises of an open-plan Living Room-Kitchen, with a double Bedroom and a Shower Room.

Rental income of £650PCM / £7,800PA. Recent changes to the electricity supply at the building, means that the tenants now pay for their own electricity supplies, and so this is no longer a deduction of the landlord from the service charge.

There is also a communal laundry room within the building.

No viewings, as the property is tenanted.

Located in the heart of the large market town of Barnsley, with the M1 motorway, local bus routes, and train stations right on the doorstep, the property benefits from superb transport links. There is a wealth of amenities in the local area too, including nearby schools, shopping facilities, hospitality establishments, and nearby hospitals.

Tenure: Leasehold

EPC Rating: C

Council Tax Band

A

Important Notice to Prospective Buyers

We draw your attention to the Special Conditions of Sale within the Legal Pack, referring to other charges in addition to the purchase price which may become payable. Such costs may include Search Fees, reimbursement of Sellers costs and Legal Fees, and Transfer Fees amongst others.

Administration Charge

Administration Charge is a non-refundable £3,600 inc VAT payable on the fall of the virtual gavel.

Loading the bidding panel...

* Guide | £35,000
  • 1 Bedroom
  • Unconditional (Immediate Exchange)

Call the team on 0114 223 0777 for more information

Disclaimer: The map preview provided above is for general guidance only and may not accurately reflect the exact location or surrounding buildings. Prospective buyers and interested parties are strongly advised to independently verify the precise location and surroundings before bidding.

Note

  1. MONEY LAUNDERING REGULATIONS: Intending purchasers will be asked to produce identification documentation at a later stage and we would ask for your co-operation in order that there will be no delay in agreeing the sale.
  2. General : While we endeavour to make our sales particulars fair, accurate and reliable, they are only a general guide to the property and, accordingly, if there is any point which is of particular importance to you, please contact the office and we will be pleased to check the position for you, especially if you are contemplating travelling some distance to view the property.
  3. Measurements: These approximate room sizes are only intended as general guidance. You must verify the dimensions carefully before ordering carpets or any built-in furniture.
  4. Services: Please note we have not tested the services or any of the equipment or appliances in this property, accordingly we strongly advise prospective buyers to commission their own survey or service reports before finalising their offer to purchase.
  5. THESE PARTICULARS ARE ISSUED IN GOOD FAITH BUT DO NOT CONSTITUTE REPRESENTATIONS OF FACT OR FORM PART OF ANY OFFER OR CONTRACT. THE MATTERS REFERRED TO IN THESE PARTICULARS SHOULD BE INDEPENDENTLY VERIFIED BY PROSPECTIVE BUYERS OR TENANTS. NEITHER AUCTION HOUSE NOR ANY OF ITS EMPLOYEES OR AGENTS HAS ANY AUTHORITY TO MAKE OR GIVE ANY REPRESENTATION OR WARRANTY WHATEVER IN RELATION TO THIS PROPERTY.