Auction House / South West

  • For Sale By Unconditional Online Auction
  • Guide Price* : £200,000
  • Auction Ended 14/01/2025
  • Lot 39

2-4 Edward Street, Westbury, Wiltshire, BA13 3DR

**Guide Price £200,000 - £250,000 (+ fees). For Sale by National Timed Auction, bidding opens 13/01/25 at 13:00pm and closes 24 hours later. Freehold development opportunity, Currently a vacant commercial building with Planning Permission granted for conversion into five 1 bed apartments and 3 commercial units (Wiltshire Council Planning Ref: PL/2023/07748). Full legal pack available to download via our website.

Description

Development Opportunity

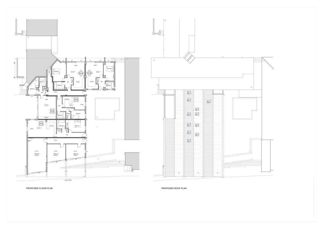
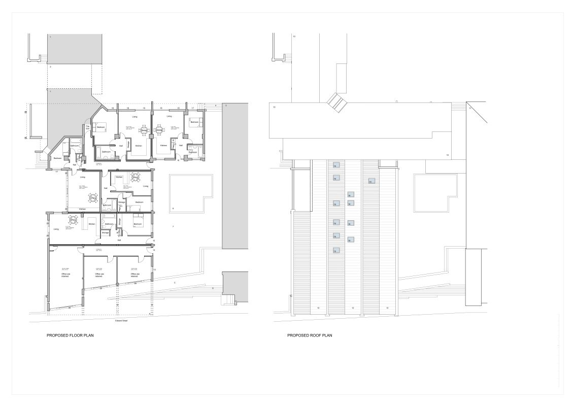
Offering to auction, this commercial development opportunity. Currently a vacant commercial building, measuring over 4,000 square feet, and parking. There has been a planning application submitted and approved for conversion into five, one bedroom apartments and three commercial units. Details can be found on the Wiltshire Council website under the Planning Reference PL/2023/07748.

Westbury is a small market town and is situated at the western edge of Wiltshire, beside the chalk down lands that form Salisbury Plain. A short walk away, Westbury station is the key to the South West with a regular direct service to London Paddington, taking just over an hour, as well as linking to Bath, Bristol and down to Penzance.

PLANNING DETAILS
The Planning Permission granted is for the conversion of the building into five, one bedroom apartments and three commercial units. The planning details can be found on the Wiltshire Council website under the Planning Reference PL/2023/07748. There is scope for various options including a full conversion to residential, subject to the necessary consents.

AUCTIONEERS NOTE ( CHANGES TO PLANNING)
Please note that the current seller is exploring the option to change the planning to convert into 7 flats instead of the current approved planning of 5 flats and 3 commercial units.

VIEWINGS
Regular block viewing sessions will be provided in the lead up to the auction. Please telephone Auction House South West on 03456 461361 to request a viewing.

FULL DETAILS
Photographs, Dimensions, Floor Plans and Area Measurements (when available) are included within our full details online on our website. All published information is to aid identification of the property and is not necessarily to scale.

NOTICE TO BIDDER
Please be aware that if your Bid is successful on Auction day the exchange of contracts will happen immediately after the Auction.

Tenure: Leasehold

Lease Details: 125 Years (99 years unexpired)

EPC Rating: C75

Important Notice to Prospective Buyers

We draw your attention to the Special Conditions of Sale within the Legal Pack, referring to other charges in addition to the purchase price which may become payable. Such costs may include Search Fees, reimbursement of Sellers costs and Legal Fees, and Transfer Fees amongst others.

Administration Charge

Buyers administration charge of £1,200 including VAT

Loading the bidding panel...

* Guide | £200,000
  • Unconditional (Immediate Exchange)

Call the team on 01752 474200 for more information

Disclaimer: The map preview provided above is for general guidance only and may not accurately reflect the exact location or surrounding buildings. Prospective buyers and interested parties are strongly advised to independently verify the precise location and surroundings before bidding.

Note

  1. MONEY LAUNDERING REGULATIONS: Intending purchasers will be asked to produce identification documentation at a later stage and we would ask for your co-operation in order that there will be no delay in agreeing the sale.
  2. General : While we endeavour to make our sales particulars fair, accurate and reliable, they are only a general guide to the property and, accordingly, if there is any point which is of particular importance to you, please contact the office and we will be pleased to check the position for you, especially if you are contemplating travelling some distance to view the property.
  3. Measurements: These approximate room sizes are only intended as general guidance. You must verify the dimensions carefully before ordering carpets or any built-in furniture.
  4. Services: Please note we have not tested the services or any of the equipment or appliances in this property, accordingly we strongly advise prospective buyers to commission their own survey or service reports before finalising their offer to purchase.
  5. THESE PARTICULARS ARE ISSUED IN GOOD FAITH BUT DO NOT CONSTITUTE REPRESENTATIONS OF FACT OR FORM PART OF ANY OFFER OR CONTRACT. THE MATTERS REFERRED TO IN THESE PARTICULARS SHOULD BE INDEPENDENTLY VERIFIED BY PROSPECTIVE BUYERS OR TENANTS. NEITHER AUCTION HOUSE NOR ANY OF ITS EMPLOYEES OR AGENTS HAS ANY AUTHORITY TO MAKE OR GIVE ANY REPRESENTATION OR WARRANTY WHATEVER IN RELATION TO THIS PROPERTY.