Auction House / Coventry and Warwickshire

  • For Sale By Unconditional Online Auction
  • Guide Price* : £90,000
  • Auction Ended 17/12/2024
  • Lot 23

132 Haunchwood Road Stockingford, Nuneaton, Warwickshire, CV10 8DJ

** SOLD AT AUCTION - £106,000**

To be sold via unconditional TIMED ONLINE AUCTION on Tuesday 17th December 2024
(Visit auctionhouse.co.uk/online).

BIDDING OPENS: 13:00 on Monday 16th December 2024
AUCTION ENDS: 13:00 on Tuesday 17th December 2024

GUIDE PRICE: £90,000 - £110,000

Description

** SOLD AT AUCTION - £106,000**

To be sold via unconditional TIMED ONLINE AUCTION on Tuesday 17th December 2024
(Visit auctionhouse.co.uk/online).

BIDDING OPENS: 13:00 on Monday 16th December 2024
AUCTION ENDS: 13:00 on Tuesday 17th December 2024

GUIDE PRICE: £90,000 - £110,000

** SOLD AT AUCTION - £106,000**

3 bedroom end terraced property requiring refurbishment. Ground floor bathroom, plus 2 reception rooms. Outside brick building plus garden to the rear.

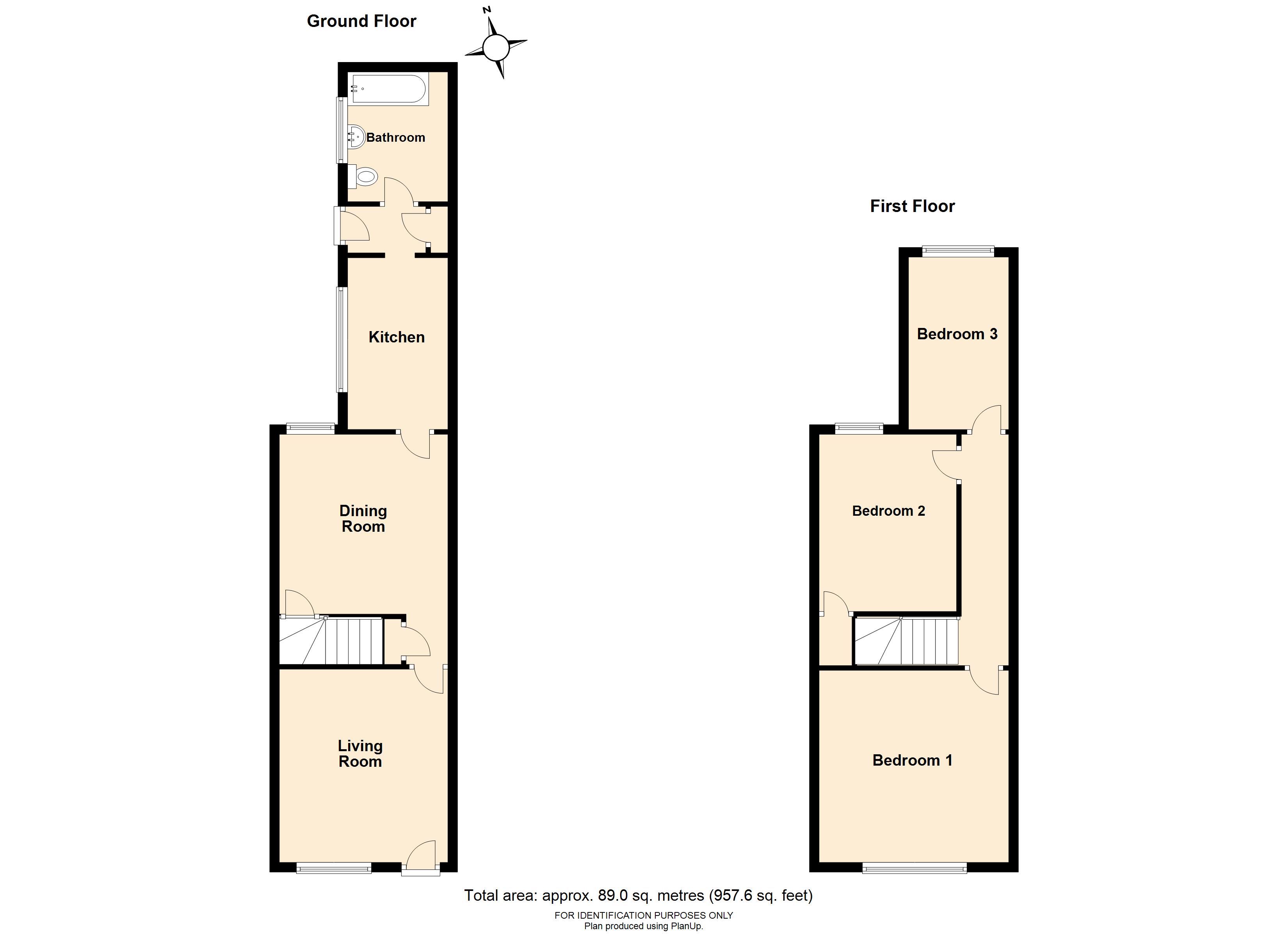
ACCOMMODATION GROUND FLOOR
Reception room 1: 13 ft x 11 ft
Reception room 2: 13 ft x 11 ft
Kitchen: 11 ft 11 in x 6 ft 8 in
Bathroom:
FIRST FLOOR
Bedroom 1: 13 ft 1 in x 12 ft 9 in
Bedroom 2: 13 ft 1 in x 9 ft 7 in max
Bedroom 3: 10 ft 11 in x 6 ft 8 in
OUTSIDE Front: Paved area.
Rear: Garden and 2 x store
On street parking.
SERVICES Mains gas, electricity, water and sewage are supplied to the property. (No tests have been carried out and we are therefore unable to confirm connections.)
EPC RATING - D
COUNCIL TAX BAND - A
TENURE Freehold with vacant possession.
ADDITIONAL COSTS Administration Fee: £1,200 (£1,000 plus VAT)
Buyer's Premium: £1,200 (£1,000 plus VAT)
Please see the legal pack for any further costs.

Tenure: See Legal Pack

Important Notice to Prospective Buyers

We draw your attention to the Special Conditions of Sale within the Legal Pack, referring to other charges in addition to the purchase price which may become payable. Such costs may include Search Fees, reimbursement of Sellers costs and Legal Fees, and Transfer Fees amongst others.

Buyers Premium

Buyer's Premium: £1,200 (£1,000 plus VAT)

Administration Charge

Administration Fee: £1,200 (£1,000 plus VAT)

Loading the bidding panel...

* Guide | £90,000
  • End of Terrace House
  • 3 Bedrooms
  • Unconditional (Immediate Exchange)

Call the team on 024 7652 7789 for more information

Disclaimer: The map preview provided above is for general guidance only and may not accurately reflect the exact location or surrounding buildings. Prospective buyers and interested parties are strongly advised to independently verify the precise location and surroundings before bidding.

Note

  1. MONEY LAUNDERING REGULATIONS: Intending purchasers will be asked to produce identification documentation at a later stage and we would ask for your co-operation in order that there will be no delay in agreeing the sale.
  2. General : While we endeavour to make our sales particulars fair, accurate and reliable, they are only a general guide to the property and, accordingly, if there is any point which is of particular importance to you, please contact the office and we will be pleased to check the position for you, especially if you are contemplating travelling some distance to view the property.
  3. Measurements: These approximate room sizes are only intended as general guidance. You must verify the dimensions carefully before ordering carpets or any built-in furniture.
  4. Services: Please note we have not tested the services or any of the equipment or appliances in this property, accordingly we strongly advise prospective buyers to commission their own survey or service reports before finalising their offer to purchase.
  5. THESE PARTICULARS ARE ISSUED IN GOOD FAITH BUT DO NOT CONSTITUTE REPRESENTATIONS OF FACT OR FORM PART OF ANY OFFER OR CONTRACT. THE MATTERS REFERRED TO IN THESE PARTICULARS SHOULD BE INDEPENDENTLY VERIFIED BY PROSPECTIVE BUYERS OR TENANTS. NEITHER AUCTION HOUSE NOR ANY OF ITS EMPLOYEES OR AGENTS HAS ANY AUTHORITY TO MAKE OR GIVE ANY REPRESENTATION OR WARRANTY WHATEVER IN RELATION TO THIS PROPERTY.