Auction House / Wales - Cardiff

  • For Sale By Unconditional Online Auction
  • Guide Price* : £200,000
  • Auction Ended 21/11/2024
  • Lot 38

Glan Aber Carrog, Corwen, Clwyd, LL21 9AL

VIEWINGS FRIDAY 22ND NOVEMBER - PLEASE CONFIRM ATTENDANCE.

Viewing Details

VIEWINGS FRIDAY 22ND NOVEMBER 12:00-13:00PM - PLEASE CONFIRM ATTENDANCE.

Description

VIEWINGS FRIDAY 22ND NOVEMBER - PLEASE CONFIRM ATTENDANCE.

FANTASTIC PROJECT OPPORTUNITY
CHARMING COTTAGE IN NEED OF MODERNISATION
STUNNING LOCATION AND SETTING
CLOSEBY TO CARROG & CORWEN VILLAGES

FOR SALE VIA ONLINE UNCONDITIONAL AUCTION. BIDDING OPENS MONDAY 25TH NOVEMBER & CLOSES TUESDAY 26TH NOVEMBER. BY AUCTION HOUSE NORTH WALES.

For sale via auction unless sold prior under unconditional auction terms.

An incredible opportunity to reignite some life back into this fabulous cottage, tucked away in a remarkable location with sizeable plot, measuring approximately 0.65acres. The property itself is dated and tired, but that provides any budding bidder a perfect canvass to bring this once fabulous family home, back to life, along with the extensive gardens backed onto woodland with its very own hidden garden and orchard.

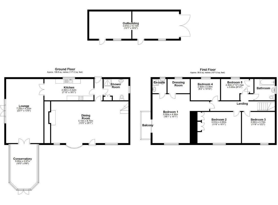
The property itself boasts a generous footprint with no less than 5-bedrooms, you could argue there is a great deal of versatility with how you could re-arrange the property to satisfy your needs, further complimented by a well proportioned garage and adjoining outbuilding.

The local village of Carrog is close by (Approx 1 mile) with the larger market town of Corwen approximately 3 miles.

ROOM LIST - Please refer to the floorplan provided for room list and measurements, that are for indicative purposes. Please conduct further due diligence as required.

PLEASE NOTE No appliances or services have been tested by Auction House. Any measurements are approximate. We recommend any would be bidders conduct their own due diligence in good time prior to the auction taking place.

Tenure: Freehold

EPC Rating: G

Lot Type

Residential for Improvement

Important Notice to Prospective Buyers

We draw your attention to the Special Conditions of Sale within the Legal Pack, referring to other charges in addition to the purchase price which may become payable. Such costs may include Search Fees, reimbursement of Sellers costs and Legal Fees, and Transfer Fees amongst others.

Buyers Premium

£1200 inc VAT payable on exchange of contracts.

Administration Charge

£1200 inc VAT payable on exchange of contracts.

Disbursements

Please see the legal pack for any disbursements listed that may become payable by the purchaser on completion.

Loading the bidding panel...

* Guide | £200,000
  • 5 Bedrooms
  • Unconditional (Immediate Exchange)

Call the team on 02920 475 184 for more information

Disclaimer: The map preview provided above is for general guidance only and may not accurately reflect the exact location or surrounding buildings. Prospective buyers and interested parties are strongly advised to independently verify the precise location and surroundings before bidding.

Note

  1. MONEY LAUNDERING REGULATIONS: Intending purchasers will be asked to produce identification documentation at a later stage and we would ask for your co-operation in order that there will be no delay in agreeing the sale.
  2. General : While we endeavour to make our sales particulars fair, accurate and reliable, they are only a general guide to the property and, accordingly, if there is any point which is of particular importance to you, please contact the office and we will be pleased to check the position for you, especially if you are contemplating travelling some distance to view the property.
  3. Measurements: These approximate room sizes are only intended as general guidance. You must verify the dimensions carefully before ordering carpets or any built-in furniture.
  4. Services: Please note we have not tested the services or any of the equipment or appliances in this property, accordingly we strongly advise prospective buyers to commission their own survey or service reports before finalising their offer to purchase.
  5. THESE PARTICULARS ARE ISSUED IN GOOD FAITH BUT DO NOT CONSTITUTE REPRESENTATIONS OF FACT OR FORM PART OF ANY OFFER OR CONTRACT. THE MATTERS REFERRED TO IN THESE PARTICULARS SHOULD BE INDEPENDENTLY VERIFIED BY PROSPECTIVE BUYERS OR TENANTS. NEITHER AUCTION HOUSE NOR ANY OF ITS EMPLOYEES OR AGENTS HAS ANY AUTHORITY TO MAKE OR GIVE ANY REPRESENTATION OR WARRANTY WHATEVER IN RELATION TO THIS PROPERTY.